






























фото · 1 із 31

Дивитися всі фото
Дивитися на мапі
Продаж 2 поверхового будинку з опаленням і ділянкою на 6 соток, 156 кв. м, 3 кімнати, на 3-й пр. Бурштиновий 36 • ID 33600671
190 000 $ за об'єкт · 7 993 300 грн · 1 218 $
за м²
Перевірений будинок
продавець надав техпаспорт
Перевірено по техпаспорту
Дата останньої перевірки 11 жов.
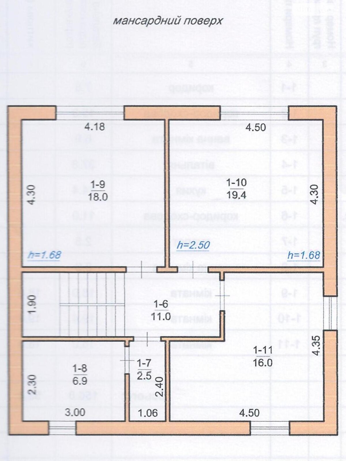
- Загальна площа 156 м² · житлова 53.4 м² · кухня 14.4 м²
- 3 кімнати
- 2 поверхи
- Ділянка 6 соток
Опис від продавця
- 3 кімнати · 2 поверхи
- Загальна площа 156 м² · житлова 53.4 м² · кухня 14.4 м²
- Ділянка 6 соток
- Стіни з цегли
- Побудовано 2001-2010
- Кадастровий номер 6825089600:03:004:2263
- Пропозиція від посередника
- Без комісії
- єВідновлення
- Вторинна нерухомість
- Біля озера
- Біля лісу
- Спокійний район
- В продажу будинок з неповторною атмосферою та дизайном. Ремонт виконаний у рустикальному стилі з елементами кантрі. Багато натурального дерева та каменю в декорі, штукатурка стін та стелі імітує валькування. Кований металевий декор ручної роботи, оригінальні деревʼяні міжкімнатні двері.
Ділянка 6 соток доглянута, з продуманим ландшафтним дизайном, має додаткові будівлі - вольєр, сарай з підвалом, автонавіс на 2 авто. Також є зона барбекю і мальовнича тераса.
Ділянка повністю огороджена, з вулиці камʼяний з деревʼяними елементами паркан. Ворота автоматичні, є вуличне освітлення.
Будинок побудований з високоякісної червоної цегли, утеплений. Має площу 156 кв.м. На першому поверсі розташована кухня, велика вітальня з виходом на терасу, санвузол, комора. На другому (мансардному) поверсі 3 спальні, санвузол.
Електрика 16 кВт, 3-фазний лічильник. Опалення - двоконтурний газовий котел. Вода центральна, якісна. Каналізація - септик на 9 кубів з переливом.
Поруч знаходиться озеро. До катіонівського кола 3 км. До зупинки транспорту 7 хвилин пішки.
Ціна 190000$ + оформлення.
Пропозиція без комісії з покупця.
Цей будинок-казка чекає на своїх нових власників.
- Особливості планування: з опаленням • бесідка
- Двір: Автоматичні ворота
- Характеристика будівлі: стан будинку: дизайнерське оформлення • перекриття: залізобетонне • дах: металошифер
- Характеристика приміщення: висота стелі, м: 2.7 • утеплення: зовнішнє
- Оздоблення стелі: штукатурка • фарбування
- Підлога (покриття): керамічна плитка • ламінат
- Внутрішнє оздоблення: шпалери • декоративна штукатурка • декоративний камінь • керамічна плитка • дерево
- Комунікації: каналізація: септик
- Вода: центральний водопровід
- Опалення: двоконтурний котел • газове
- Підігрів води: двоконтурний котел
- Приміщення: кількість спалень: 3 • вітальня • 2 санвузла
- Обладнання • меблі • зручності: телевізор • камін • обідня зона • пральна машина • душова кабіна • ванна • газова плита • духова шафа • шафа-гардероб • Вбудована кухня • диван • холодильник • електрика • газ • витяжка • вивіз відходів • інтернет • каналізація септик • письмовий стіл • двоспальне ліжко
- Під'їзд: броньовані двері
- На території є: ландшафтний дизайн • поливна система • госп.будівлі (сарай) • погріб • барбекю • паркан
- Особливості планування: підігрів підлоги • тераса
- Унікальні переваги: З бесідкою
Оголошення неактуальне чи інформація неточна?
- Оголошення створене 11 жов. ·
- ID 33600671 ·
- Переглядів 0
- · Збережень в обране 0