


















фото · 1 із 19

Дивитися всі фото
Дивитися на мапі
Продаж 1 поверхового будинку з ремонтом і ділянкою на 6 соток, 110 кв. м, 2 кімнати, на вул. Польова 1 • ID 33733309
220 000 $ за об'єкт · 9 295 000 грн · 2 000 $
за м²
Перевірений будинок
Перевірено по відеодзвінку
Звіт від 25 лис.
- Новобудова
- 2 кімнати
- 1 поверх
- Ділянка 6 соток
- Пропозиція від представника забудовника
- Без комісії
- З ремонтом
Опис від продавця
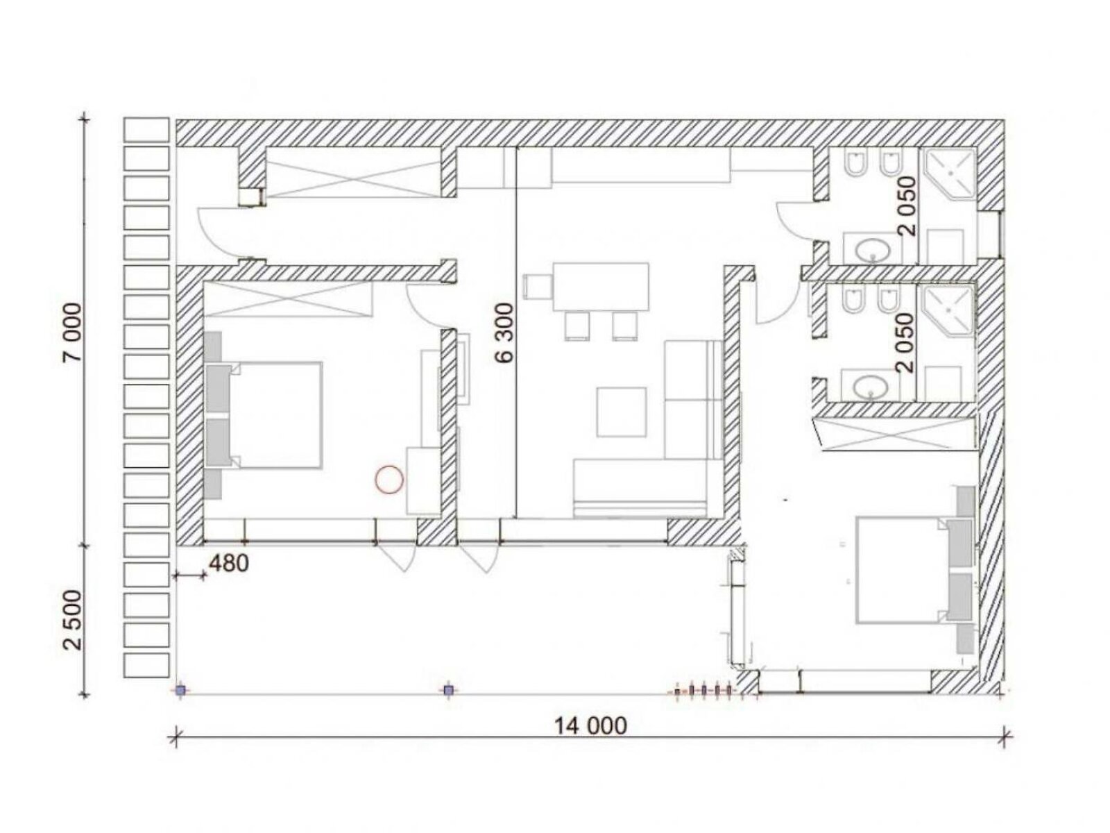
- Загальна площа 110 м² · житлова 50 м² · кухня 45 м²
- Стіни з цегли
- Здача в 2025
- Біля лісу
- Житло не використовувалось з моменту побудови
- Продаж одноповерхового будинку з ремонтом у закритому котеджному містечку у селі Підгірці
Площа будинку 110 м², прилегла ділянка - 6 соток разом із забудовою
На території передбачено 2 паркомісця для вашого комфорту
Планування:
- кухня-вітальня з виходом на терасу
- 2 спальні
- с/у з душем
Будинок збудований з керамоблоку та утеплений мінеральною ватою. Заведені необхідні комунікації: вода (свердловина), каналізація (септик), електроенергія та ГАЗ
Також з переваг цього місця - розвинена інфраструктура:
- 5 хв до ТРЦ Мануфактура, Сільпо, McDonald`s, спорт зали і тд
- 10 хв до державних та приватних шкіл та дитячих садочків
- 15 хв до Києва
- Двір: Автоматичні ворота
- Характеристика будівлі: стан будинку: дизайнерське оформлення • перекриття: залізобетонне
- Характеристика приміщення: утеплення: зовнішнє
- Оздоблення стелі: натяжна стеля
- Підлога (покриття): керамічна плитка • ламінат
- Внутрішнє оздоблення: фарбування
- Опалення: газове • електричне
- Підігрів води: бойлер
- Приміщення: кількість спалень: 2 • гараж: немає • вітальня • 2 санвузла
- Обладнання • меблі • зручності: телевізор • камін • обідня зона • пральна машина • посудомийна машина • душова кабіна • електрична плита • мікрохвильова піч • шафа-гардероб • Вбудована кухня • диван • холодильник • кондиціонер • електрика • витяжка • сушильна машина • інтернет • каналізація септик • письмовий стіл • двоспальне ліжко
- Коли немає світла: є інтернет
- Під'їзд: відеодомофон
- На території є: ландшафтний дизайн • паркан
- Особливості планування: підігрів підлоги
- Унікальні переваги: Можлива розстрочка • свердловина
Оголошення неактуальне чи інформація неточна?
- Оголошення створене 25 лис. ·
- ID 33733309 ·
- Переглядів 0
- · Збережень в обране 0