





















фото · 1 із 22

Дивитися всі фото
Дивитися на мапі
Продаж 1 поверхового будинку з верандою і ділянкою на 5 соток, 123.4 кв. м, 4 кімнати, на вулиця Гайова 22 • ID 33532534
125 000 $ за об'єкт · 5 318 750 грн · 1 013 $
за м²
Перевірений будинок
продавець надав техпаспорт
Перевірено по техпаспорту
Дата останньої перевірки 25 вер. 2025
- Загальна площа 123.4 м² · житлова 68.1 м² · кухня 18.2 м²
- 4 кімнати
- 1 поверх
- Ділянка 5 соток
Опис від продавця
- 4 кімнати · 1 поверх
- Загальна площа 123.4 м² · житлова 68.1 м² · кухня 18.2 м²
- Ділянка 5 соток
- Стіни з цегли
- Здача в 2025
- Пропозиція від посередника
- Вторинна нерухомість
- Біля лісу
- Спокійний район
- Вигідна ціна
- Акційна ціна, 125тис до 31-го грудня
продаємо приватний будинок
село Паланки
125кв.м згальної площі
5сот площа земельної ділянки
цегла|утепленний фасад
новобудова, будівництво 2025-го
нова пропозиція на ринку, продається вперше
сучасний проект, над яким працювали команда дизайнерів та архітекторів
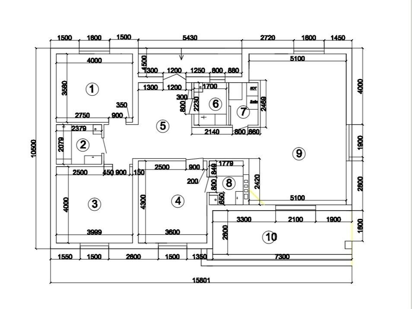
три ізольовані спальні, велика кухня вітальня площею кв.м, два санвузла, дві гардеробні та котельня
тераса площею 20кв.м, висота стелі 3.40м
0-ий цикл, поштукатурені стіни, залиті стяжки, монолітне перекриття, горище площею 70кв.м
фасад утепленний пінопластом 15см, вікна 2х камерний склопакет, сучасні вхідні двері
ділянка правильної форми, є зелена зона з насадженням
комунікації:електрика 15квт, каналізація септик, свердловина, є можливість налагодити центральне водопостачання
подвір'я буде вимощене бруківкою, є надійна основа для обгородження території
тиха та спокійна місцина, зовсім поруч сосновий ліс
- Особливості планування: з верандою
- Характеристика будівлі: стан будинку: потребує ремонту • перекриття: залізобетонне • дах: металочерепиця
- Характеристика приміщення: висота стелі, м: 3 • утеплення: зовнішнє
- Оздоблення стелі: без обробки
- Внутрішнє оздоблення: чистова штукатурка
- Комунікації: каналізація: септик
- Вода: свердловина
- Приміщення: кількість спалень: 3 • гараж: немає • котельня / бойлерна • вітальня • 3 санвузла
- На території є: ландшафтний дизайн • паркан
- Меблі: немає
- Особливості планування: панорамні / вітринні вікна • тераса • балкон/лоджія
- Унікальні переваги: З верандою • свердловина
- Обладнання • меблі • зручності: електрика • вивіз відходів • інтернет • каналізація септик
Оголошення неактуальне чи інформація неточна?
- Оголошення створене 2 січ. ·
- ID 33532534 ·
- Переглядів 0
- · Збережень в обране 0