








фото · 1 із 9

Дивитися всі фото
Дивитися на мапі
Продаж 1 поверхового будинку з ділянкою на 12 соток, 100 кв. м, 4 кімнати, на вул. Столична • ID 33758975
79 500 $ за об'єкт · 3 378 750 грн · 795 $
за м²
У процесі перевірки
Наразі DIM.RIA чекає даних від продавця
Продавець вказав, що готовий пройти перевірку на DIM.RIA. Щойно отримаємо документи або відео про цей об'єкт — відразу все розкажем тобі.
- 4 кімнати · 1 поверх
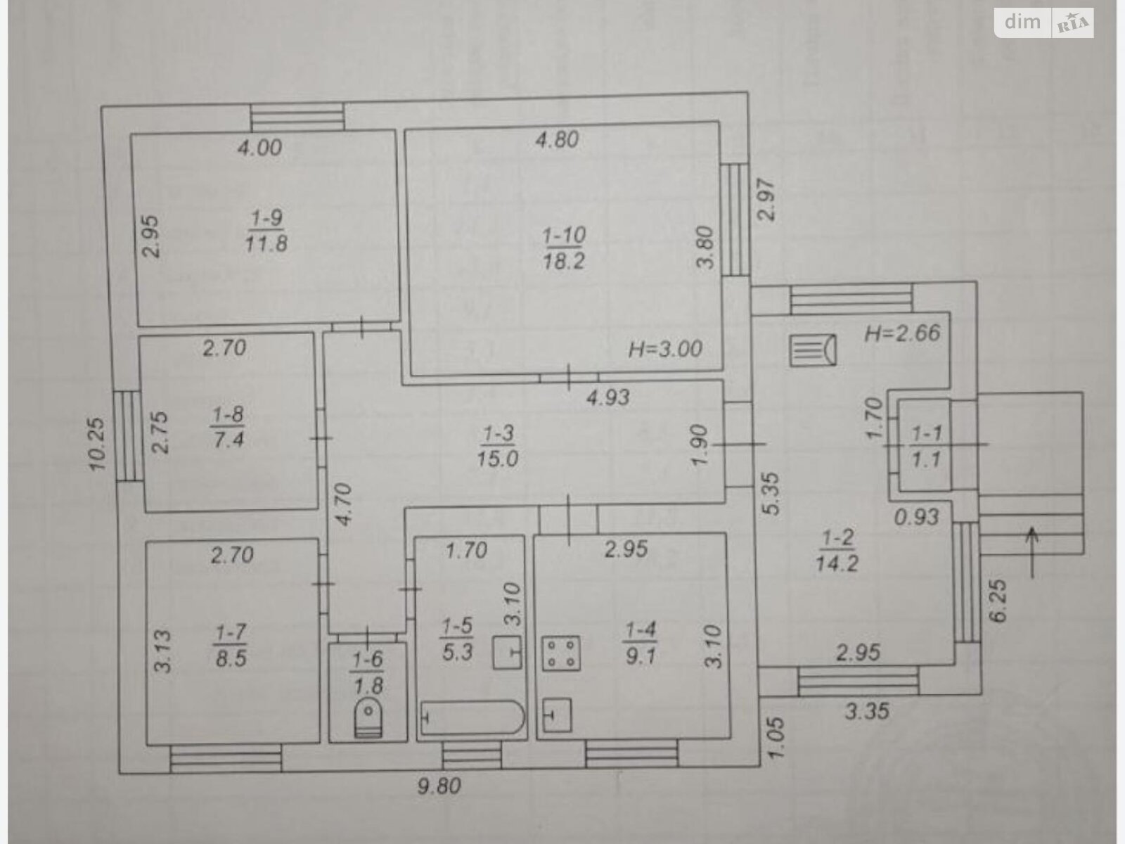
- Загальна площа 100 м² · житлова 45.9 м² · кухня 9.1 м²
- Ділянка 12 соток
- Стіни з цегли
- Побудовано 2001-2010
- Пропозиція від посередника
- Без комісії
- Вторинна нерухомість
Опис від продавця
- Продам будинок з ремонтом меблями і технікою.
Київська обл. Бучанський район с. Мила
Площа будинку 100м2
Площа земельної ділянки 12 соток
Все, що на фото залишається.
На території розміщено:
Господарські будівлі: сарай, літній душ, вбиральня, гараж, літня кухня, погріб.
Висаджений молодий плодоносний сад.
Огорожа по периметру ділянки.
Комунікації:
септик
Власна свердловини/колодязя;
Індивідуальне газове опалення.
Ділянка має зручний підїзд, рівний рельєф і правильну прямокутну форму.
Поруч житлові будинки, магазини, громадський транспорт.
До Києва 15 хвилин на авто.
Оформлення: будинок 2%, земля 1%.
Продаж можливий під державні програми.
Ціна 79500$
Телефонуйте!
- Характеристика будівлі: стан будинку: нормальний
- Характеристика приміщення: утеплення: без утеплення
- Опалення: газове
- Підігрів води: бойлер
- Приміщення: роздільний санвузол
- Обладнання • меблі • зручності: ванна • газова плита • електрика • газ
Об'єкт не такий, як в описі?
Розкажи нам, що не так - ми все перевіримо
- Оголошення створене 27 лис. ·
- ID 33758975 ·
- Переглядів 0
- · Збережень в обране 0