








фото · 1 із 9

Дивитися всі фото
Дивитися на мапі
Продаж 2 поверхового будинку з балконом і ділянкою на 15 соток, 211.9 кв. м, 5 кімнат, на вулиця Волинська 5 • ID 33806008
88 000 $ за об'єкт · 3 757 600 грн · 415 $
за м²
Перевірений будинок
продавець надав техпаспорт
Перевірено по техпаспорту
Дата останньої перевірки 14 гру. 2025
- Загальна площа 211.9 м² · житлова 86.7 м² · кухня 20.1 м²
- 5 кімнат
- 2 поверхи
- Ділянка 15 соток
Опис від продавця
- 5 кімнат · 2 поверхи
- Загальна площа 211.9 м² · житлова 86.7 м² · кухня 20.1 м²
- Ділянка 15 соток
- Стіни з поротерму
- Побудовано 2021
- Можлива переуступка
- Пропозиція від власника
- Без комісії
- єВідновлення
- Вторинна нерухомість
- єОселя
- З ділянкою
- Біля річки
- Торг можливий
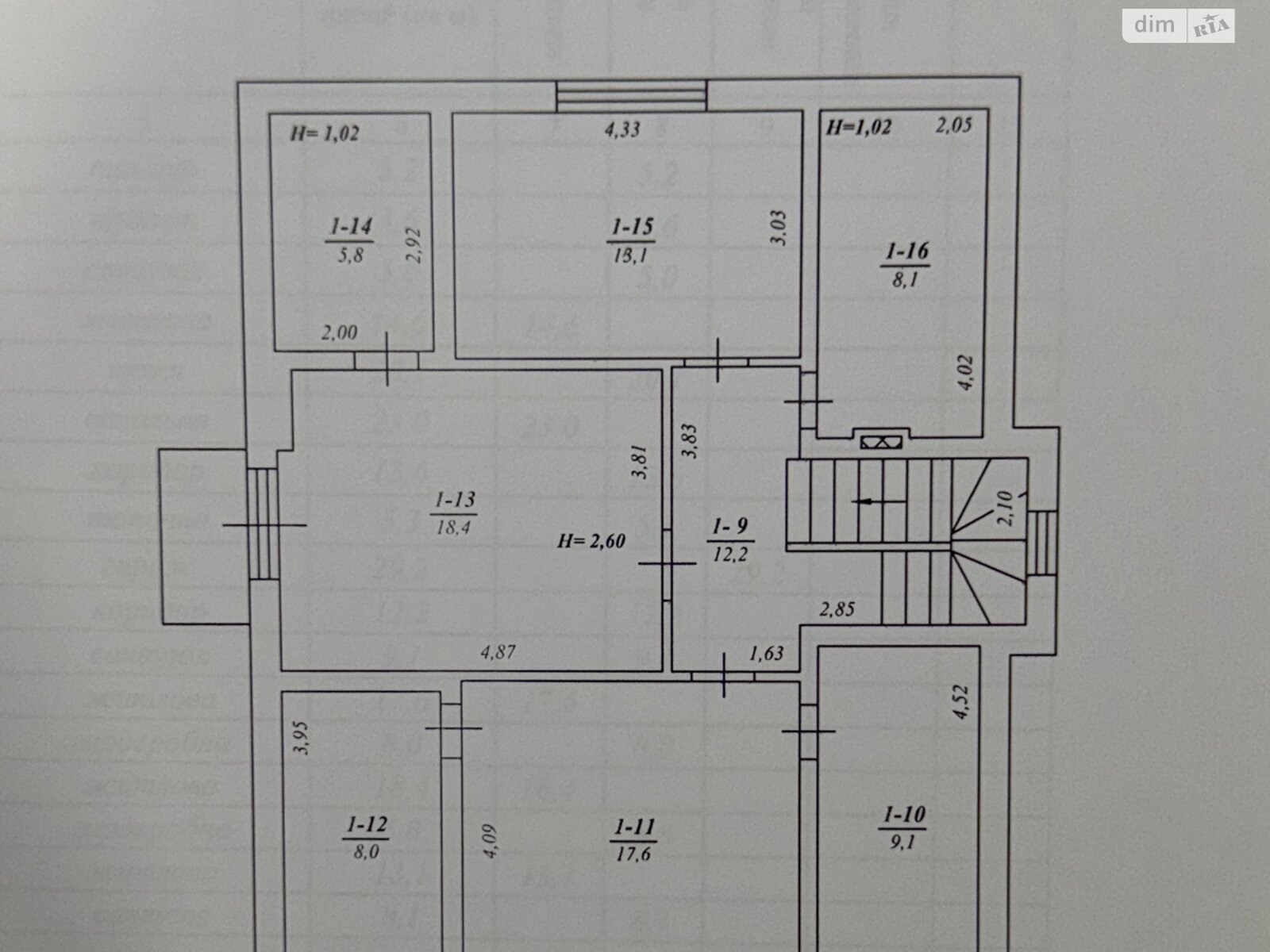
- Продається будинок 211, 9 м² на ділянці 15 соток правильної форми (27, 3×55 м). За адресою Макарів, вул. Волинська 5. Будинок зведений з керамоблоку (паротерм), стрічковий фундамент, монолітне перекриття, монолітні сходи та балкон.
Комунікації
Електрика 380 В, 15 кВт, двозонний лічильник (день/ніч).
Два переливні септики (3 і 4 кільця).
Свердловина 32 м, доступ через захищений оглядовий колодязь.
По дому заведена вся сантехніка до септиків і свердловини.
На обох поверхах зроблені чорнові стяжки, у гаражі чистова.
Встановлені енергозберігаючі вікна, металеві двері.
Планування
1 поверх: простора кухня-вітальня (можливість каміна), гостьова кімната, санвузол, котельня, гардеробна.
2 поверх (мансардний): 3 спальні, 2 санвузли, 2 гардеробні.
Гараж і двір
Гараж 29, 2 м² із оглядовою ямою.
Є ролети (без електроприводу).
По периметру ділянки армований фундамент та металопрофільний паркан.
У дворі залита монолітна плита 5×6, 35 м під сауну з підвалом та внутрішнім басейном.
Додатково
Є будматеріали для зведення сауни та альтанки (блок + металочерепиця).
Будинок робився для себе, зведений якісно, надійний фундамент і міцні конструкції чудова основа для завершення ремонту під себе.
- Особливості планування: з гаражем • з балконом
- Характеристика будівлі: перекриття: залізобетонне • дах: металочерепиця
- Вода: свердловина • криниця
- Двері та вікна: вхідні двері: металеві • захисні ролети на дверях
- Приміщення: кількість спалень: 4 • гараж: на першому поверсі • баня / сауна • котельня / бойлерна • гардероб • вітальня • 3 санвузла
- На території є: персональна водойма: басейн • город • погріб • будматеріали • паркан
- Меблі: немає
- Особливості планування: балкон/лоджія
- Обладнання • меблі • зручності: електрика • інтернет • каналізація септик
- Унікальні переваги: свердловина
Оголошення неактуальне чи інформація неточна?
- Оголошення створене 14 гру. 2025 ·
- ID 33806008 ·
- Переглядів 0
- · Збережень в обране 0