

















фото · 1 із 18

Дивитися всі фото
Дивитися на мапі
Продаж 2 поверхового будинку з балконом і ділянкою на 5 соток, 98 кв. м, 3 кімнати, на Зоряний провулок • ID 33638041
32 900 $ за об'єкт · 1 404 830 грн · 336 $
за м²
Перевірений будинок
Перевірено по відеодзвінку
Звіт від 26 жов. 2025
- Новобудова
- 3 кімнати
- 2 поверхи
- Ділянка 5 соток
- Пропозиція від посередника
- Без комісії
- З басейном
- З балконом
Опис від продавця
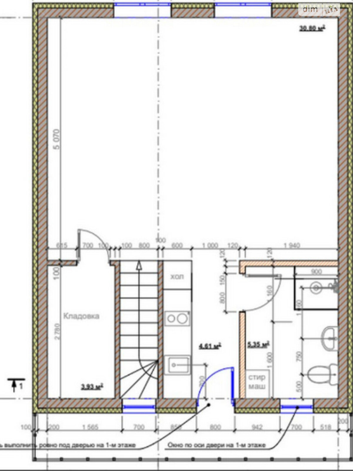
- Загальна площа 98 м² · житлова 30 м² · кухня 5 м²
- Стіни з газобетону
- Здача в 2025
- З ділянкою
- Біля лісу
- КОД 50745
Продаж 2 поверхового будинка !! Від власника в смт. Калинівка. (Васильків 2) провулок Зоряний 2.
Ціна кінцева та дійсна до нового року. Торгу немає.
Будинок розташовано на ділянці правильної форми площею 5 соток. Є можливість приватизувати ще 4 сотки.
Стан будинка - після будівельників. Загальна площа 98 м.кв
Будинок має вільне планування. В будинку розведена електрика. Встановлені вікна , зовнішні двері та автоматичні ворота -ролети.
Заведено сантехнічні та каналізаційні труби.
На першому поверсі велике приміщення 37 м.кв (можна зробити велику кухню- вітальню або використовувати як гараж) та три невеликих кімнати. Загальна площа 1-го поверху 47 м.кв.
На другому поверсі 2 кімнати (вільне планування), санвузол, кухня, комора , балкон. Загальна площа 51, 4 м.кв.
Будинок побудовано з газобетону та утеплено утеплювачем 100 мм.
Дах - металочерепиця.
Будинок знаходиться на стадії введення в експлуатацію. Відкриті документи на будівництво.
На ділянці в 5 соток є плодові та декоративні дерева, город, доріжки з плитки, котлован під басейн, паркан та хвіртка. Ділянка облаштована крапельним поливом.
Є можливість зробити прибудову. На ділянці є побутовий будиночок для будівельників.
Будинок розташовано недалеко від центра смт Калинівка.
Розвинена інфраструктура.
Поряд - центр надання адміністративних послуг (ЦНАП), відділення зв'язку та два банки, супермаркет "Фора", магазин "Аврора" 2 оновлених парка, Будинок культури, Будинок дитячої творчості, бібліотека, музична школа, 2 освітні школи та спортивна школа, великий стадіон, дитсадок а також лікарська амбулаторія, церква тощо.
Відмінна транспортна розвязка за рахунок великої кількості маршрутних таксі та електричок на Київ та Фастів.
Звертайтесь, буду радий відповісти на усі питання по даній пропозиції! З повагою, представник агенції нерухомості «Dogogo»
- Вхід в будинок: Вхід без порогів • Вхід шириною понад 90 см
- Двір: Паркувальне місце для людей з інвалідністю • Автоматичні ворота
- Характеристика будівлі: стан будинку: потребує ремонту • перекриття: залізобетонне • дах: металошифер
- Характеристика приміщення: висота стелі, м: 2.7 • утеплення: зовнішнє
- Оздоблення стелі: без обробки
- Підлога (покриття): стяжка
- Опалення: електричне
- Двері та вікна: захисні ролети на дверях
- Приміщення: кількість спалень: 2 • гараж: на першому поверсі • басейн • суміжний санвузол
- Коли немає світла: є інтернет • є мобільний зв'язок
- Під'їзд: броньовані двері
- На території є: персональна водойма: басейн • город • поливна система • госп.будівлі (сарай) • ворота: автоматичні • сад • паркан
- Меблі: немає
- Особливості планування: балкон/лоджія
- Унікальні переваги: Великий балкон • Індивідуальне опалення
- Обладнання • меблі • зручності: електрика
Оголошення неактуальне чи інформація неточна?
- Оголошення створене 26 жов. 2025 ·
- ID 33638041 ·
- Переглядів 0
- · Збережень в обране 0