
































фото · 1 із 33

Дивитися всі фото
Дивитися на мапі
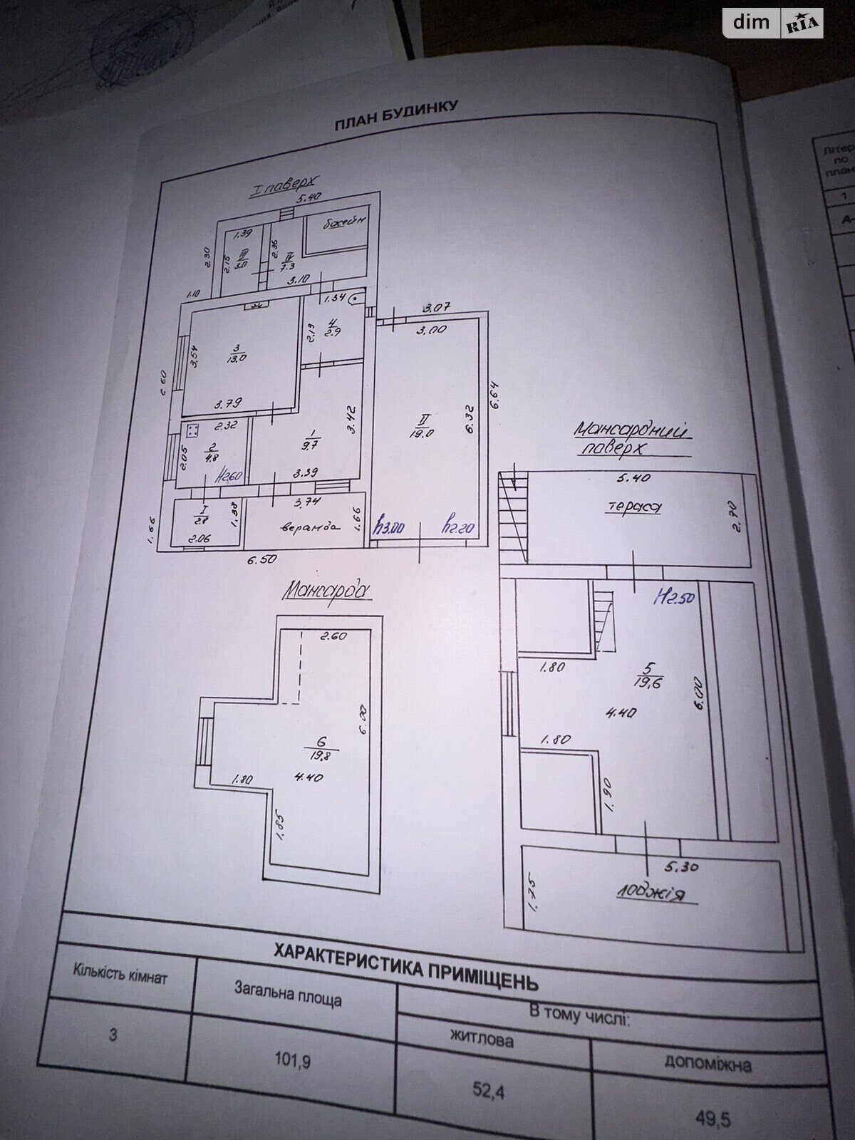
Продаж 2 поверхового будинку з верандою і ділянкою на 5.91 сотки, 101.9 кв. м, 3 кімнати, на СТ Озерний • ID 33701704
65 000 $ за об'єкт · 2 744 950 грн · 638 $
за м²
Перевірений будинок
продавець надав техпаспорт
Перевірено по техпаспорту
Дата останньої перевірки 12 лис.
- Загальна площа 101.9 м² · житлова 52.4 м² · кухня 4.8 м²
- 3 кімнати
- 2 поверхи
- Ділянка 5.91 сотки
Опис від продавця
- 3 кімнати · 2 поверхи
- Загальна площа 101.9 м² · житлова 52.4 м² · кухня 4.8 м²
- Ділянка 5.91 сотки
- Стіни з цегли
- Побудовано 2001-2010
- Кадастровий номер 6825089600:03:012:3389
- Пропозиція від посередника
- Без комісії
- Вторинна нерухомість
- Ексклюзив
- Біля лісу
- Торг можливий
- В продажу чудовий приватний будинок в Піденно-Західному районі міста, садівниче товариство "Озерний". Будинок переведений в житловий, є можливість міської прописки, повністю обжита вулиця, 400 м.від зупинки маршрутки.
Земельна ділянка - 5, 91 соток, ділянка правильної прямокутної форми, рівна, хороший заїзд на подвір'я. На ділянці облаштоване місце (залята бетоном площадка) під великий басейн (є в наявності на 10 тонн води), теплиця з поливом, невеличкі грядки, плодові дерева, облаштована зона для відпочинку з навісом (альтанка), штучна водойма невеличка з фонтанчиком.
В будинку є гаове опалення, двоконтурний новий котел (ще на гарантії), кондиціонер та пральна машинка нові - ще на гарантійному обслуговуванні, є посудомийна машинка, лічильник двозонний день-ніч, септик і скважина
43 м. Встановлений дорогий, якісний фільтр очистки води (більше 1000 дол.США коштує).
Будинок має два поверхи + мансарда. Перший поверх повністю житловий з гарним дизанерським ремонтом : коридор, велика кухня-студія. кімната, гардеробна, санвузол і приміщення під топочну і кладовка.
Залишаються всі меблі та техінка, в кухні - тепла підлога, є діючий камін.
Будинок підготовлений до продажу, прописаних немає, боргів по комунальним послугам немає.
Продаж без комісії для покупця.
Присутній торг!
телефонуйте Інна, показ у зручний час по домовленості.
- Особливості планування: з опаленням • з мансардою • з басейном • з верандою • бесідка
- Помешкання: Двері шириною понад 90 см • Душ без сходинок
- Вхід в будинок: Вхід без порогів • Вхід шириною понад 90 см
- Характеристика будівлі: стан будинку: дизайнерське оформлення • перекриття: залізобетонне • дах: шифер
- Характеристика приміщення: висота стелі, м: 2.6 • утеплення: зовнішнє
- Оздоблення стелі: побілка
- Підлога (покриття): керамічна плитка • ламінат
- Внутрішнє оздоблення: фарбування • декоративний камінь • керамічна плитка • кахель
- Комунікації: каналізація: септик • вентиляція / кондиціонування: кондиціонер(и)
- Вода: свердловина
- Опалення: двоконтурний котел • газове
- Підігрів води: бойлер • двоконтурний котел
- Приміщення: кількість спалень: 1 • гараж: на першому поверсі • котельня / бойлерна • гардероб • басейн • суміжний санвузол
- Обладнання • меблі • зручності: телевізор • камін • обідня зона • пральна машина • душова кабіна • електрична плита • духова шафа • мікрохвильова піч • Вбудована кухня • холодильник • кондиціонер • електрика • газ • витяжка • інтернет • каналізація септик • фільтр для води • двоспальне ліжко
- Коли немає світла: є інтернет • є мобільний зв'язок • працює опалення
- Під'їзд: броньовані двері
- На території є: персональна водойма: басейн • город • ландшафтний дизайн • поливна система • сад • паркан
- Особливості планування: підігрів підлоги • панорамні / вітринні вікна • тераса
- Унікальні переваги: Власна тераса • З бесідкою • З верандою • З опаленням • Криниця • свердловина
Оголошення неактуальне чи інформація неточна?
- Оголошення створене 12 лис. ·
- ID 33701704 ·
- Переглядів 0
- · Збережень в обране 0