














фото · 1 із 15

Дивитися всі фото
Дивитися на мапі
Продаж 2 поверхового будинку з гаражем і ділянкою на 12 соток, 300 кв. м, 5 кімнат, на Бучанський район • ID 33745196
215 000 $ за об'єкт · 9 180 500 грн · 717 $
за м²
Інформація неточна?
Продавець не підтвердив дані про цю нерухомість. Розкажіть, що не так, і ми перевіримо
Без перевірки
Опис від продавця
Продавець не підтвердив інформацію про цей об'єкт (не замовляв перевірку з представником DIM.RIA, не надсилав відео або документи)
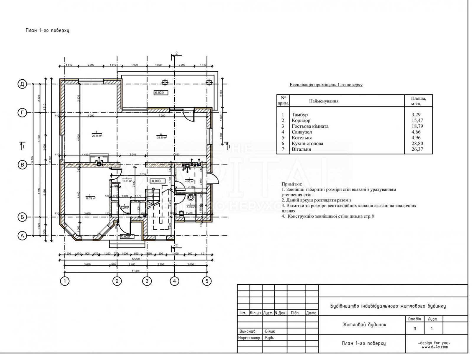
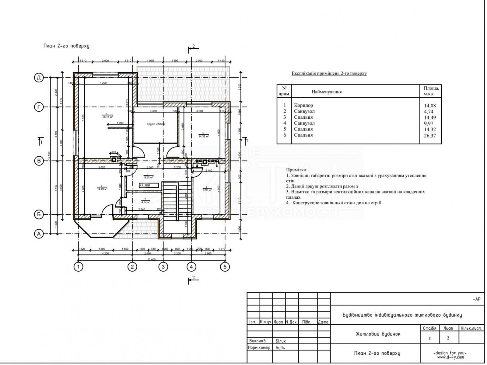
- 5 кімнат · 2 поверхи
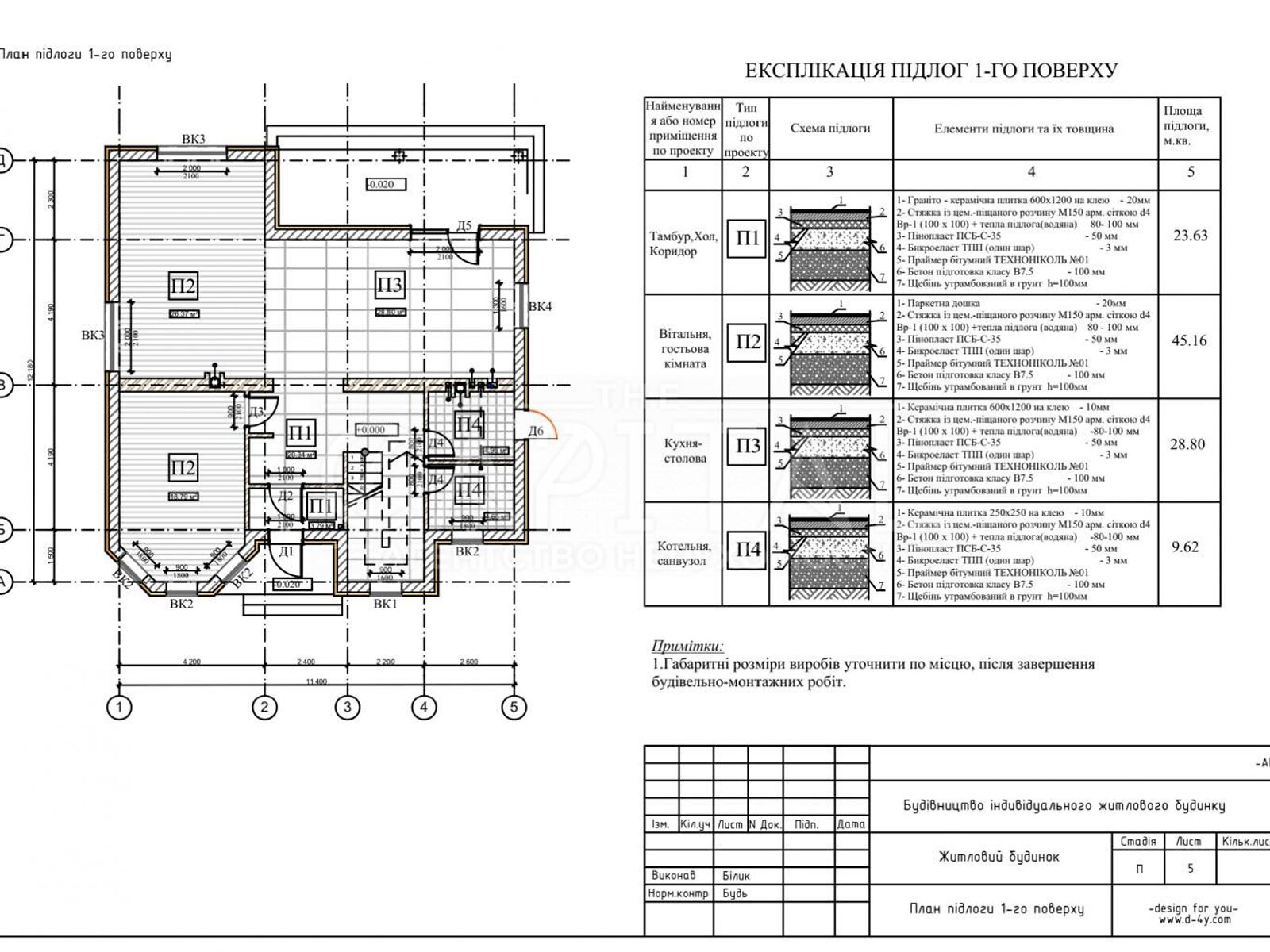
- Загальна площа 300 м² · житлова 80 м² · кухня 25 м²
- Ділянка 12 соток
- Стіни з цегли
- Пропозиція від посередника
- Вторинна нерухомість
- Біля лісу
- Біля річки
- Вигідна ціна
- Продам недобудований житловий будинок в передмісті Києва в оточенні лісів!
Маєток в 300м2 на 12 сотках землі в селі Горбовичі Бучанського району.
Призначення землі 02.01 -Для будівництва житлового будинку, господарських будівель та споруд.
Будинок побудований з якісних матеріалів - перекриття між першим і другим поверхом- залізобетонні плити, дах металочерепиця, фундамент- монолітно стрічковий, обкладений бутом+ армована подушка.
Міжкімнатні перестінки- Газоблок.
Вдале планування:
4 житлових кімнат
Шикарна вітальня 68.6 м2,
3 санвузли, 2 величезні ванні кімнати,
Окрема кухня 40м2
Котельня,
2 кладові кімнати,
Гараж 54м2
Невеликий винний погріб.
Комунікації
Свердловина
Електрика
Септик
Гарний підʼїзд до будинку
Чисте повітря, соловʼїний спів та гарний настрій буде забезпечений для нових власників!!!
#A24373
- Особливості планування: з гаражем
- Характеристика гаража: з підвалом
- Характеристика будівлі: стан будинку: без оздоблювальних робіт • дах: металочерепиця
- Характеристика приміщення: утеплення: зовнішнє
- Оздоблення стелі: інше
- Комунікації: каналізація: септик
- Вода: свердловина
- Опалення: централізоване
- Підігрів води: централізований
- Приміщення: гараж: в дворі • котельня / бойлерна • вітальня
- Коли немає світла: є інтернет • є мобільний зв'язок
- Під'їзд: броньовані двері
- На території є: паркан
- Характеристика ділянки: Розташування: в селі
- Меблі: немає
- Унікальні переваги: З гаражем • свердловина
- Обладнання • меблі • зручності: електрика • каналізація септик
- Оголошення створене 30 гру. 2025 ·
- ID 33745196 ·
- Переглядів 0
- · Збережень в обране 0