
























фото · 1 із 25

Дивитися всі фото
Дивитися на мапі
Продаж 2 поверхового будинку з гаражем і ділянкою на 15 соток, 567 кв. м, 7 кімнат, на вулиця Грушевського • ID 33180575
110 000 $ за об'єкт · 4 669 500 грн · 193 $
за м²
Перевірений будинок
продавець надав техпаспорт
Перевірено по техпаспорту
Дата останньої перевірки 9 чер.
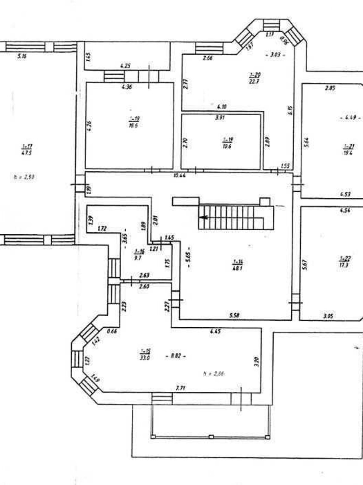
- Загальна площа 567 м² · житлова 155.4 м² · кухня 17.8 м²
- 7 кімнат
- 2 поверхи
- Ділянка 15 соток
Опис від продавця
- 7 кімнат · 2 поверхи
- Загальна площа 567 м² · житлова 155.4 м² · кухня 17.8 м²
- Ділянка 15 соток
- Стіни з цегли
- Кадастровий номер 5324087703:03:001:0027
- Пропозиція від посередника
- Комісія за послуги 3 %
- Вторинна нерухомість
- Біля лісу
- Запрошуємо велику сім"ю з декількох поколінь створити особисте гніздо в просторому будинку. Загальної площі 570 кв.м., вистачає для затишного проживання і проведення спільного часу всіх членів вашої родини. 8 кімнат можуть забезпечити комфорт та приватність кожного члена сім"ї.
Цей будинок має гараж на 2 авто, що забезпечує зручне паркування для членів родини. Наявність зимового саду додає особливий шарм та можливість насолоджуватись природою навіть у холодні місяці.
Додаткова перевага цього будинку полягає в його потенціалі для перепланування та адаптації під ваші потреби. Завдяки підготовці до ремонту, ви можете створити внутрішній простір, який ідеально відповідає вашим уподобанням та потребам великої сім"ї. Незалежно від того, чи ви хочете створити окремі зони для родинних зборів, громадських заходів або просто насолоджуватись спільним часом, цей будинок дозволить вам знайти внутрішню гармонію та затишок.
Цей будинок є ідеальним вибором для великої сім"ї, яка шукає простір, затишок та можливість для спільного проживання. Його потенціал для створення неповторного родинного простору вражає, а локація надає всі необхідні зручності для комфортного життя. Не пропустіть свій шанс стати власником цього просторового будинку та забезпечити своїй великій сім"ї місце для затишку та зближення.
Код 1340
Умови співпраці:
Послуги АН від 1, 5-5%, залежно від обраного пакета.
Лояльність.
1. Для наших захисників ЗСУ, ТРО, АТО 20% знижка на послуги АН
2. Для ВПО 15% знижка на послуги АН
3. Повторна купівля через наше АН - 15% знижка на послуги АН
4. Власник-покупець - 20% знижка на послуги АН
- Особливості планування: з гаражем
Оголошення неактуальне чи інформація неточна?
- Оголошення створене 9 чер. ·
- ID 33180575 ·
- Переглядів 0
- · Збережень в обране 0