















фото · 1 із 16

Дивитися всі фото
Дивитися на мапі
Продаж 1 поверхового будинку з ділянкою на 5 соток, 117 кв. м, 3 кімнати, на вул. Центральна • ID 33776556
85 000 $ за об'єкт · 3 591 250 грн · 726 $
за м²
Перевірений будинок
Перевірено по відеодзвінку
Звіт від 3 дек.
- Новобудова
- 3 кімнати
- 1 поверх
- Ділянка 5 соток
- Пропозиція від посередника
Опис від продавця
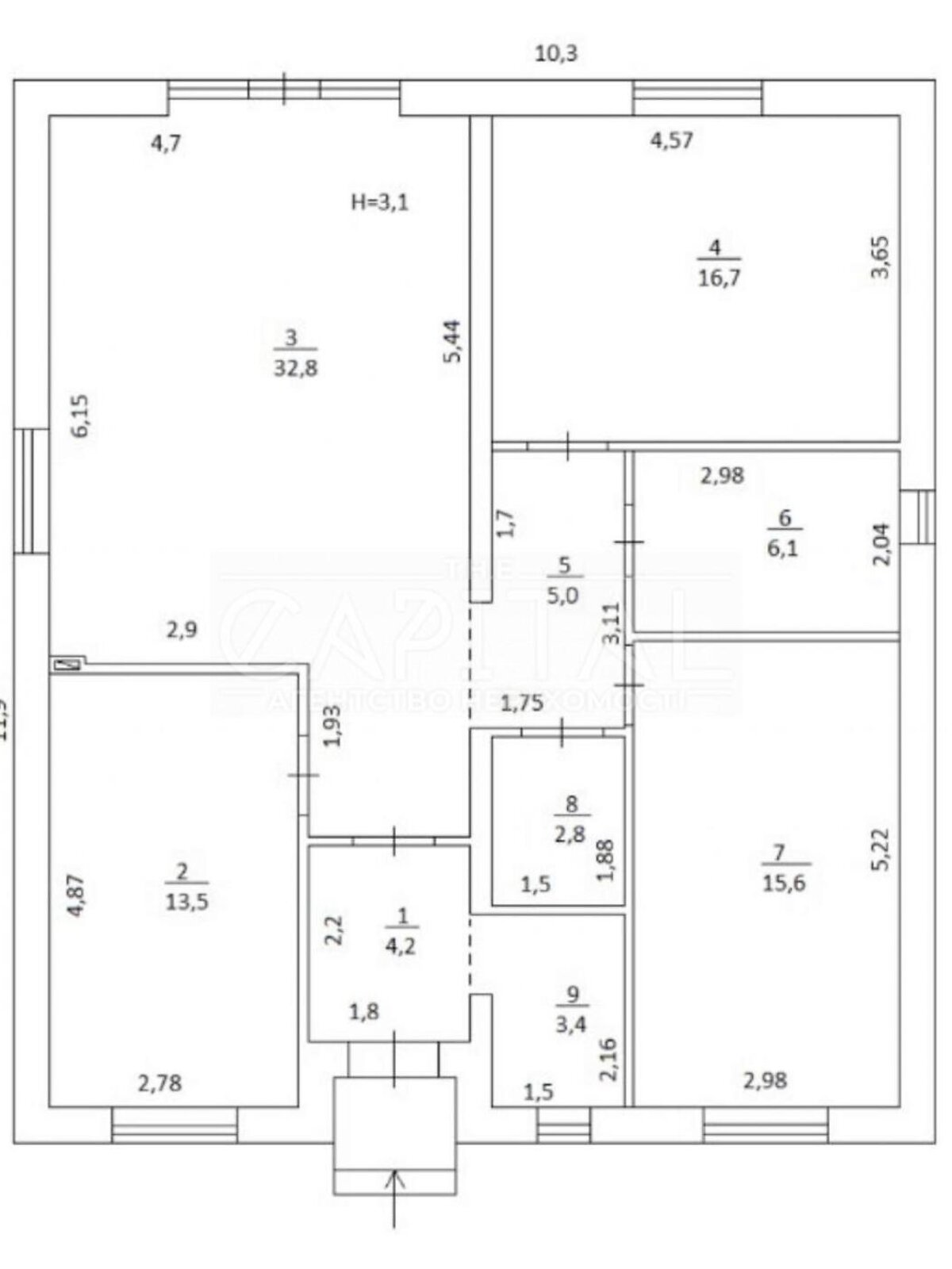
- Загальна площа 117 м² · житлова 85 м² · кухня 33 м²
- Стіни з цегли
- Здача в 2025
- Комісія за послуги 5 %
- єВідновлення
- єОселя
- Біля лісу
- Вигідна ціна
- Житло не використовувалось з моменту побудови
- Продається будинок біля Києва.
Площа будинку: 101 м²
Ділянка: 4.7 сотки
Будинок з керамоблоку і утеплення пінопласт 10 см.
Комунікації:
Септик 10 м³
Власна свердловина 35-40 м
Електрика 10 кВт
Газ по вулиці, за бажанням можна підключити.
Планування:
3 житлові кімнати: 14 м², 16 м², 17 м²
Простора кухня-вітальня 33 м²
2 санвузли
Технічна кімната
Переваги локації:
Тиха, зелена вулиця поблизу лісу
Дуже зручний та швидкий виїзд до траси в м. Києва
Державні програми ТАК!
Код об'єкту: A 2 4 9 0 1
- Помешкання: Двері шириною понад 90 см
- Двір: Паркувальне місце для людей з інвалідністю • Автоматичні ворота
- Характеристика будівлі: стан будинку: без оздоблювальних робіт • перекриття: змішане • дах: шифер
- Характеристика приміщення: висота стелі, м: 3 • утеплення: зовнішнє
- Оздоблення стелі: без обробки
- Підлога (покриття): моноліт
- Комунікації: каналізація: септик
- Вода: свердловина
- Опалення: газове
- Підігрів води: немає
- Приміщення: кількість спалень: 3 • гараж: немає • вітальня • 2 санвузла
- Коли немає світла: працює опалення • є газ
- Під'їзд: броньовані двері
- На території є: паркан
- Меблі: немає
- Особливості планування: панорамні / вітринні вікна
- Обладнання • меблі • зручності: електрика • газ • каналізація септик
- Унікальні переваги: свердловина
- Вхід в будинок: Вхід шириною понад 90 см
Оголошення неактуальне чи інформація неточна?
- Оголошення створене 3 дек. ·
- ID 33776556 ·
- Переглядів 0
- · Збережень в обране 0