






















фото · 1 із 23

Дивитися всі фото
Дивитися на мапі
Продаж 2 поверхового будинку з верандою і ділянкою на 21 сотку, 279.1 кв. м, 4 кімнати, на вул. Берегова 8Г • ID 33650002
139 000 $ за об'єкт · 5 872 750 грн · 498 $
за м²
Перевірений будинок
продавець надав техпаспорт
Перевірено по техпаспорту
Дата останньої перевірки 28 жов.
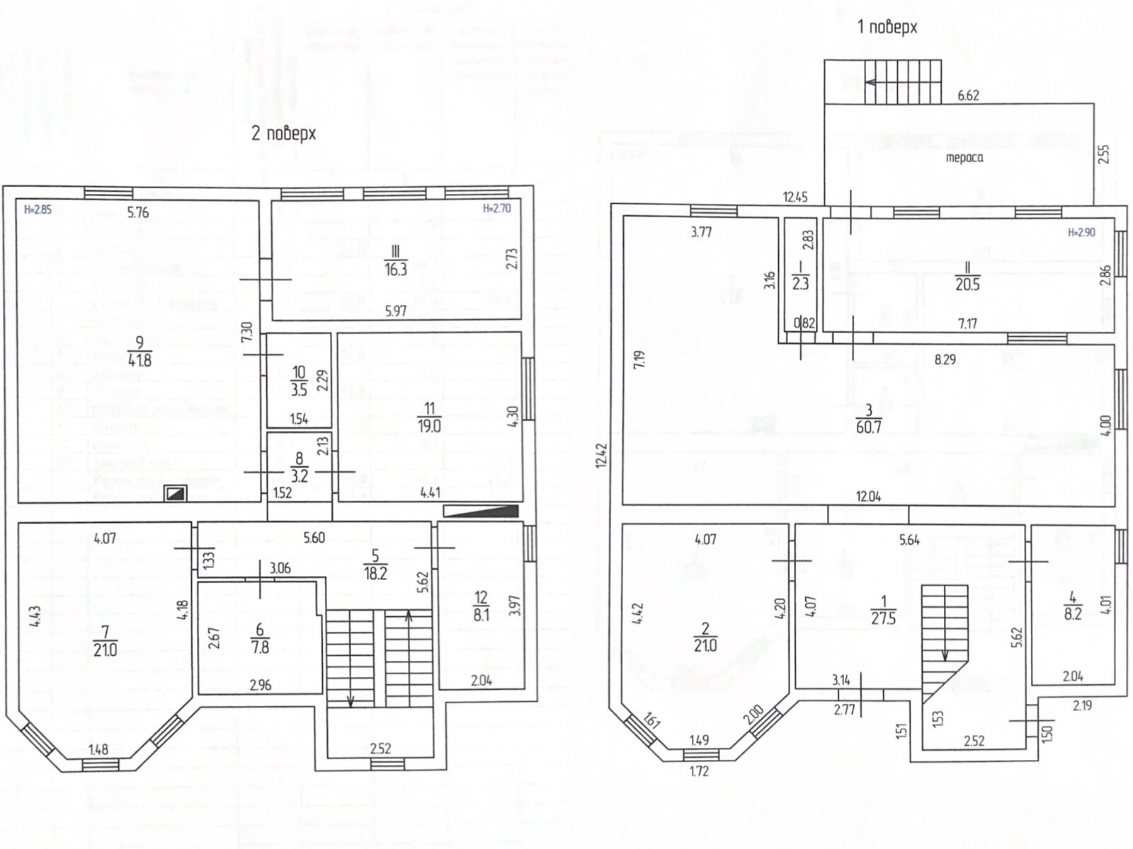
- Загальна площа 279.1 м² · житлова 102.8 м² · кухня 60.7 м²
- 4 кімнати
- 2 поверхи
- Ділянка 21 сотка
Опис від продавця
- 4 кімнати · 2 поверхи
- Загальна площа 279.1 м² · житлова 102.8 м² · кухня 60.7 м²
- Ділянка 21 сотка
- Стіни монолітно-каркасні
- Побудовано 2022
- Кадастровий номер 3522587200:55:000:0401
- Пропозиція від посередника
- Комісія за послуги 4 %
- єВідновлення
- Вторинна нерухомість
- єОселя
- Торг можливий
- Вигідна ціна
- Продається двоповерховий будинок с.Черняхівка на мальовничому березі р. Сугоклея. У пішій доступності (приблизно 500 м) супермаркет і відділення «Нова пошта».
Побудований у 2022 році з утеплених залізобетонних сендвіч-панелей за модернізованим і збільшеним проєктом котеджу «Гольфстрім».
Будинок площею 279 м² має мансарду та гараж на два великі авто. Дах утеплений, з мякою покрівлею. Побудований у 2022 році з утеплених залізобетонних сендвіч-панелей за модернізованим і збільшеним проектом котеджу «Гольфстрім».
Ділянка , огороджена новим профільним парканом із трьох сторін.
Планування:
1-й поверх: передпокій з виходом у гараж та широкі двомаршеві сходи на другий поверх, кімната, ванна кімната, кухня студія камінна, столова з виходом на літню терасу.
2-й поверх: гардеробна, 4 кімнати, ванна кімната, комора зі сходами на мансарду.
Комунікації:
електроенергія 3 фази (380 В),
центральний водопровід,
двосекційна переливно-зливна яма,
центральна асфальтована вулиця, якою курсує маршрутка.
Вам лишається найприємніше - закінчити ремонт та оздоблення за власними побажаннями і смаком!
Ціна 139000 дол. США. Деталі по телефону, запрошую на перегляд в зручний для Вас час.
АН КЛЮЧ, кращі пропозиції для ВАС!
Фахівець з питань нерухомості, Костянтин.
- Особливості планування: з гаражем • з верандою
- Двір: Паркувальне місце для людей з інвалідністю
- Характеристика гаража: з підвалом
- Характеристика будівлі: стан будинку: без оздоблювальних робіт • перекриття: залізобетонне • дах: бітумна черепиця
- Характеристика приміщення: висота стелі, м: 2.9 • утеплення: без утеплення
- Оздоблення стелі: без обробки
- Підлога (покриття): стяжка
- Вода: центральний водопровід
- Підігрів води: немає
- Опалення: без опалення
- Приміщення: кількість спалень: 4 • гараж: в дворі • гардероб • коридор • 2 санвузла
- Обладнання • меблі • зручності: ванна • електрика • каналізація септик
- Коли немає світла: є водопостачання
- На території є: город • сад • паркан
- Меблі: немає
- Особливості планування: тераса
- Унікальні переваги: Можлива розстрочка • З верандою • З гаражем
Оголошення неактуальне чи інформація неточна?
- Оголошення створене 28 жов. ·
- ID 33650002 ·
- Переглядів 0
- · Збережень в обране 0