





























фото · 1 із 30

Дивитися всі фото
Дивитися на мапі
Продаж 2 поверхового будинку з ремонтом і ділянкою на 6 соток, 67.8 кв. м, 3 кімнати, на вулиця Бічна • ID 33694588
27 500 $ за об'єкт · 1 170 125 грн · 406 $
за м²
Перевірений будинок
продавець надав техпаспорт
Перевірено по техпаспорту
Дата останньої перевірки 10 лис. 2025
- Загальна площа 67.8 м² · житлова 52 м² · кухня 9.2 м²
- 3 кімнати
- 2 поверхи
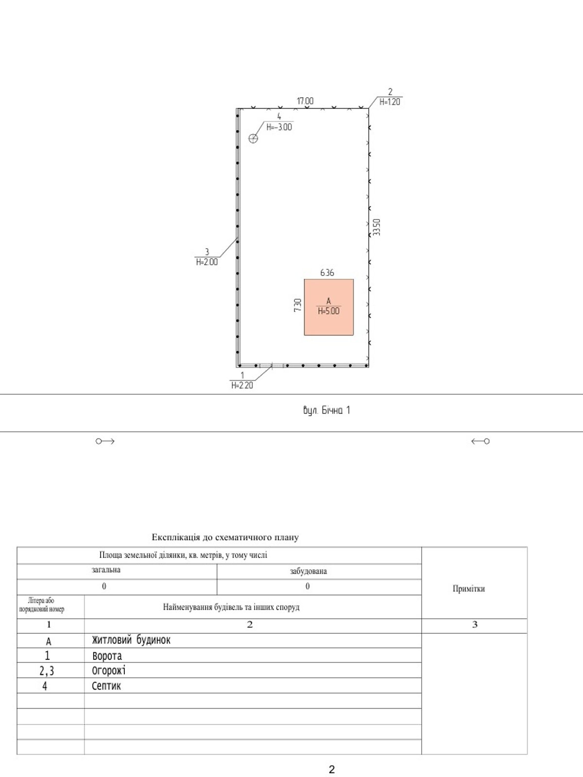
- Ділянка 6 соток
Опис від продавця
- 3 кімнати · 2 поверхи
- Загальна площа 67.8 м² · житлова 52 м² · кухня 9.2 м²
- Ділянка 6 соток
- Стіни з цегли
- Побудовано 1990-2000
- Пропозиція від посередника
- Без комісії
- Вторинна нерухомість
- Біля лісу
- Біля річки
- Вигідна ціна
- Будинок у с.Буцнів, вул.Бічна-1 дачий мікрорайон, доїзд від аркового мосту
Загальна площа 68 кв.м. ціна 27.500 $ Без комісіЇ для покупця !!!!!
на 1 поверсі з ремонтом кухня та спальня кімната
Плитка на підлозі у коридорі та кухні
на 2 поверсі є дві кімнати у сирому стані
Підвал є під коридором
Вода на подвірї від башні біля хати
Газ біля вікна будинку можна завести в середину
Під авто бетонна залита площадка можна під навіс облаштувати
Сучасні ковані металічні ворота відсувні
- Особливості планування: з ремонтом
- Характеристика гаража: з підвалом
- Характеристика будівлі: стан будинку: хороший • перекриття: залізобетонне • дах: металошифер
- Характеристика приміщення: висота стелі, м: 2.7
- Оздоблення стелі: побілка
- Підлога (покриття): керамічна плитка • дощата підлога
- Внутрішнє оздоблення: дерев'яна вагонка
- Вода: центральний водопровід
- Опалення: пічне
- Підігрів води: комбінований
- Приміщення: кількість спалень: 1 • гараж: немає • Туалет на території
- Обладнання • меблі • зручності: обідня зона • газова плита • диван • електрика • газ • каналізація септик
- Коли немає світла: є водопостачання • працює опалення • є газ
- На території є: город • погріб • сад • паркан
- Унікальні переваги: Індивідуальне опалення • З ремонтом
- Вхід в будинок: Вхід шириною понад 90 см
Оголошення неактуальне чи інформація неточна?
- Оголошення створене 10 лис. 2025 ·
- ID 33694588 ·
- Переглядів 0
- · Збережень в обране 0