












фото · 1 із 13

Дивитися всі фото
Дивитися на мапі
Продаж 1 поверхового будинку з ділянкою на 5 соток, 118 кв. м, 3 кімнати, на вул. Івана Мазепи • ID 33606434
120 000 $ за об'єкт · 5 058 000 грн · 1 017 $
за м²
Перевірений будинок
Перевірено по відеодзвінку
Звіт від 13 жов.
- Новобудова
- 3 кімнати
- 1 поверх
- Ділянка 5 соток
- Пропозиція від посередника
- Без комісії
Опис від продавця
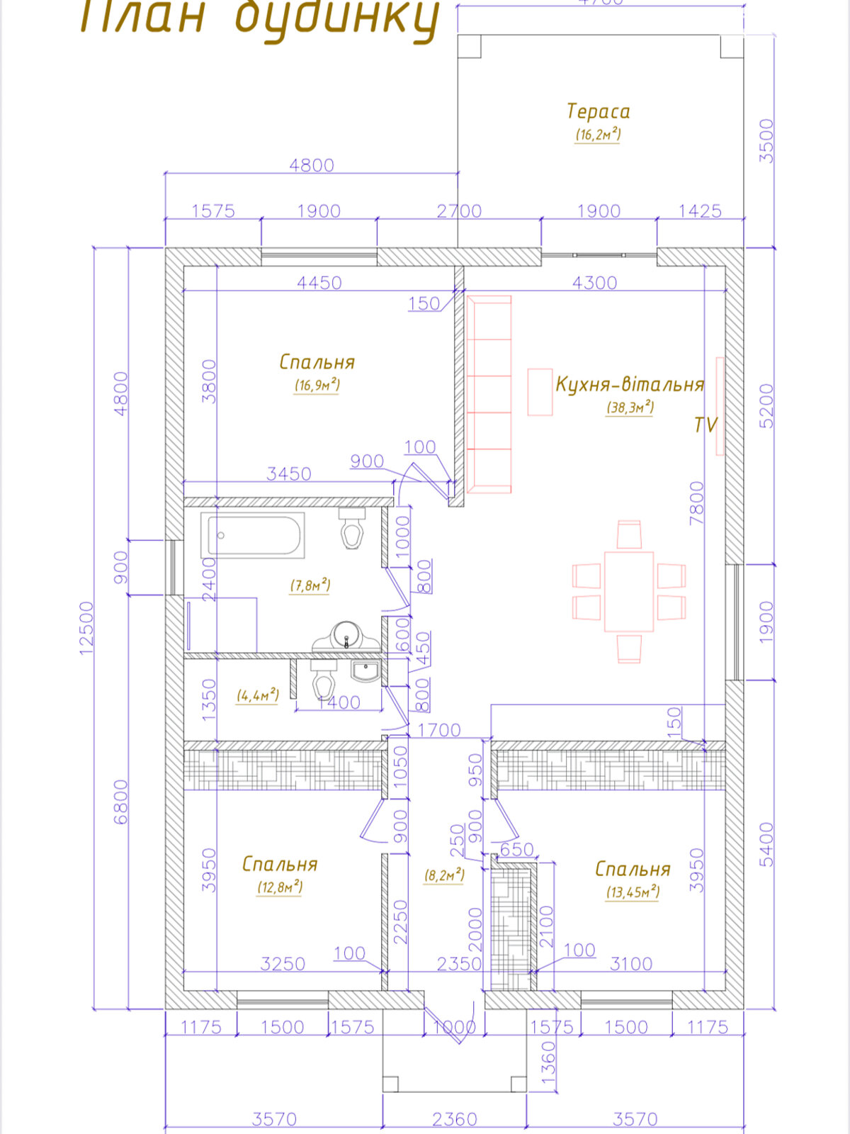
- Загальна площа 118 м² · житлова 43.15 м² · кухня 38.3 м²
- Стіни з цегли
- Біля лісу
- Біля річки
- Спокійний район
- Пропонується до продажу сучасний одноповерховий будинок площею 118 м² на ділянці 5 соток.
- Будинок побудований з газоблоку та утеплений пінопластом теплий і енергоефективний. - Виконані основні внутрішні роботи: стяжка підлоги, штукатурка стін, розведена електрика.
- Простора тераса для відпочинку та сімейних вечорів.
- Є автонавіc для автомобіля.
- Ділянка з ландшафтним дизайном.
Комунікації: Електрика 3 фази 13квт, Вода свердловина, Каналізація септик 8 куб.
Будинок розташований у тихій та зеленій частині Лісової Бучі.
Зручний виїзд на Київ, поруч школа, садочок, магазини.
- Продаж без комісії для покупця!
- Оздоблення стелі: штукатурка
- Підлога (покриття): стяжка
- Комунікації: каналізація: септик
- Вода: свердловина
- На території є: сад
- Особливості планування: тераса
- Обладнання • меблі • зручності: електрика • каналізація септик
- Унікальні переваги: свердловина
Оголошення неактуальне чи інформація неточна?
- Оголошення створене 13 жов. ·
- ID 33606434 ·
- Переглядів 0
- · Збережень в обране 0