

























фото · 1 із 26

Дивитися всі фото
Дивитися на мапі
Продаж 1 поверхового будинку з гаражем і ділянкою на 6 соток, 110 кв. м, 4 кімнати, на вул. Левка Симиренка 5 • ID 33120110
165 000 $ за об'єкт · 7 004 250 грн · 1 062 $
за м²
Перевірений будинок
Перевірено по відеодзвінку
Звіт від 19 тра.
- Вторинна нерухомість
- 4 кімнати
- 1 поверх
- Ділянка 6 соток
- Пропозиція від посередника
- З опаленням
- З гаражем
Опис від продавця
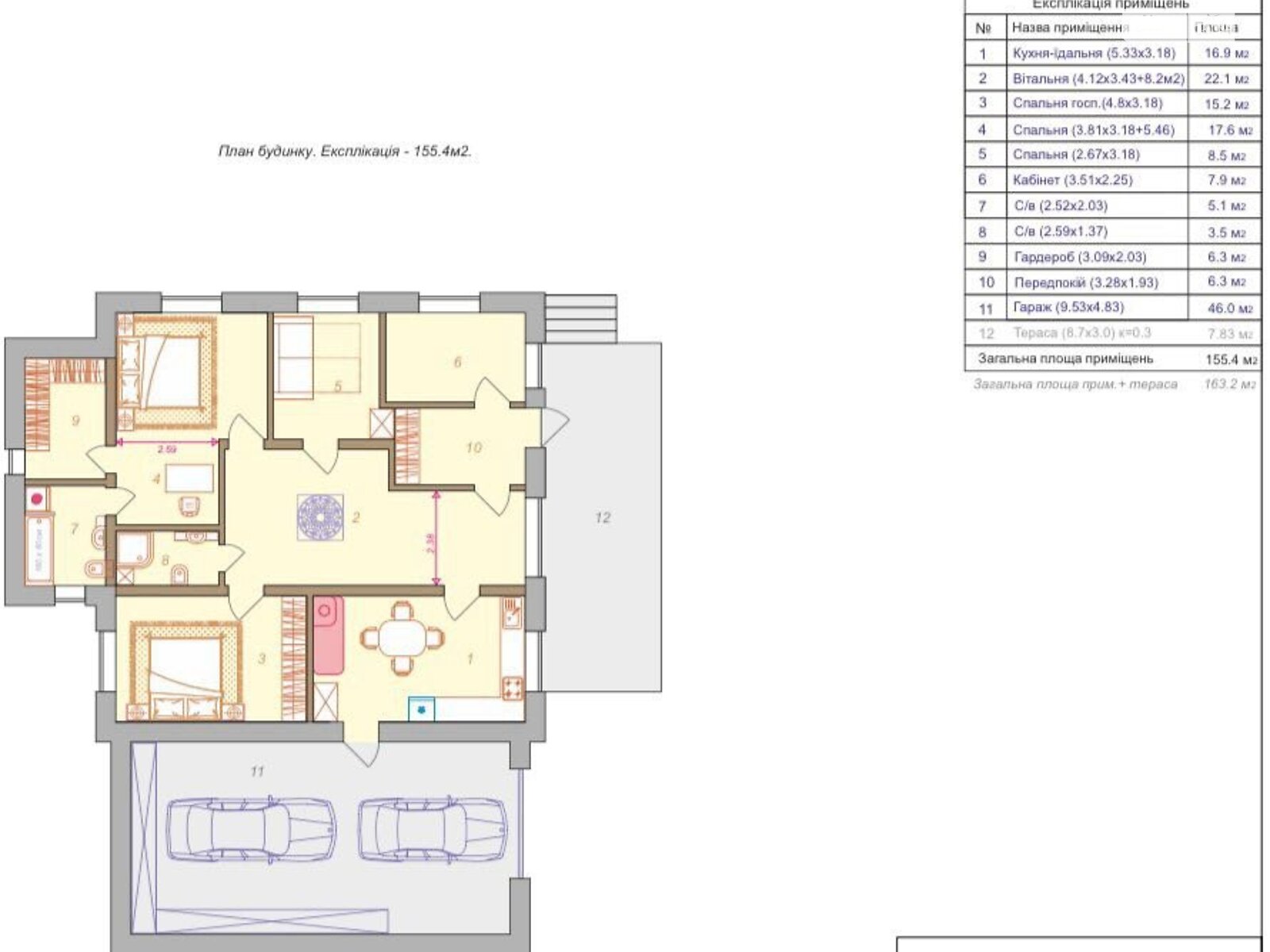
- Загальна площа 110 м² · житлова 110 м² · кухня 17 м²
- Стіни з панелей
- Побудовано 2017
- Кадастровий номер 3210800000:01:132:0358
- З ділянкою
- Біля лісу
- Житло не використовувалось з моменту побудови
- Пропонується до продажу одноповерховий екологічний будинок авторського проєкту в чистій частині Бучі. Затишне місце для життя або заміського відпочинку серед зелені, тиші та з неймовірно зручною логістикою до Києва.
Про будинок:
Загальна площа 110 м²
Побудований із панелей з пресованого житнього сіна в поєднанні з цеглою.
Покрівля Євродах ( європейський шифер)
Встановлена дровяна піч на 1500 цеглин - естетика, тепло та автономність
Опалення електричний котел бойлер та тепла підлога
Просторе та функціональне планування: 3 спальні кімнати, кухня-вітальня, кабінет, 2 санвузли, гардероб, передпокій, горище.
Технічні характеристики:
Електрика: 3 фази, 25 кВт - з достатнім запасом потужності
Свердловина 46 метрів
Септик 120 м³ з дренажним полем - сучасне, безпечне рішення
Територія:
Ділянка 6 соток, приватизована, доглянута
Гараж 50 м² на 2 автомобілі
Тераса 7, 8 м² - ідеальне місце для сніданку, читання чи релаксу
Територія обгороджена, є автоматичні ворота
Є підсобні приміщення, простір для саду або зони барбекю
Повна автономія:
Під час блекаутів працює опалення, інтернет, водопостачання
Наявна сигналізація, швидкісний Wi-Fi, цифрове й кабельне ТБ
Вивіз відходів організований
Швидкий виїзд до траси на Київ
Цей будинок поєднання екологічності, автономності та сучасного дизайну. Будинок розташований в тихому районі Бучі, поряд ліс і річка.
Телефонуйте з радістю організую перегляд та відповім на всі запитання. Можливо, саме тут ваш новий дім.
- Двір: Автоматичні ворота
- Характеристика будівлі: стан будинку: відмінний • перекриття: змішане • дах: металошифер
- Характеристика приміщення: утеплення: зовнішнє
- Оздоблення стелі: фарбування
- Підлога (покриття): керамічна плитка
- Внутрішнє оздоблення: шпалери • декоративний камінь • керамічна плитка • кахель
- Комунікації: каналізація: септик • інтернет: Wi-Fi
- Вода: свердловина
- Опалення: двоконтурний котел • пічне
- Підігрів води: бойлер • двоконтурний котел
- Приміщення: кількість спалень: 3 • гараж: на першому поверсі • гардероб • кабінет • вітальня • коридор • 2 санвузла
- Обладнання • меблі • зручності: телевізор • посудомийна машина • душова кабіна • електрична плита • духова шафа • шафа-гардероб • Вбудована кухня • електрика • витяжка • вивіз відходів • інтернет • каналізація септик • письмовий стіл • двоспальне ліжко
- Коли немає світла: є інтернет • є мобільний зв'язок • є водопостачання • працює опалення
- Під'їзд: броньовані двері • відеоспостереження на території
- На території є: погріб • ворота: автоматичні • сад • барбекю • паркан
- Особливості планування: підігрів підлоги • тераса
- Унікальні переваги: Індивідуальне опалення • З гаражем • З опаленням • свердловина
Оголошення неактуальне чи інформація неточна?
- Оголошення створене 19 тра. ·
- ID 33120110 ·
- Переглядів 0
- · Збережень в обране 0