

























фото · 1 із 26

Дивитися всі фото
Дивитися на мапі
Продаж 2 поверхового будинку з гаражем і ділянкою на 40 соток, 250 кв. м, 4 кімнати, на вулиця Садова • ID 33364021
370 000 $ за об'єкт · 15 706 500 грн · 1 480 $
за м²
Перевірений будинок
Перевірено по відеодзвінку
Звіт від 8 сен. 2025
- Новобудова
- 4 кімнати
- 2 поверхи
- Ділянка 40 соток
- Пропозиція від посередника
- Без комісії
- З гаражем
Опис від продавця
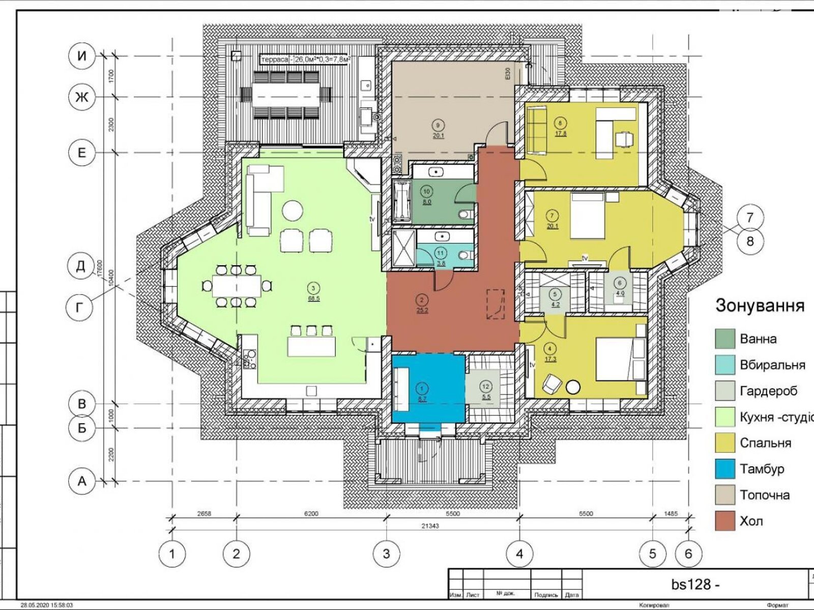
- Загальна площа 250 м² · житлова 100 м² · кухня 50 м²
- Стіни з цегли
- Біля озера
- З ділянкою
- Оперативний показ
- Продаж будинку в с. Бобриця, 40 соток, 4 кімнати, інженерія зроблена, під чистове оздоблення.
Пропонується до продажу сучасний будинок у престижному селі Бобриця в одному з найзеленіших та найспокійніших передмість Києва. Ідеальний варіант для тих, хто шукає продуману архітектуру, технологічне наповнення та можливість реалізувати інтерєр на свій смак.
Площа ділянки: 40 соток
Кількість кімнат: 4
Гараж на 2 авто
Місце під гостьовий будинок, терасу, баню та зону барбекю
Планування:
Дитяча кімната з гардеробом
Майстер-спальня з власною гардеробною та сейфом
Ще дві кімнати під спальню, кабінет або гостьову
2 санвузли (великий санвузол з двома умивальниками, другий зі вбудованими системами)
Котельня
Камін
Що вже зроблено:
Повністю змонтовані теплі підлоги по всьому будинку
Система вентиляції та сушки
Зібрана електрика
Буферна ємність, бойлер, підготовка під тепловий насос
Електрокотел з керуванням через смартфон
Система очищення води з фільтрами
Газ заведено в будинок
Септик
Дизельний генератор
Будинок будувався під наглядом досвідченого прораба. Використано якісні матеріали, дах зроблений із каменю - надійність і довговічність. Всі ключові інженерні системи вже змонтовані.
Локація: тиха вулиця, навпроти будинку сосновий ліс. Асфальтований підїзд, солідне сусідство, екологічно чиста зона. До Києва 20 хвилин на авто.
Ціна за запитом
Телефонуйте або пишіть, щоб домовитись про перегляд і дізнатись усі деталі
#A19599
- Характеристика будівлі: стан будинку: будівельна обробка • перекриття: невідомо
- Характеристика приміщення: утеплення: зовнішнє
- Оздоблення стелі: інше
- Комунікації: каналізація: септик
- Підігрів води: бойлер
- Приміщення: кількість спалень: 3 • котельня / бойлерна • кабінет • 2 санвузла
- Обладнання • меблі • зручності: камін • система очищення питної води • електрика
- Коли немає світла: є резервне живлення
- Під'їзд: броньовані двері
- На території є: барбекю
- Унікальні переваги: З гаражем • свердловина
Оголошення неактуальне чи інформація неточна?
- Оголошення створене 8 сен. 2025 ·
- ID 33364021 ·
- Переглядів 0
- · Збережень в обране 0