







фото · 1 із 8

Дивитися всі фото
Дивитися на мапі
Оренда офісного приміщення на вул. Добровольців 18А, приміщень - 8, поверх - 2 • ID 33745005
ЖК Гранд Парк
Більше про новобудову
127 290 грн · 3 000 $
Інформація неточна?
Продавець не підтвердив дані про цю нерухомість. Розкажіть, що не так, і ми перевіримо
Без перевірки
Опис від продавця
Продавець не підтвердив інформацію про цей об'єкт (не замовляв перевірку з представником DIM.RIA, не надсилав відео або документи)
- Будівля / комплекс / павільйон
- 8 приміщень
- 2 поверх з 3
- Загальна площа 300 м²
- Пропозиція від власника
- Без комісії
- Вторинна нерухомість
- Укриття в будинку
- Територія під охороною
- Гарний краєвид
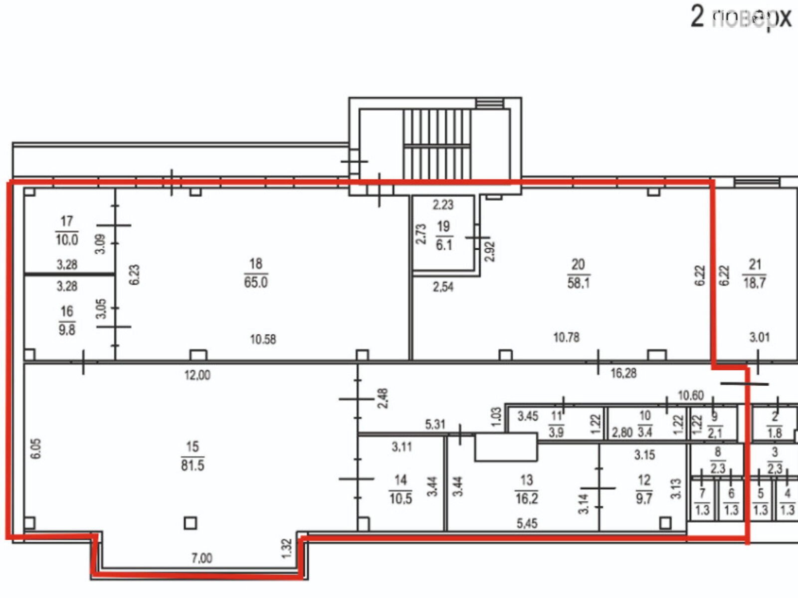
- Офісне приміщення 300 м² з видом на парк
Пропонується в оренду просторе офісне приміщення площею 300 кв. м, розташоване на 2-му поверсі будівлі з входом зі двору. Панорамні вікна відкривають вид на зелений парк, що створює комфортну атмосферу для роботи.
Переваги:
- Раціональне планування, можливість зонування під ваш формат
- Централізована система клімат-контролю стабільна температура та вентиляція цілий рік
- Генератор резервне живлення у разі відключень
- Електроенергія, вода та опалення за лічильниками
- Стабільне інтернет-підключення (за потреби)
- Парковка для співробітників та клієнтів
- Доступ до приміщення 24/7
- Тиха локація, віддалена від шуму магістралей
- Характеристика будівлі: клас об'єкта: В+ • стан: хороший • частина будівлі
- Характеристика приміщення: висота стелі, м: 3.5 • вільне (open space) • кабінетне
- Комунікації: вентиляція / кондиціонування: вентиляція
- Двері та вікна: захисні ролети на дверях
- Опалення: автономна котельня
- Підігрів води: бойлер
- Приміщення: санвузол: в приміщенні
- Обладнання • меблі • зручності: Wi-Fi • електрика • інтернет
- Коли немає світла: є інтернет • є водопостачання • працює опалення • є резервне живлення
- Під'їзд: охоронець • відеоспостереження на території • протипожежна система
- На території є: стоянка для автівок: відкрита
- Меблі: немає
- Особливості планування: панорамні / вітринні вікна
- Оголошення створене 24 лис. ·
- ID 33745005 ·
- Переглядів 0
- · Збережень в обране 0
Інформація про ЖК
Будинок
Підземний паркінг
200 паркомісць
Чорнове внутрішнє оздоблення
Монолітно-каркасний будинок
12-16 поверхів
Автономне опалення
Стіни з газоблоку
Висота стелі 3 м
Клас комфорт
268 квартир
Користується попитом на DIM.RIA
Вас можуть зацікавити
Інші типи нерухомості у Одесі