























фото · 1 із 24

Дивитися всі фото
Дивитися на мапі
Оренда офісного приміщення на просп. Соборності, приміщень - 7, поверх - 5 • ID 33509370
84 574 грн · 1 990 $
Перевірений офіс
Перевірено по відеодзвінку
Звіт від 25 вер.
- Вторинна нерухомість
- 7 приміщень
- 5 поверх з 5
- Пропозиція від посередника
Опис від продавця
- Бізнес-центр
- Загальна площа 361.2 м²
- Оперативний показ
- Терміново
- Вигідна ціна
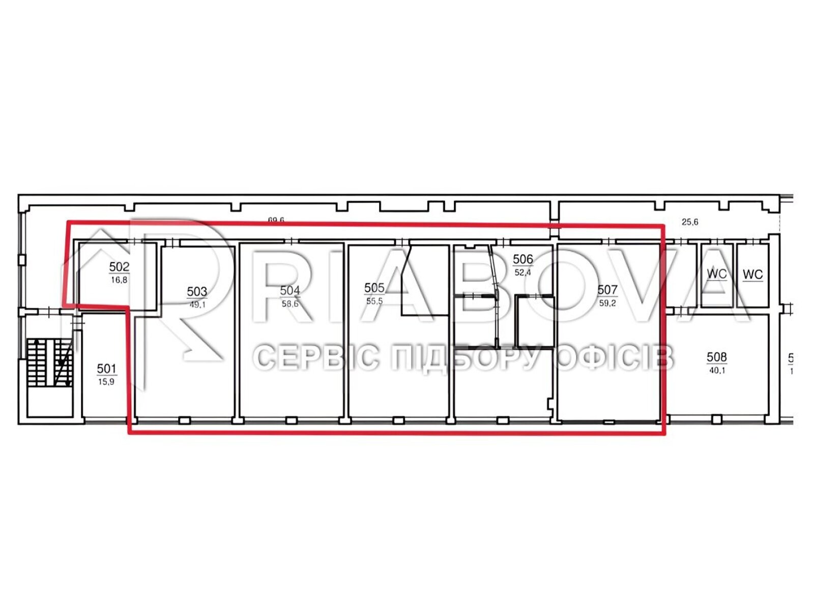
- Оренда нежитлового приміщення площею 361 метр, 5-й поверх, 7 кабінетів, нежитловий фонд. Стан ремонту: після орендаря, меблювання: немає. Переваги: парковка. Власник платник ПДВ. Орендна ставка: 108 UAH/метр (з ПДВ). Експлуатаційні витрати (OPEX): 115 UAH/метр (з ПДВ). Коефіцієнт загальних площ (BOMA): 5%. Загальна вартість: 84 575 UAH/місяць (з ПДВ) + комунальні. Всі ціни підлягають обговоренню в індивідуальному порядку. Приміщення розташоване в Дніпровському районі, на пр-т. Соборності. На момент останнього оновлення приміщення вільне. Телефонуйте для уточнення деталей та запису на перегляд. ID приміщення: 20998.
- Характеристика будівлі: клас об'єкта: С • стан: нормальний • окреме приміщення
- Характеристика приміщення: висота стелі, м: 3 • вільне (open space) • кабінетне
- Обладнання • меблі • зручності: пропускна система
- Меблі: немає
Оголошення неактуальне чи інформація неточна?
- Оголошення створене 25 вер. ·
- ID 33509370 ·
- Переглядів 0
- · Збережень в обране 0
Користується попитом на DIM.RIA
Вас можуть зацікавити
Інші типи нерухомості у Києві