





фото · 1 із 6

Дивитися всі фото
Дивитися на мапі
Здається комерційне приміщення на вул. Саперне Поле 12, площа 73.1 кв.м • ID 33613274
ЖК Французький квартал
Більше про новобудову
105 425 грн · 2 500 $
Перевірене комерційне приміщення
продавець надав техпаспорт
Перевірено по техпаспорту
Дата останньої перевірки 16 жов.
- Загальна площа 73.1 м² · корисна 73.1 м²
- 1 приміщення
- 1 поверх з 1
Опис від продавця
- Нежитлове приміщення в житловому будинку
- 1 приміщення
- 1 поверх з 1
- Загальна площа 73.1 м² · корисна 73.1 м²
- Пропозиція від власника
- Без комісії
- Вторинна нерухомість
- Престижний район
- У центрі
- Вигідна ціна
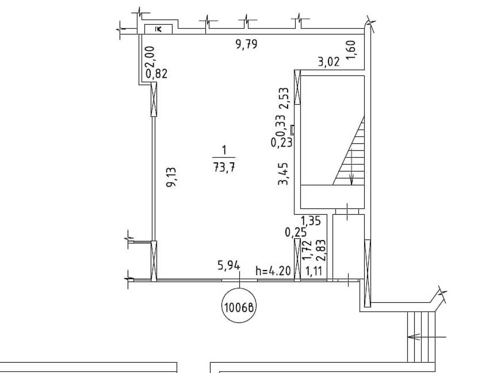
- Оренда фасадного приміщення з окремою вхідною групою та ремонтом 73, 7 м² + тераса в ЖК Французький Квартал, Київ, вул. Саперне Поле, 12.
Площа приміщення: 73, 7 м².
Літня тераса: 30, 7 м².
53 кВт, можливе збільшення до 63 кВт. Окрема витяжка на дах.
Приміщення після піцерії: якісний ремонт, санвузол, усі необхідні комунікації.
Підходить для:
ресторану, кафе, піцерії,
кав'ярні, пекарні,
магазину.
Інтенсивний пішохідний та автомобільний трафік.
Поруч Бульвар Фонтанів, Престиж Хол, Централ Парк, Сільпо, офіси, житлова забудова.
Зручна транспортна розв'язка:
близькість до метро Палац Україна, Печерська та Либідська.
Можливий продаж чинного бізнесу - піцерії.
- Вхід в будинок: Пандус
- Характеристика будівлі: стан: відмінний • цільове призначення: під магазин • фасадне приміщення
- Характеристика приміщення: висота стелі, м: 4.2
- Опалення: централізоване
- Приміщення: хол
- Обладнання • меблі • зручності: електрика
Оголошення неактуальне чи інформація неточна?
- Оголошення створене 16 жов. ·
- ID 33613274 ·
- Переглядів 0
- · Збережень в обране 0
Розташування ЖК Французький квартал
вул. Академика Філатова, 2/1, вул. Анрі Барбюса, 53
Либідська
·
7 хв
Палац Україна
·
10 хв
Звіринецька(Дружби народів)
·
22 хв
Інформація про ЖК
Будинок
Монолітно-каркасний будинок
9-18 поверхів
Договір купівлі-продажу
Висота стелі 3 м
Клас комфорт
|
Користується попитом на DIM.RIA
Вас можуть зацікавити
Нерухомість у Києві за призначенням