




























фото · 1 из 29

Смотреть все фото
Смотреть на карте
Продажа 2 этажного таунхауса с участком на 1.5 сотки, 106 кв. м, 4 комнаты, на ул. Бориса Лятошинского • ID 33465933
улица Бориса Лятошинского
·
Ворзель
67 000 $ за объект · 2 824 050 грн · 632 $
за м²
Перевірений таунхаус
Проверено по видеозвонку
Отчет от 22 сен.
- Вторичная недвижимость
- 4 комнаты
- 2 этажа
- Участок 1.5 сотки
- Предложение от представителя застройщика
- Без комиссии
- Беседка
Описание от продавца
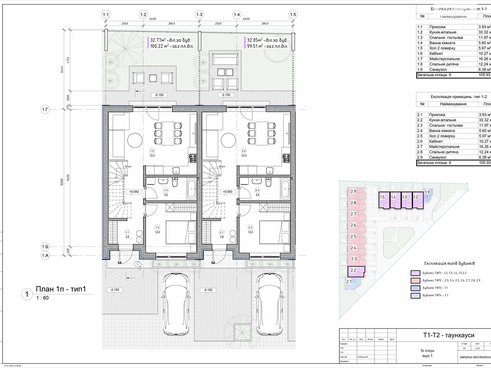
- Общая площадь 106 м² · жилая 51 м² · кухня 33 м²
- Стены из пеноблока
- Сдача в 2025
- Индивидуальное отопление
- єВідновлення
- єОселя
- Возле леса
- Красивый вид
- Оперативный показ
- Комфортный таунхаус в Ворзеле в Коттеджном городке со всей необходимой инфраструктурой.
Дом общей площадью 106 м2. Главной особенностью планировки является большая кухня-гостиная 33 м2 с выходом на выложенную плиткой террасу и задний дворик, около 33м2. 4 спальные комнаты правильной формы, одна из которых находится на первом этаже, и два больших санузла, что позволяет разместить как душ так и ванну по вашему желанию. На этапе строительства есть возможность скорректировать количество и размеры комнат.
Построен из газоблока, утепление пенопласт, входная вода скважина и септик, заведено 3 фазы электричества 16 кВт. Есть возможность провести газ. Готовность таунхаусов лето 2025. Возможны индивидуальные условия рассрочки.
Расположен на закрытой территории, въезд через автоматические ворота, только для жителей таунхаусов. Есть небольшая общая зона отдыха, парковочное место перед вашим домом. Территория огорожена капитальным забором, дорожки и место под автомобиль выложены из качественной брусчатки.
Очень удачное расположение рядом с лесом и озером. Удобный выезд на Варшавскую трассу и в сторону Ирпеня.
Рассрочка на 6-12 мес. Без удорожания. Рассматриваются все программы.
Показы в удобное время, оперативные ответы в удобном для вас мессенджере.
Люблю место, где живу и желаю этого каждому!
С уважением, Екатерина
- Двор: Парковочное место для людей с инвалидностью • Автоматические ворота
- Характеристика здания: состояние дома: без отделочных работ • перекрытие: железобетонное • крыша: металлочерепица
- Характеристика помещения: высота потолка, м: 3 • утепление: внешнее
- Отделка потолка: без обработки
- Пол (покрытие): без отделки
- Коммуникации: канализация: септик
- Вода: скважина
- Отопление: газовое
- Подогрев воды: нет
- Помещения: количество спален: 4 • гараж: нет • гостиная
- Когда нет света: есть интернет • есть мобильная связь • есть газ
- Подъезд: домофон • видеонаблюдение на территории
- На территории есть: ландшафтный дизайн • детская площадка • барбекю • забор
- Характеристика участка: Расположение: в коттеджном городке
- Мебель: нет
- Особенности планировки: панорамные / витринные окна • терраса
- Уникальные преимущества: Возможна рассрочка • С беседкой • скважина
- Оборудование • мебель • удобства: электричество • газ • вывоз отходов • интернет • канализация септик
Объявление неактуально или информация неточна?
- Объявление создано 22 сен. ·
- ID 33465933 ·
- Просмотров 0
- · Сохранений в избранное 0