




































фото · 1 из 37

Смотреть все фото
Смотреть на карте
Продажа 3 этажного таунхауса с участком на 1 сотку, 92 кв. м, 4 комнаты, на ул. Февральская 54 • ID 33688973
Февральская улица
·
Крюковщина
78 200 $ за объект · 3 302 386 грн · 850 $
за м²
Перевірений таунхаус
Проверено по видеозвонку
Отчет от 6 ноя.
- Вторичная недвижимость
- 4 комнаты
- 3 этажа
- Участок 1 сотка
- Предложение от посредника
Описание от продавца
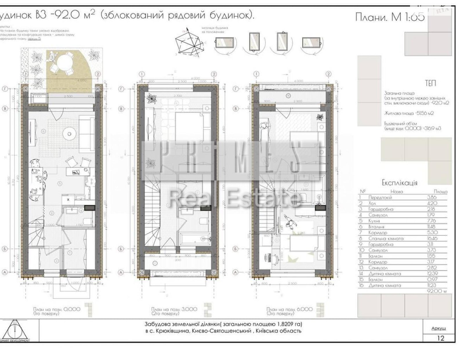
- Общая площадь 92 м² · жилая 51 м² · кухня 8 м²
- Стены из кирпича
- Сдача в 2025
- Без отопления
- Комиссия за услуги 5 %
- єОселя
- Возле леса
- Срочно
- Выгодная цена
- 3-этажный современный Таунхаус, площадью 92м2, в КМ Свій Dім 2, с. Крюковщина, ул. Лю́тнева.
Площадь: 92 м2, 2 этажа, 4 комнаты паркоместо
Есть возможность заказать ремонтные работы от застройщика:
Ремонт "под чистовую" - от $180/м²
Ремонт "под ключ" - от $600/м²
Местоположение: с. Крюковщина, ул. Любфевская (сдача 1 очереди 3-й квартал 2025, 2 очередь 1-й квартал 2026, 3 очередь 4-й квартал 2026)
Коротко о комплексе:
Комплекс таунхаусов на 108 домов в пригороде столицы Свій Dім 2 - за 15 минут от Киева, с нестандартными архитектурными решениями, акцентом на озеленение и территориями для отдыха. Двух- и трехэтажные таунхаусы площадью от 56 до 119 м.
Основные характеристики:
- фундамент - армированный железобетонный ФБС;
- стены - газобетон, толщиной 300 мм, утепленные по фасаду пенопластом, общей толщиной не менее 100 мм;
- межэтажное перекрытие - монолитное;
- Окна - металлопластиковые Kommerling, пятикамерный профиль, двухкамерные стеклопакеты с аргоном Solar;
- Входная дверь дизайнерская;
- водоснабжение из системы скважин;
- электроснабжение: 3 фазы, 380 вольт, 16-20А автомат;
- канализация централизованная;
- устроенный вентиляционный канал;
- Монолитные межэтажные лестницы;
- Парковочное место
#30687
- Двор: Автоматические ворота
- Характеристика здания: состояние дома: без отделочных работ • перекрытие: железобетонное • крыша: рубероидная кровля
- Характеристика помещения: высота потолка, м: 3 • утепление: внешнее
- Отделка потолка: без обработки
- Пол (покрытие): без отделки
- Подогрев воды: нет
- Отопление: без отопления
- Помещения: количество спален: 2 • гараж: во дворе
- Когда нет света: есть интернет • есть мобильная связь
- Подъезд: кодовый замок • домофон
- На территории есть: огород • детская площадка • забор
- Мебель: нет
- Особенности планировки: балкон/лоджия
- Оборудование • мебель • удобства: электричество • центральная канализация
- Уникальные преимущества: скважина
Объявление неактуально или информация неточна?
- Объявление создано 6 ноя. ·
- ID 33688973 ·
- Просмотров 0
- · Сохранений в избранное 0