


















фото · 1 из 19

Смотреть все фото
Смотреть на карте
Продажа 2 этажного таунхауса с участком на 1.8 сотки, 135 кв. м, 3 комнаты, на ул. Сечевого Стрелка Петрива • ID 33663912
Сечевого Стрелка Петрива улица
·
Криховцы (Ивано-Франковск)
79 000 $ за объект · 3 323 530 грн · 585 $
за м²
Перевірений таунхаус
Проверено по видеозвонку
Отчет от 30 окт.
- Новостройка
- 3 комнаты
- 2 этажа
- Участок 1.8 сотки
- Предложение от посредника
- Без комиссии
- С гаражом
- С балконом
- Участок
Описание от продавца
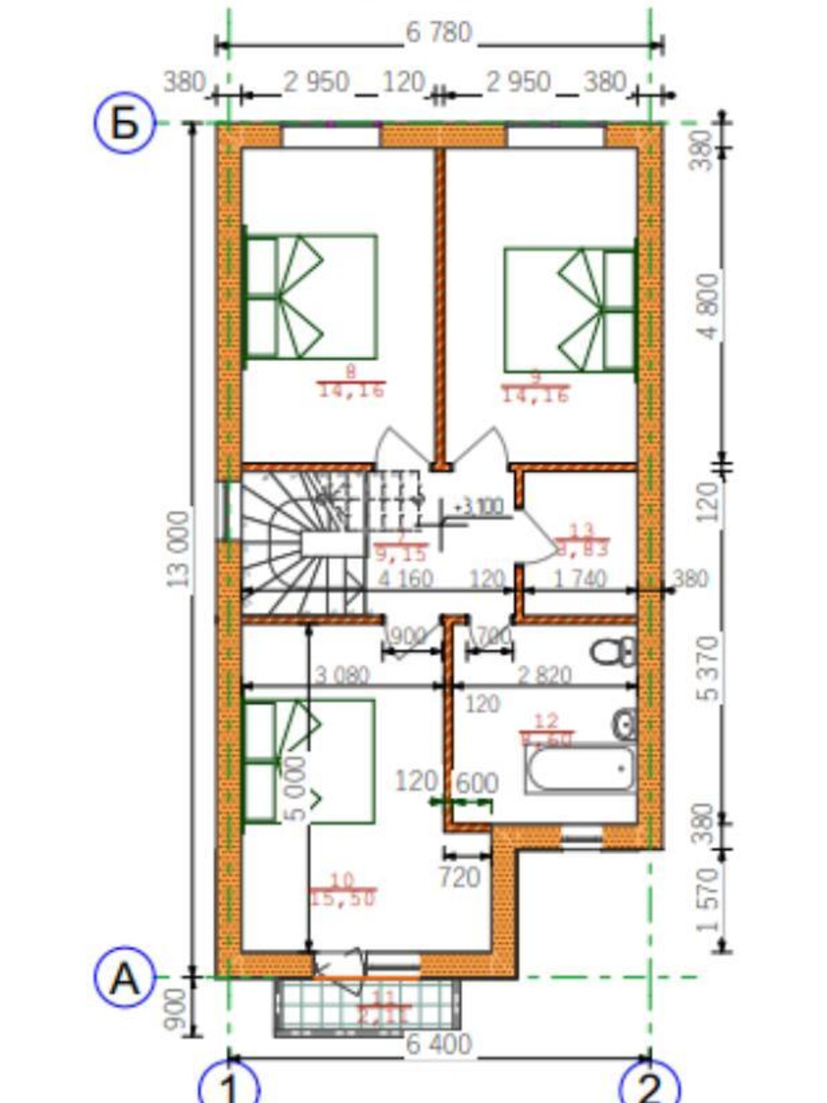
- Общая площадь 135 м² · жилая 37 м² · кухня 20 м²
- Стены из кирпича
- Сдача в 2026
- Индивидуальное отопление
- У реки
- Спокойный район
- Предлагается к продаже комфортный таунхаус в Криховцах с собственной земельной участком 1, 8 сотки.
Общая площадь дома 135 м², продуманная планировка для комфортной жизни.
Планирование:
Первый этаж: просторная кухня-студия с выходом на террасу, санузел, гараж;
Второй этаж: три отдельные спальни, гардеробная, санузел, балкон.
Все коммуникации подведены (вода, свет, канализация, газ).
Просторный гараж и собственный участок для отдыха или сада.
Тихая, удобная локация рядом школа, остановка, магазины.
Дом готов к внутренним работам идеальный вариант, чтобы сделать ремонт под себя.
- Характеристика здания: состояние дома: строительная отделка • перекрытие: железобетонное • крыша: металлочерепица
- Характеристика помещения: высота потолка, м: 2.8 • утепление: внешнее
- Отделка потолка: без обработки
- Пол (покрытие): без отделки
- Вода: центральный водопровод
- Отопление: газовое
- Подогрев воды: двухконтурный котел
- Помещения: количество спален: 3 • гараж: на первом этаже • гардероб
- Когда нет света: есть мобильная связь
- Подъезд: видеонаблюдение на территории
- На территории есть: забор
- Мебель: нет
- Внутренняя отделка: черновая штукатурка
- Особенности планировки: балкон/лоджия
- Уникальные преимущества: Большой балкон • Индивидуальное отопление • С гаражом
- Оборудование • мебель • удобства: электричество • газ • вывоз отходов • центральная канализация
Объявление неактуально или информация неточна?
- Объявление создано 30 окт. ·
- ID 33663912 ·
- Просмотров 0
- · Сохранений в избранное 0