


















фото · 1 из 19

Смотреть все фото
Смотреть на карте
Продажа 2 этажного таунхауса с участком на 1.6 сотки, 133 кв. м, 3 комнаты, на ул. Сичинского 5 • ID 33579460
Таунхаус Панське містечко
Больше о новостройке
56 000 $ за объект · 2 360 400 грн · 421 $
за м²
Перевірений таунхаус
Проверено по видеозвонку
Отчет от 3 жов.
- Вторичная недвижимость
- 3 комнаты
- 2 этажа
- Участок 1.6 сотки
- Предложение от посредника
- Без комиссии
- С верандой
Описание от продавца
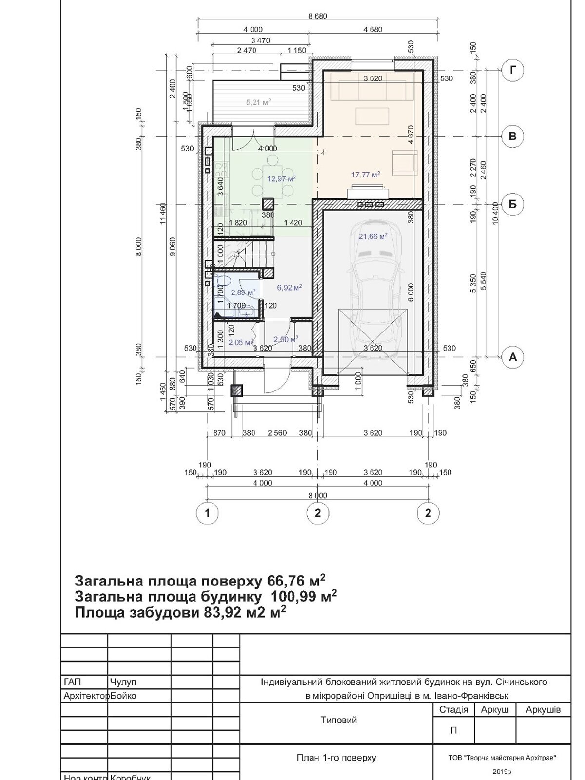
- Общая площадь 133 м² · жилая 113 м² · кухня 20 м²
- Стены из кирпича
- Отдельно стоящий дом
- Сдача в 2025
- Индивидуальное отопление
- Возле леса
- Оперативный показ
- Выгодная цена
- Продается дом с гаражом, самая выгодная цена в Ивано-Франковске!
Характеристики:
Общая площадь: 133, 21 м²
Земельный участок: до 2 соток
Полноценный гараж на первом этаже
Стены: кирпич
Подключение: 10 кВт на дом
Отопление: электрическое
Черновая стяжка пола, штукатурка стен.
Утепление фасада: пенопласт 10 см
Счетчик на свет
Собственный септик и скважина.
Энергосберегающие окна, входные двери
Благоустройство территории
Самое доступное предложение на рынке в Ивано-Франковске!
Идеальный вариант для тех, кто хочет получить просторный дом по минимальной цене и завершить ремонт под свой вкус.
Звоните, чтобы узнать детали и договориться о просмотре!
- Жилье: Дверь шириной более 90 см
- Двор: Парковочное место для людей с инвалидностью
- Характеристика здания: состояние дома: строительная отделка • перекрытие: железобетонное • крыша: металлические листы
- Характеристика помещения: высота потолка, м: 2.8 • утепление: внешнее
- Отделка потолка: без обработки • штукатурка
- Пол (покрытие): стяжка
- Коммуникации: канализация: септик
- Вода: скважина
- Отопление: электрическое
- Подогрев воды: двухконтурный котел
- Помещения: количество спален: 3 • гараж: на первом этаже
- Когда нет света: есть интернет • есть мобильная связь
- Подъезд: бронированная дверь • видеонаблюдение на территории
- На территории есть: детская площадка • барбекю • забор
- Мебель: нет
- Внутренняя отделка: черновая штукатурка
- Особенности планировки: панорамные / витринные окна • терраса • балкон/лоджия
- Уникальные преимущества: С верандой • скважина
- Оборудование • мебель • удобства: электричество • вывоз отходов • интернет • канализация септик
- Вход в дом: Вход шириной более 90 см
Объявление неактуально или информация неточна?
- Объявление создано 3 жов. ·
- ID 33579460 ·
- Просмотров 0
- · Сохранений в избранное 0
Информация о ЖК
Дом
Наземный паркинг
Территория под охраной
Черновая внутренняя отделка
Кирпичный дом
2 этажа
Индивидуальное отопление
Стены из кирпича
Утепленный пенопластом
Договор купли-продажи имущественного права
Высота потолков 2.8 м
Класс комфорт
20 таунхаусов
Площадь участка от 0.37 сотки
Площадь застройки 37 соток