



фото · 1 из 4

Смотреть все фото
Смотреть на карте
Продажа специального помещения на ул. Рымарская 17, площадь 83 кв.м • ID 33437779
110 000 $ за объект · 4 627 700 грн · 1 325 $
за м²
Перевірене спеціальне приміщення
продавец предоставил техпаспорт
Проверено по техпаспорту
Дата последней проверки 22 сер.
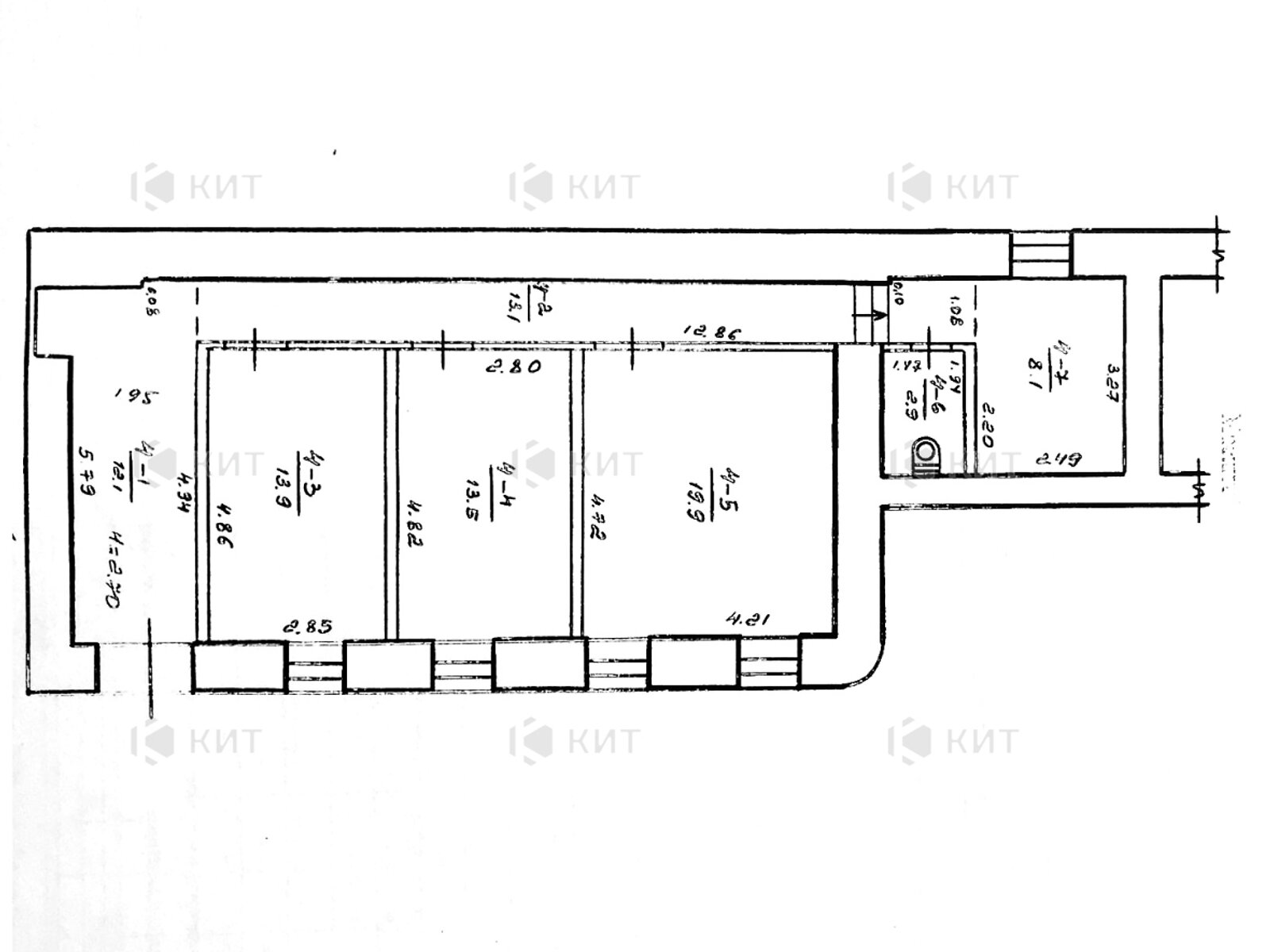
- Общая площадь 83 м²
- 1 этаж из 1
Описание от продавца
- Нежилое помещение в жилом доме
- 1 этаж из 1
- Общая площадь 83 м²
- Предложение от посредника
- Вторичная недвижимость
- Продается и сдается в аренду торговое помещение, Харьков, Центр. Рядом м. Исторический музей. Площадь - 83, 5 м².
Преимущества помещения: отдельный вход, правильная геометрия, возможность размещения наружной рекламы.
В помещении: стены - гипсокартон, пол - плитка, потолок - армстронг, базовый набор электроточек, туалет с сантехникой.
Кроме этого есть: приточно-вытяжная система вентиляции, пожарная сигнализация, кондиционер, собственная котельная, вода и водоотведение центральное, газ.. Код объекта: SF-129674.
Объявление неактуально или информация неточна?
- Объявление создано 22 сер. ·
- ID 33437779 ·
- Просмотров 0
- · Сохранений в избранное 0
Пользуется спросом на DIM.RIA
Вас могут заинтересовать
Недвижимость в Харькове по назначению