














фото · 1 из 15

Смотреть все фото
Смотреть на карте
Продажа 2к квартиры 75 кв. м на ул. Ивана Богуна 27А • ID 33700474
ЖК Родинний Маєток
Больше о новостройке
89 000 $ за объект · 3 753 130 грн · 1 187 $
за м²
Перевірена квартира
Проверено по видеозвонку
Отчет от 10 ноя.
- Новостройка
- 5 этаж из 8
- Предложение от посредника
- Без комиссии
Описание от продавца
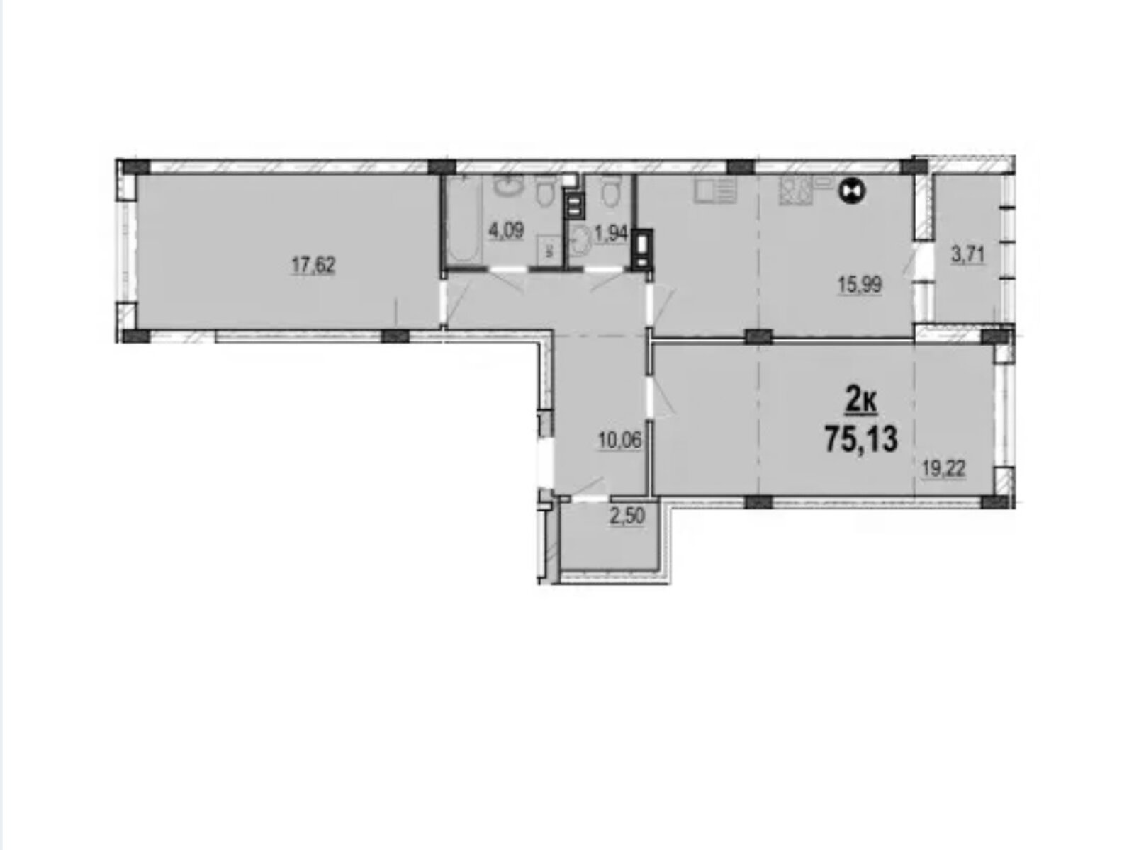
- Общая площадь 75 м² · кухня 16 м²
- Стены из кирпича
- Спокойный район
- В центре
- Оперативный показ
- Продается 2-комнатная квартира в ЖК «Родинний маєток» ваше идеальное пространство для комфортной жизни!
Предлагаем просторную 2-комнатную квартиру площадью 75 м² в современном жилом комплексе «Родинний маєток».
Расположение в районе, который активно развивается и имеет отличные перспективы для жизни и инвестиций.
Характеристики квартиры:
Общая площадь: 75 м²
Поверх: 5-й из 8
Комнаты: две отдельные
Кухня: просторная, 16 м² идеальна для семейных ужинов или приёма гостей
Санузел: раздельный
Дополнительно: удобная гардеробная комната
️ О комплексе:
Сдача дома: II квартал 2026 года
Продажа: по переуступке, без комиссии для покупателя
Территория: предусмотрена обустроенная придомовая зона с детскими и зонами отдыха.
Рядом уже сданные и заселенные дома этого же ЖК, что подтверждает надежность застройщика
Преимущества:
Удобная планировка для семьи или для инвестиции
Тихий, зеленый район с продуманной инфраструктурой.
Перспективное местоположение, где каждый год растет стоимость недвижимости.
Звоните уже сегодня, чтобы узнать детали или договориться о просмотре!
Ваш будущий дом ждет именно вас в ЖК «Родинний маєток»
- Характеристика здания: тип дома (серия): новый фонд
- Характеристика помещения: высота потолка, м: 2.7 • состояние квартиры: черновая штукатурка • утепление: внешнее
- Отделка потолка: без обработки
- Пол (покрытие): без отделки
- Наружная отделка: декоративная штукатурка
- Отопление: индивидуальное газовое • двухконтурный котел
- Подогрев воды: двухконтурный котел
- Помещения: раздельный санузел
- Оборудование • мебель • удобства: счетчик на электричество • счетчик на газ • счетчик на воду • электричество • газ
- Когда нет света: есть водоснабжение • есть газ
- Мебель: нет
- Положение и окружение: тип двора: закрытого типа (вход, въезд ограничен)
- Особенности планировки: панорамные / витринные окна • балкон/лоджия
- Внутренняя отделка: без отделки
Объявление неактуально или информация неточна?
- Объявление создано 10 ноя. ·
- ID 33700474 ·
- Просмотров 0
- · Сохранений в избранное 0
Информация о ЖК
Дом
Подземный паркинг, многоуровневый паркинг
Отсутствует внутренняя отделка
Монолитно-каркасный дом
6-8 этажей
Автономное отопление
Стены из керамоблока
Утепленный минеральной ватой
Договор купли-продажи
Высота потолков 2.8 м
Класс комфорт
380 квартир
|
5.1 Общий рейтинг | 5 Зоны отдыха | 4.4 Транспорт | 4 Инфраструктура | 5.5 Безопасность | 6.5 Экология |
| Читать все 430 отзывов о районе Пятничаны | Добавить отзыв о районе Пятничаны | ||||
Пользуется спросом на DIM.RIA
Вас могут заинтересовать
Квартиры в ближайших городах