














фото · 1 из 15

Смотреть все фото
Смотреть на карте
Продажа 2к квартиры 66 кв. м на ул. Глубокая Долина 19Г • ID 33607261
ЖК Глибока Долина
Больше о новостройке
57 499 $ за объект · 2 418 983 грн · 871 $
за м²
Перевірена квартира
продавец предоставил техпаспорт
Проверено по техпаспорту
Дата последней проверки 15 жов.
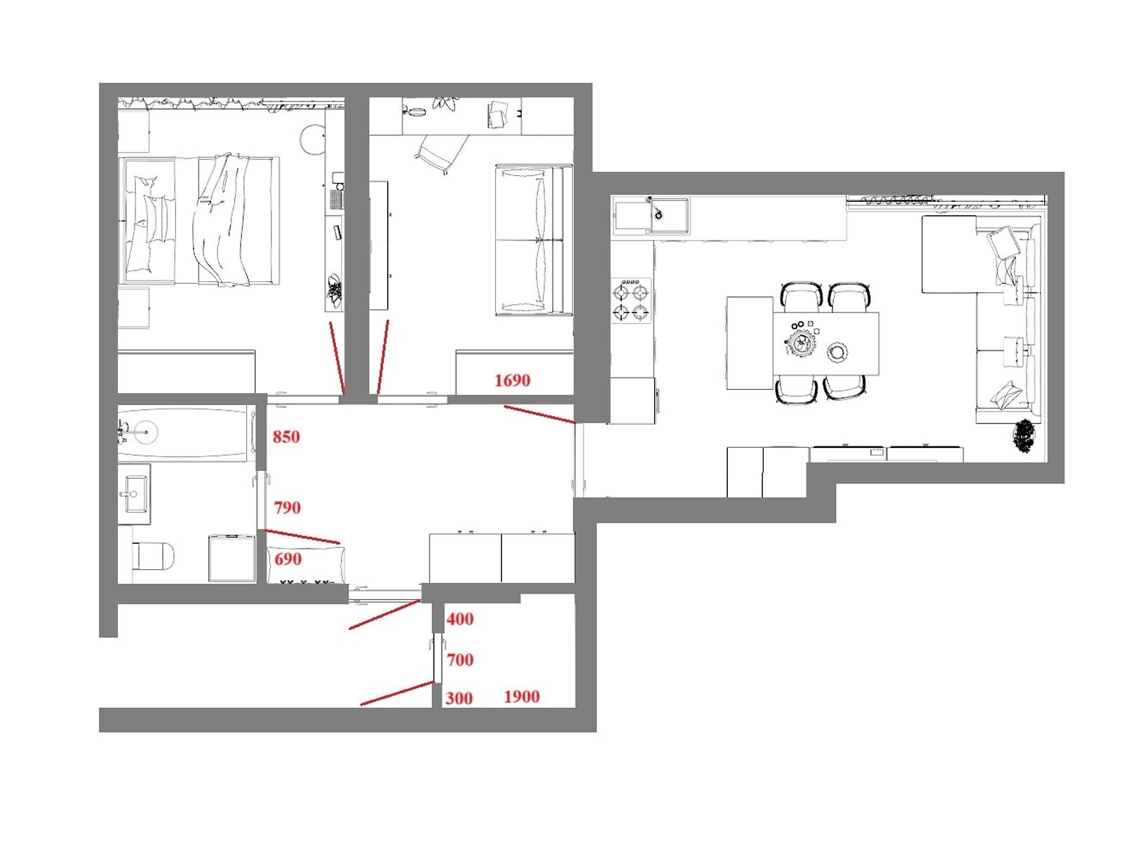
- Общая площадь 66 м² · жилая 22.4 м² · кухня 21.1 м²
- 1 этаж из 4
Объявление неактуально или информация неточна?
- 2 комнаты · 1 этаж из 4
- Общая площадь 66 м² · жилая 22.4 м² · кухня 21.1 м²
- Стены из кирпича
- Сдача в 2025
- Без комиссии
- Новостройка
- Спокойный район
- Срочно
- Выгодная цена
- Продается квартира в ЖК Глибокая Долина, г. Тернополь (р-н Кутковцы), ул. Глибокая Долина, 19.
Площадь 66 м², Продажа напрямую от застройщика «АрхіБуд».
В квартире уже выполнено:
- монтаж труб для отопления;
-установлен теплый пол;
- разводка труб под сантехнику;
- разработан индивидуальный дизайн-проект;
- входные двери премиум класса.
Предоставляем ремонтные услуги.
ЖК имеет удобное расположение: рядом школа, сад, магазины, рынок, ТЦ, парковая зона и отличная транспортная развязка.
Дом зданий в 2025 году. При оплате 50% стоимости квартиры вы можете сразу получить готовое жилое помещение, а остальную сумму оплатить с рассрочкой до 6 месяцев. Это уникальная возможность быстро и удобно приобрести собственное жилье.
Рассматриваем обмен на строительные материалы (кирпич, цемент, евроокна, железобетонные конструкции, газоблоки и т.д.).
Также возможен обмен на легковой автомобиль (кроссовер, электромобиль, бус на 9 мест, грузовик до 3, 5 т), башенный кран, земельный участок под строительство коттеджей от 50 соток.
Возможна продажа за USDT.
- Наружная отделка: декоративная штукатурка
- Положение и окружение: тип двора: внутренний
- Объявление создано 15 жов. ·
- ID 33607261 ·
- Просмотров 0
- · Сохранений в избранное 0
96%
Рейтинг застройщика от DIM.RIA
Работает с DIM.RIA
Информация о ЖК
Дом
Гаражные боксы
4 паркоместа
Шлагбаум
Черновая внутренняя отделка
Кирпичный дом
4 этажа
Индивидуальное отопление
Стены из кирпича
Утепленный минеральной ватой
Договор об уплате паевых взносов через кооператив
Высота потолков до 2.65 м
Класс комфорт
44 квартиры
6.5 Общий рейтинг | 6.6 Зоны отдыха | 5.6 Транспорт | 5.3 Инфраструктура | 6.8 Безопасность | 8 Экология |
| Читать все 215 отзывов о районе Кутковцы | Добавить отзыв о районе Кутковцы | ||||
Пользуется спросом на DIM.RIA
Вас могут заинтересовать
Квартиры в ближайших городах