









фото · 1 из 10
Продажа 1к квартиры 33.8 кв. м на ул. Софиевская 1Б • ID 33938992
ЖК Пространство на Софиевской
39 600 $ за объект · 1 710 324 грн · 1 172 $
за м²
В процессе проверки
Сейчас DIM.RIA ждет данных от продавца
Продавец сообщил, что готов пройти проверку на DIM.RIA. Как только получим документы или видео об этом объекте – сразу все расскажем тебе.
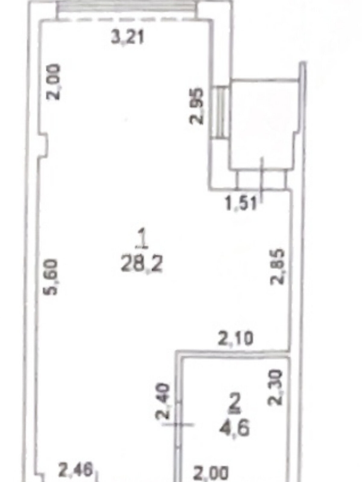
- Общая площадь 33.8 м² · жилая 20 м² · кухня 8 м²
- Стены из монолита
- Предложение от посредника
- Вторичная недвижимость
- Торг уместен
- В центре
- Выгодная цена
Описание от продавца
- Код объекта: 392603. АН "Атланта".В продаже смарт-квартира в новом сданном доме ЖК "ПРОСТРАНСТВО НА СОФИЕВСКОЙ". Состояние квартиры - от строителей, что позволит вам воплотить свои мечты по дизайну. В этом вам могут помочь грамотные специалисты нашей строительной компании. Окна квартиры выходят в сторону моря! Комплекс расположен в очень удобном месте, в шаговой доступности от самого центра города. Рядом расположены учебные заведения. Хороший вариант для молодой семьи, студентов или под арендный бизнес. У комплекса удобная локация, хорошая транспортная развязка. Выходы есть как на улицу Софиевскую, так и вниз на Приморскую. Территория комплекса ухожена и благоустроена. Ведется круглосуточное видеонаблюдение. Есть подземный и надземный паркинг. Сам дом относится к премиум классу. Звоните, мы с удовольствием организуем показ в удобное для вас время!
- Характеристика помещения: высота потолка, м: 3 • состояние квартиры: без отделочных работ
- Внутренняя отделка: чистовая штукатурка
- Оборудование • мебель • удобства: душевая кабина • газовая плита
- Подъезд: бронированная дверь
- Мебель: нет
- Особенности планировки: балкон/лоджия
Объект не такой, как в описании?
Расскажи нам, что не так – мы все проверим
- Объявление создано 5 фев. ·
- ID 33938992 ·
- Просмотров 0
- · Сохранений в избранное 0
8.3 Общий рейтинг | 8.4 Зоны отдыха | 8.6 Транспорт | 8.5 Инфраструктура | 8.1 Безопасность | 7.9 Экология |
| Читать все 565 отзывов о районе Приморский | Добавить отзыв о районе Приморский | ||||
Пользуется спросом на DIM.RIA
Вас могут заинтересовать
Квартиры в ближайших городах