














фото · 1 из 15

Смотреть все фото
Смотреть на карте
Продажа 2к квартиры 80.3 кв. м на ул. Хмельницкого Богдана 207 • ID 33773557
ЖК Містечко Підзамче
Больше о новостройке
96 360 $ за объект · 4 080 846 грн · 1 200 $
за м²
Перевірена квартира
Проверено по видеозвонку
Отчет от 3 гру.
- Новостройка
- 1 этаж из 6
- Без комиссии
Описание от продавца
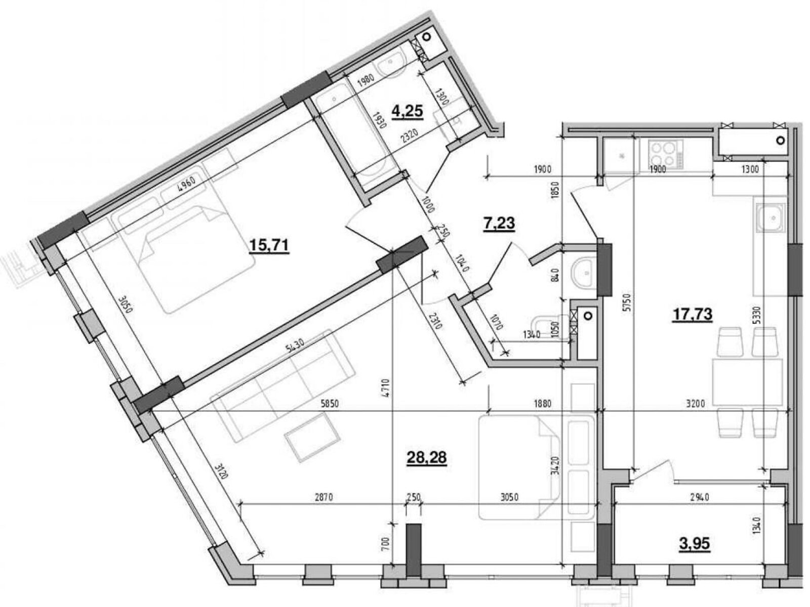
- Общая площадь 80.3 м² · жилая 43.99 м² · кухня 17.73 м²
- Стены из газоблока
- єОселя
- Престижный район
- Рядом с парком
- Тихий двор
- ПРОДАЖ КВАРТИРИ В 0-ЦИКЛІ
БЕЗ КОМІСІЇ ДЛЯ ПОКУПЦЯ
Адреса місто Львів, вулиця Богдана Хмельницького, 207.
Кількість кімнат дві.
Поверх 1 з 6.
Квартира в 0-циклі, тобто ще без ремонту.
Загальна площа 80.3 м², житлова 43.99 м², кухня 17.73 м².
Опалення будинкове.
Санвузол один, роздільний.
Лоджія одна.
Будинок введено в експлуатацію в 2025.
Продаж із правом власності.
Є можливість придбати квартиру за державною програмою Є оселя.
Особливості даної квартири для комплексу обрана малоповерхова забудова, яка не створюватиме дисонанс з архітектурою старого міста. Будинки виконані в мінімалістичному стилі з каскадною поверховістю, перепадами висоти поверхів та косими покрівлями. «ЖК Вежа» вважається інфраструктурним центром «Містечка Підзамче» де буде розташована власна школа, інші об'єкти для комфорту мешканців та висока оглядова вежа із загальним доступом. У ЖК передбачений гостьовий та наземний п'ятиповерховий паркінг.
Поруч з будинком: у власну інфраструктуру комплексу входять супермаркети, магазини, ресторани, кав'ярні, аптеки, відділення банків та інші сервіси для комфортного життя майбутніх мешканців. Також у районі новобудов є кілька продуктових магазинів, супермаркет «Фуршет», «АТБ» та ринок «Підзамче». Поруч дитячий садок 55, дошкільний центр 144 та 121. Для доросліших дітей школа 7, 20, трохи далі школа-гімназія «Галицька», школа 37 з поглибленою французькою, 8 з поглибленою німецькою та польська школа 24. 2 хвилини до спортивного залу «Прайд», 3 хвилини до фітнес-клубу «Позитив», 6 хвилин до легкоатлетичної секції Olympus Premium та 9 хвилин до фітнес-клубу Pride Elite Gym.
Ми надаємо повний цикл: девелопмент, дизайн проект, ремонт та подальший продаж, або професійне управління нерухомістю для задачі в оренду.
Код обʼєкта: 4593 (2)
- Вход в дом: Вход без порогов
- Характеристика здания: тип дома (серия): новый фонд
- Характеристика помещения: высота потолка, м: 2.8 • состояние квартиры: требует ремонта / без ремонта / ремонт не закончен • утепление: внешнее
- Отделка потолка: без обработки
- Наружная отделка: декоративная штукатурка
- Отопление: автономная котельная
- Подогрев воды: нет
- Помещения: раздельный санузел
- Оборудование • мебель • удобства: счетчик на электричество • счетчик на воду • электричество • интернет
- Подъезд: домофон
- Мебель: нет
- Положение и окружение: тип двора: внутренний
- Лифт: пассажирский лифт
- Особенности планировки: панорамные / витринные окна • балкон/лоджия
- Внутренняя отделка: без отделки
Объявление неактуально или информация неточна?
- Объявление создано 3 гру. ·
- ID 33773557 ·
- Просмотров 0
- · Сохранений в избранное 0
Информация о ЖК
Дом
Подземный паркинг, наземный паркинг
Черновая внутренняя отделка
Монолитно-каркасный дом
1-9 этажей
Автономное отопление: крышная котельня
Стены из газоблока
Утепленный пенополистиролом
Предварительный договор купли-продажи квартиры
Высота потолков 2.7 м
Класс комфорт
2060 квартир
|
7.8 Общий рейтинг | 7.6 Зоны отдыха | 8.2 Транспорт | 8 Инфраструктура | 7.6 Безопасность | 7.4 Экология |
| Читать все 430 отзывов о районе Шевченковский | Добавить отзыв о районе Шевченковский | ||||
Пользуется спросом на DIM.RIA
Вас могут заинтересовать
Квартиры в ближайших городах