
















фото · 1 из 17

Смотреть все фото
Смотреть на карте
Продажа 2к квартиры 98.7 кв. м на ул. Хмельницкого Богдана 207 • ID 33767838
ЖК Містечко Підзамче
Больше о новостройке
118 440 $ за объект · 5 004 090 грн · 1 200 $
за м²
Описание от продавца
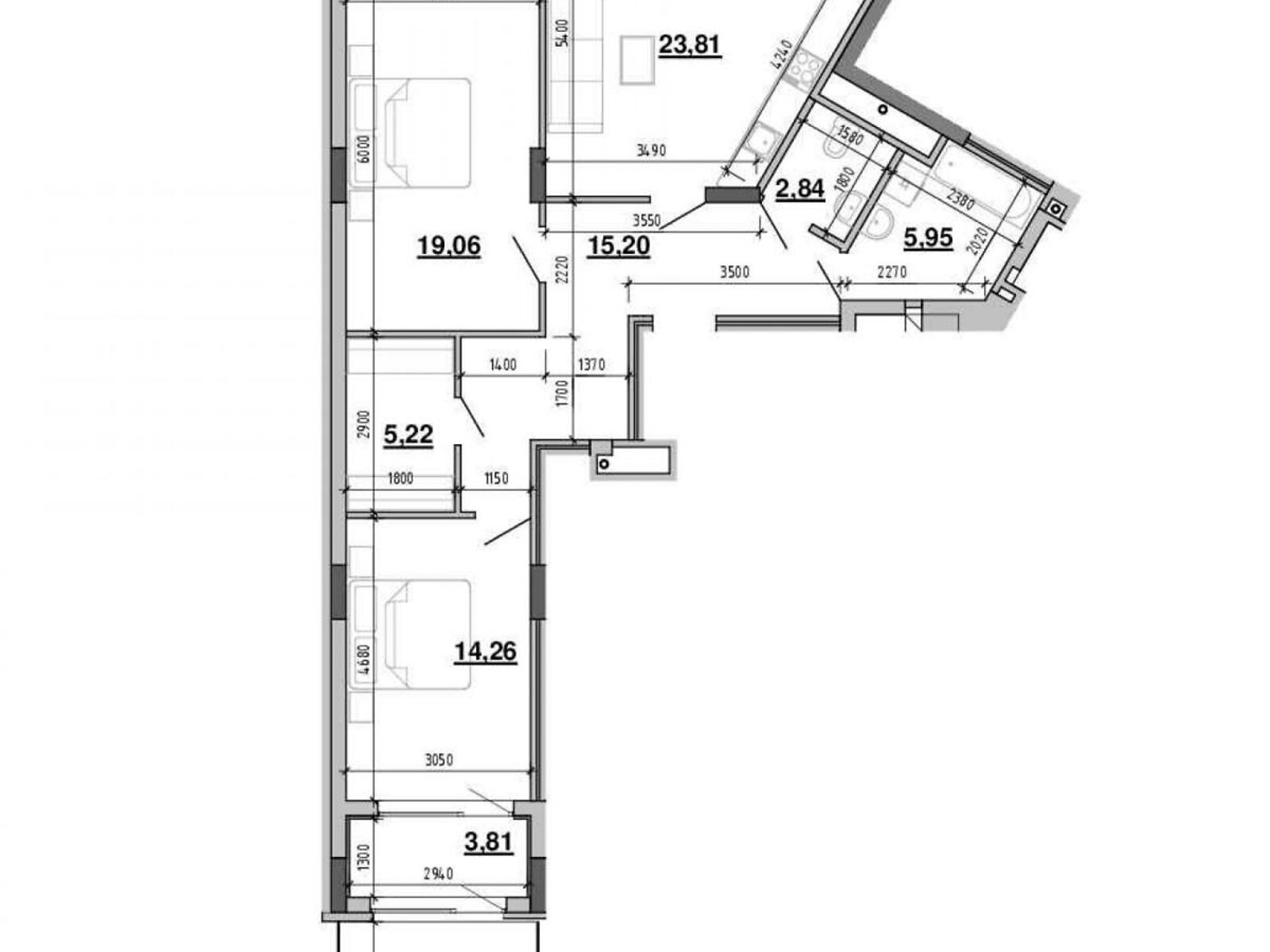
- Общая площадь 98.7 м² · жилая 33.32 м² · кухня 23.81 м²
- Стены из газоблока
- єОселя
- Престижный район
- Тихий двор
- Жилье не использовалось с момента постройки
- ПРОДАЖ КВАРТИРЫ В 0-ЦИКЛЕ
БЕЗ КОМИССИИ ДЛЯ ПОКУПАТЕЛЯ
Адрес город Львов, улица Богдана Хмельницкого, 207.
Количество комнат две.
Поверх 1 из 9.
Квартира в 0-цикле, то есть еще без ремонта.
Общая площадь 98.7 м², жилая 33.32 м², кухня 23.81 м².
Отопление домовое.
Санузел один, раздельный.
Лоджия одна.
Дом введен в эксплуатацию в 2025.
Продажа с правом собственности.
Есть возможность приобрести квартиру по государственной программе Є оселя.
Особенности данной квартиры для комплекса выбрана малоэтажная застройка, которая не будет создавать диссонанс с архитектурой старого города. Дома выполнены в минималистичном стиле с каскадной этажностью, перепадами высоты этажей и косыми кровлями. «ЖК Вежа» считается инфраструктурным центром «Містечка Підзамче», где будет расположена собственная школа, другие объекты для комфорта жителей и высокая обзорная вежа с общим доступом. В ЖК предусмотрена гостевая и наземная пятиэтажная парковка.
Рядом с домом: в собственную инфраструктуру комплекса входят супермаркеты, магазины, рестораны, кофейни, аптеки, отделения банков и другие сервисы для комфортной жизни будущих жителей. Также в районе новостроек есть несколько продуктовых магазинов, супермаркет «Фуршет», «АТБ» и рынок «Подзамче». Рядом детский сад 55, дошкольный центр 144 и 121. Для более старших детей школа 7, 20, немного дальше школа-гимназия «Галицкая», школа 37 с углубленным французским, 8 с углубленным немецким и польская школа 24. 2 минуты до спортивного зала «Прайд», 3 минуты до фитнес-клуба «Позитив», 6 минут до легкоатлетической секции Olympus Premium и 9 минут до фитнес-клуба Pride Elite Gym.
Мы предоставляем полный цикл: девелопмент, дизайн-проект, ремонт и дальнейшую продажу, или профессиональное управление недвижимостью для задачи в аренду.
Код объекта: 4594 (2)
- Вход в дом: Вход без порогов
- Характеристика здания: тип дома (серия): новый фонд
- Характеристика помещения: высота потолка, м: 2.7 • состояние квартиры: без отделочных работ • утепление: внешнее
- Отделка потолка: без обработки • штукатурка
- Пол (покрытие): без отделки • стяжка • монолит
- Наружная отделка: декоративная штукатурка
- Отопление: автономная котельная
- Подогрев воды: централизованный • бойлер • комбинированный • нет
- Помещения: санузел: раздельный • раздельный санузел
- Оборудование • мебель • удобства: счетчик на электричество • счетчик на газ • счетчик на воду • электричество • интернет
- Подъезд: домофон
- Мебель: нет
- Положение и окружение: тип двора: внутренний
- Внутренняя отделка: черновая штукатурка • чистовая штукатурка
- Лифт: пассажирский лифт
Объявление неактуально или информация неточна?
- Объявление создано 2 дек. ·
- ID 33767838 ·
- Просмотров 0
- · Сохранений в избранное 0
Информация о ЖК
Дом
Подземный паркинг, наземный паркинг
Черновая внутренняя отделка
Монолитно-каркасный дом
1-9 этажей
Автономное отопление: крышная котельня
Стены из газоблока
Утепленный пенополистиролом
Предварительный договор купли-продажи квартиры
Высота потолков 2.7 м
Класс комфорт
2060 квартир
|
7.8 Общий рейтинг | 7.6 Зоны отдыха | 8.2 Транспорт | 8 Инфраструктура | 7.6 Безопасность | 7.4 Экология |
| Читать все 430 отзывов о районе Шевченковский | Добавить отзыв о районе Шевченковский | ||||
Пользуется спросом на DIM.RIA
Вас могут заинтересовать
Квартиры в ближайших городах