















фото · 1 из 16
Продажа 2к квартиры 75.4 кв. м на ул. Венгерская 12 • ID 33795333
ЖК Софиевка
Больше о новостройке
220 000 $ за объект · 9 541 400 грн · 2 918 $
за м²
Перевірена квартира
продавец предоставил техпаспорт
Проверено по техпаспорту
Дата последней проверки 12 гру. 2025
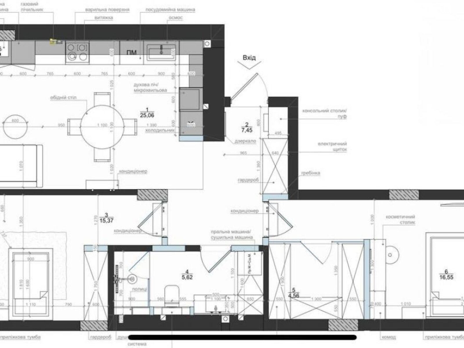
- Общая площадь 75.4 м² · жилая 35 м² · кухня 20.4 м²
- 6 этаж из 10
Описание от продавца
- 2 комнаты · 6 этаж из 10
- Общая площадь 75.4 м² · жилая 35 м² · кухня 20.4 м²
- Стены из кирпича
- Предложение от посредника
- Комиссия за услуги 5 %
- Вторичная недвижимость
- Ексклюзив
- ПРОДАЖА КВАРТИРЫ С РЕМОНТОМ
Адреса город Львов, улица Венгерская 12
Количество комнат двухкомнатная квартира.
Поверх 6 из 10
Тип дома новостройка. Материал стен кирпич.
Общая площадь 75.4 м², жилая 35 м², кухня 20.4 м².
В квартире сделан авторский ремонт.
Имеющаяся мебель и бытовая техника: Bosch (газовая плита, микроволновая печь, духовой шкаф, посудомоечная машина 60 см), холодильник Samsung 190 см, фурнитура Blum, столешница из кварца, телевизор LG 50, кондиционер.
Отопление индивидуальное, установлен газовый котел.
С подогревом пола на кухне, коридоре и санузле.
Санузел один / смежный.
Особенности данной квартиры это то, что квартира только после ремонта, ремонт из высококачественных материалов.
Рядом с домом: школа, детский сад, супермаркеты, парк, отделение новой почты, аптеки, остановка общественного транспорта и тому подобное.
Код объекта: #3719
- Особенности планировки: кухня-студия
- Характеристика здания: тип дома (серия): новый фонд
- Характеристика помещения: высота потолка, м: 2 • состояние квартиры: дизайнерский ремонт • утепление: внешнее
- Отделка потолка: покраска
- Пол (покрытие): керамическая плитка • паркетная доска
- Внутренняя отделка: покраска • керамическая плитка
- Коммуникации: вентиляция / кондиционирование: кондиционер(ы)
- Отопление: индивидуальное газовое
- Подогрев воды: двухконтурный котел
- Помещения: совмещенный санузел
- Оборудование • мебель • удобства: телевизор • стиральная машина • посудомоечная машина • душевая кабина • газовая плита • духовой шкаф • микроволновая печь • шкаф-гардероб • Встроенная кухня • диван • холодильник • счетчик на электричество • счетчик на газ • счетчик на воду • кондиционер • электричество • газ • вытяжка • сушильная машина • интернет • письменный стол • фильтр для воды • двуспальная кровать
- Когда нет света: работает лифт
- Подъезд: видеодомофон
- Положение и окружение: тип двора: внутренний
- Особенности планировки: подогрев полов
- Уникальные преимущества: Кухня-студия
Объявление неактуально или информация неточна?
- Объявление создано 12 гру. 2025 ·
- ID 33795333 ·
- Просмотров 0
- · Сохранений в избранное 0
Информация о ЖК
Дом
Подземный паркинг, наземный паркинг
507 паркомест
Черновая внутренняя отделка
Монолитно-каркасный дом
6-10 этажей
Индивидуальное отопление
Стены из керамического красного кирпича
Утепленный пенопластом, минеральной ватой
Высота потолков 2.75 м
Класс комфорт
1088 квартир
|
7.9 Общий рейтинг | 8.3 Зоны отдыха | 8 Транспорт | 6.9 Инфраструктура | 8.2 Безопасность | 8.3 Экология |
| Читать все 110 отзывов о районе Новый Львов | Добавить отзыв о районе Новый Львов | ||||
Пользуется спросом на DIM.RIA
Вас могут заинтересовать
Квартиры в ближайших городах