
















фото · 1 из 17
Продажа 2к квартиры 68.9 кв. м на ул. 24-го Августа • ID 33916941
ЖК Долішній
Больше о новостройке
60 000 $ за объект · 2 603 400 грн · 871 $
за м²
Перевірена квартира
Проверено по видеозвонку
Отчет от 29 янв.
- Новостройка
- 1 этаж из 4
- Предложение от посредника
- Без комиссии
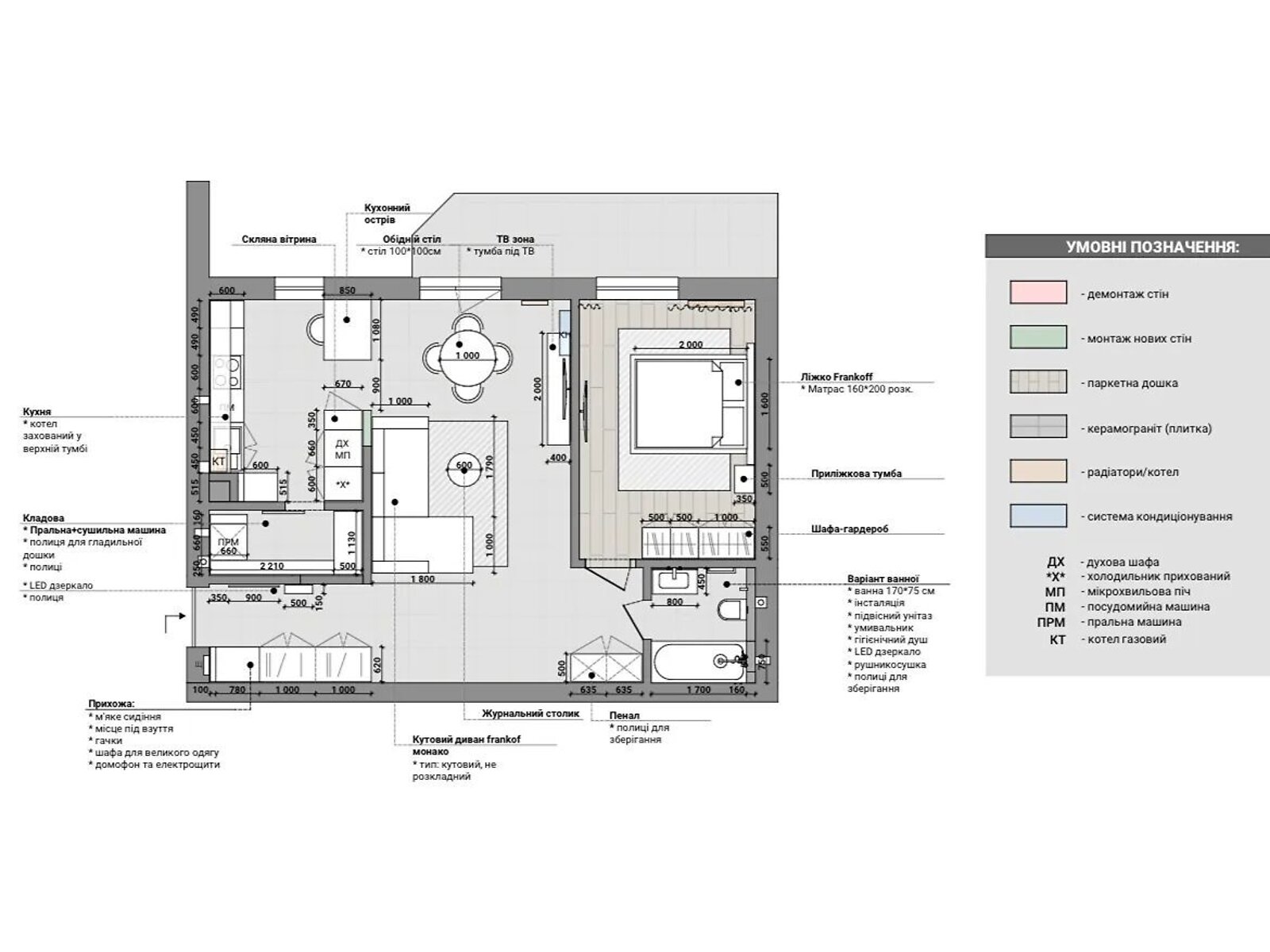
- Общая площадь 68.9 м² · жилая 32.25 м² · кухня 10.2 м²
- Стены из кирпича
- Сдача в 2025
- Охраняемая территория
- Спокойный район
- Оперативный показ
Описание от продавца
- Продается квартира 2-комнатная квартира, 69м2, в ЖК Долишний от надежного застройщика ВамБуд.
Рядом вся необходимая инфраструктура для комфортной жизни (озеро, парк, река, супермаркеты).
Преимущества квартиры:
- Кухня-студия с выходом на собственный участок (патио 8м2);
- Тёплый пол везде, кроме спальни, газовое отопление;
- Сделано отопление и сантехнику. Установлен газовый котел Ariston.
- залита чистая стяжка.
- Окна с 6-камерным энергосберегающим профилем, вид во внутренний двор;
- Штукатурка стен по маяку;
- Разводка под интернет и ТВ;
- Бронированные входные двери;
- Установлены все счетчики, смонтирована система водоснабжения и канализации.
Закрытая территория с ландшафтным дизайном, детскими и спортивными площадками.
Продажа по переуступке без дополнительных комиссий.
Звоните для осмотра!
- Жилье: Душ без ступеней
- Вход в дом: Вход без порогов
- Двор: Парковочное место для людей с инвалидностью
- Характеристика здания: тип дома (серия): новый фонд
- Характеристика помещения: высота потолка, м: 2.7 • состояние квартиры: требует ремонта / без ремонта / ремонт не закончен • утепление: внешнее
- Отделка потолка: без обработки • штукатурка
- Пол (покрытие): стяжка
- Внутренняя отделка: чистовая штукатурка
- Отопление: двухконтурный котел
- Подогрев воды: двухконтурный котел
- Помещения: раздельный санузел
- Оборудование • мебель • удобства: счетчик на электричество • счетчик на газ • счетчик на воду • электричество • газ
- Когда нет света: есть газ
- Подъезд: домофон • бронированная дверь • видеонаблюдение на территории • Лифт со звуковым сопровождением
- Мебель: нет
- Положение и окружение: тип двора: закрытого типа (вход, въезд ограничен)
- Особенности планировки: подогрев полов • панорамные / витринные окна
- Уникальные преимущества: Кухня-студия
Объявление неактуально или информация неточна?
- Объявление создано 29 янв. ·
- ID 33916941 ·
- Просмотров 0
- · Сохранений в избранное 0
Информация о ЖК
Дом
Наземный паркинг
Закрытая территория
Кирпичный дом
4-5 этажей
Индивидуальное газовое отопление
Стены из керамического красного кирпича
Утепленный пенополистиролом
Договор купли-продажи имущественного права
Высота потолков 2.8 м
Класс бизнес
709 квартир
|