








фото · 1 из 9

Смотреть все фото
Смотреть на карте
Продажа 2к квартиры 62 кв. м на ул. Ивана Мазепы 7 • ID 33728596
ЖК Oasis
Больше о новостройке
99 990 $ за объект · 4 224 578 грн · 1 613 $
за м²
В процессе проверки
Сейчас DIM.RIA ждет данных от продавца
Продавец сообщил, что готов пройти проверку на DIM.RIA. Как только получим документы или видео об этом объекте – сразу все расскажем тебе.
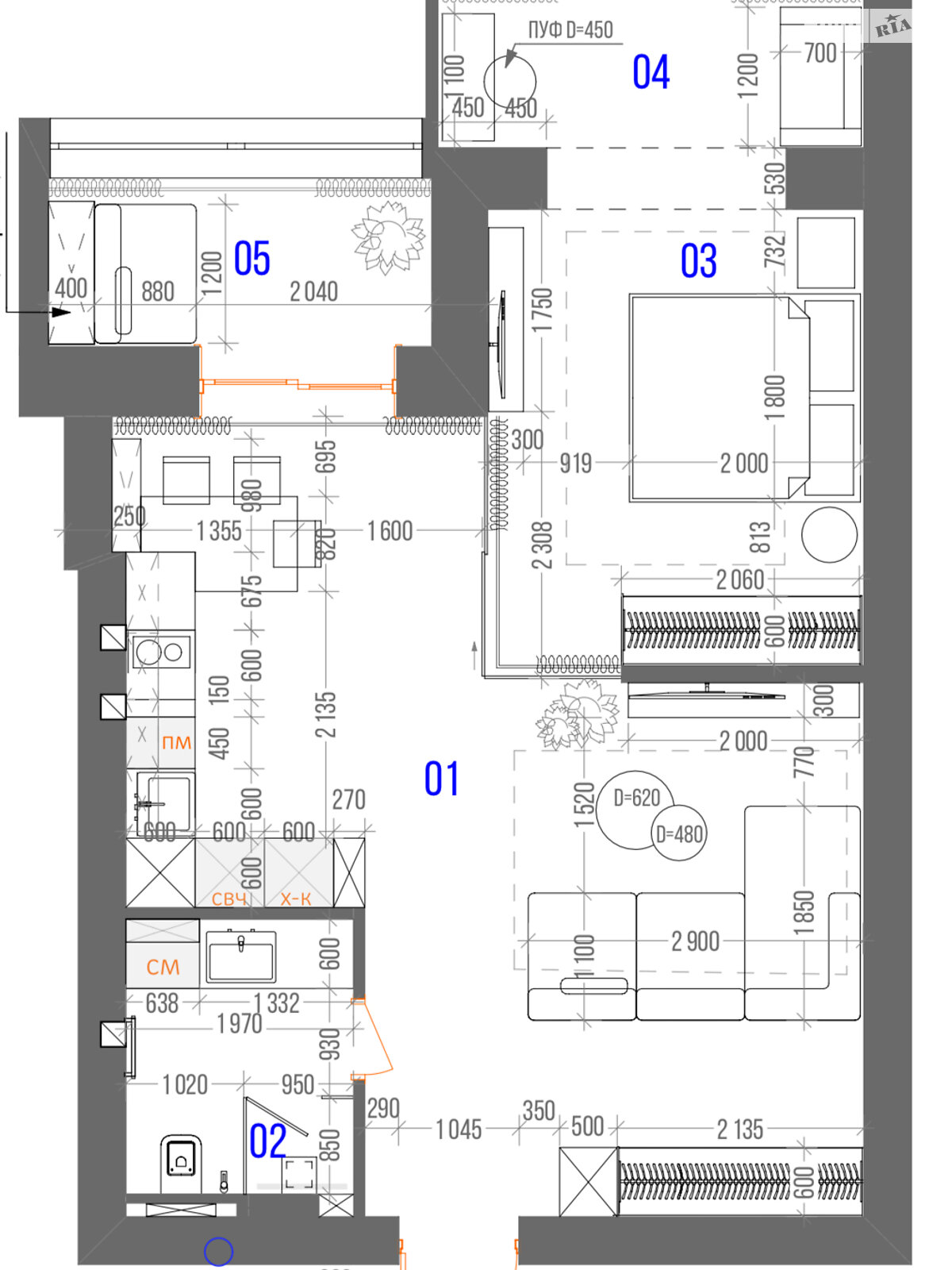
- 2 комнаты · 7 этаж из 10
- Общая площадь 62 м² · жилая 16 м² · кухня 19 м²
- Стены из кирпича
- Построен в 2021
- Без комиссии
- єВідновлення
- Вторичная недвижимость
Описание от продавца
- Укрытие в доме
- В центре
- Жилье не использовалось с момента постройки
- Квартира готова к покраске и установке техники!
Внимательно читайте описание!
В стоимость входит полный комплект премиальной сантехники:
Смесители Kludi
Унитаз Cielo
Гигиенический душ
Душевая лейка + вся необходимая фурнитура
Производители Испания, Италия, Германия
Готовый дизайн-проект в стоимости.
Проект кухни (готовый)
Индивидуальное отопление Vaillant
Тёплый пол во всей квартире.
Премиальные окна REHAU (УФ-защита)
Виниловый пол комфортный летом и теплый зимой.
Шумоизолированная спальня
Лоджия под рабочую или релакс-зону!
Щиты и автоматы - Schneider Electric
Бонус: кладовая на этаже с окном и электричеством!
Подробную информацию можете получить по телефону, также есть полный видеообзор квартиры.
Также можете посмотреть в моем телеграм канале t.me/kon_home
- Особенности планировки: кухня-студия
- Жилье: Душ без ступеней
- Вход в дом: Вход без порогов • Вход шириной более 90 см
- Двор: Вход в укрытие беспрепятственный, в уровень с землей
- Характеристика здания: тип дома (серия): новый фонд
- Характеристика помещения: высота потолка, м: 2.7 • состояние квартиры: дизайнерский ремонт • утепление: внешнее
- Отделка потолка: покраска
- Пол (покрытие): виниловое
- Наружная отделка: окрашено (покраска)
- Отопление: индивидуальное газовое
- Подогрев воды: двухконтурный котел
- Помещения: совмещенный санузел
- Оборудование • мебель • удобства: душевая кабина • счетчик на электричество • счетчик на газ • счетчик на воду • электричество • газ • интернет
- Подъезд: консьерж • домофон • видеонаблюдение на территории • Дверь лифта более 90 см
- Мебель: нет
- Положение и окружение: тип двора: закрытого типа (вход, въезд ограничен)
- Особенности планировки: подогрев полов • панорамные / витринные окна • балкон/лоджия
- Уникальные преимущества: Кухня-студия
Объект не такой, как в описании?
Расскажи нам, что не так – мы все проверим
- Объявление создано 18 ноя. ·
- ID 33728596 ·
- Просмотров 0
- · Сохранений в избранное 0
Информация о ЖК
Дом
Подземный паркинг
Закрытая территория
Чистовая внутренняя отделка
Кирпичный дом
10 этажей
Индивидуальное отопление
Стены из керамического красного кирпича
Утепленный минеральной ватой
Договор купли-продажи
Высота потолков 2.8 м
Класс комфорт
50 квартир
|