
















  фото  ·  1 из 17
    
 
  
                        Смотреть все фото
                        
  
                        Смотреть на карте
                        
Продажа 4к квартиры 89.4 кв. м на ул. Софии Галечко 2Б • ID 33671788
   71 550 $  за объект   ·  3 019 410 грн   ·  800 $
        за м²
 
                Перевірена квартира
            
 
                продавец предоставил техпаспорт
            
Проверено по техпаспорту
 Дата последней проверки 3 ноя.
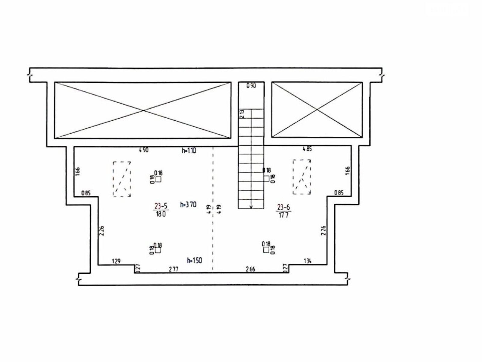
 -  Общая площадь 89.4 м² · жилая 56.4 м² · кухня 20.7 м²
 -  4 этаж из 5
 
Описание от продавца
 -  4 комнаты · 4 этаж из 5
 -  Общая площадь 89.4 м² · жилая 56.4 м² · кухня 20.7 м²
 -  Стены из кирпича
 -  Сдача в 2025
 -  Без комиссии
 -  єВідновлення
 -  Вторичная недвижимость
 
- єОселя
 - Красивый вид
 - Спокойный район
 - Оперативный показ
 
- Город Коломыя. ЖК Австрийский - современный комплекс в аутентичном стиле.
Адреса - ул. Софии Галечко, 2-Б
Покупайте по программам: єОселя, єВідновлення. Рассрочка. Без комиссии!
Сохранена историческая архитектура и добавлено максимум комфорта. Это не просто новостройка, а сочетание истории и современной жизни.
В продаже просторная 4-комнатная квартира - 89, 4 кв м с продуманной планировкой (пришлю подробное видео).
За квартирой закреплено 2 парковочных места возле дома!
Вид из окон на горы
Дом уже введен в эксплуатацию (адрес присвоен в 2025 г.).
Коммуникации:
свет 11 ткВт на квартиру
вода и канализация центральные
отопление индивидуальное электрическое
Строительные материалы:
новый кирпич + отреставрированная австрийская
стены 70 см, перегородки 10 см, между квартирами 25 см
черновая штукатурка, стяжка.
Рядом вся инфраструктура: супермаркет, школы, садики, аптеки.
Звоните! Чтобы узнать больше о планировке или условиях приобретения.
Пришлю видеообзор.
ID: XXXXXXXXX 
-  Особенности планировки: кухня-студия • с мансардой
 -  Характеристика помещения: утепление: внешнее
 -  Отделка потолка: штукатурка
 -  Пол (покрытие): стяжка
 -  Подогрев воды: бойлер
 -  Отопление: индивидуальное электрическое
 -  Помещения: совмещенный санузел
 -  Оборудование • мебель • удобства: счетчик на электричество • счетчик на воду • электричество
 -  Когда нет света: есть водоснабжение • есть резервное питание
 -  Подъезд: видеонаблюдение на территории • противопожарная система
 -  Мебель: нет
 -  Положение и окружение: тип двора: закрытого типа (вход, въезд ограничен)
 -  Внутренняя отделка: черновая штукатурка
 -  Особенности планировки: панорамные / витринные окна
 -  Уникальные преимущества: Кухня-студия • С мансардой • Возможна рассрочка
 
            Объявление неактуально или информация неточна?
        
  - Объявление создано 3 ноя. ·
 - ID 33671788 ·
 - Просмотров 0
 - · Сохранений в избранное 0