











фото · 1 из 12

Смотреть все фото
Смотреть на карте
Продажа 1к квартиры 21 кв. м на ул. Андрея Малышко 27 • ID 33698293
36 000 $ за объект · 1 530 000 грн · 1 714 $
за м²
Информация неточна?
Продавец не подтвердил данные об этой недвижимости. Расскажите, что не так, и мы проверим
Без проверки
Описание от продавца
Продавец не подтвердил информацию об этом объекте (не заказывал проверку с представителем DIM.RIA, не отправлял видео или документы)
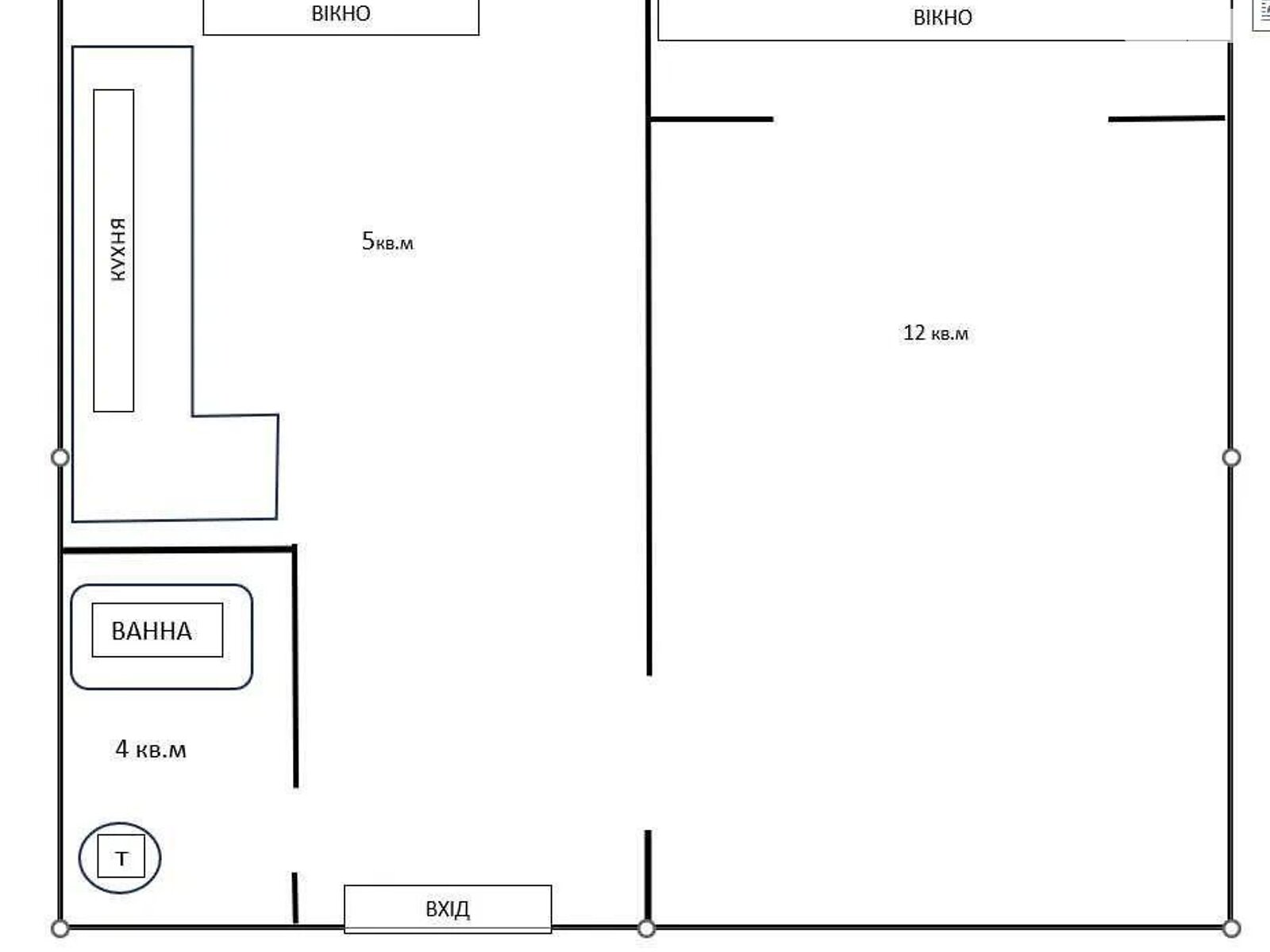
- Общая площадь 21 м² · кухня 5 м²
- Стены из панелей
- Построен в 1917-1969
- Предложение от посредника
- Комиссия за услуги 5 %
- Вторичная недвижимость
- Закрепленное паркоместо
- В продаже предлагается однокомнатная квартира по адресу улица Малышка, возле Детского Мира.
Квартира светлая и просторная, общей площадью 21 м², полностью меблирована и укомплектована всей необходимой бытовой техникой. В квартире выполнен хороший ремонт.
Вокруг дома ухоженная территория с детскими и спортивными площадками, подъезды чистые и с кодовым замком.
Отлично развитая инфраструктура в пешей доступности есть все необходимое для вашей комфортной жизни: парки, супермаркеты, салоны красоты, аптеки, рынок, кофейни, ТРЦ, гимназия и детский сад.
Хорошо развитая транспортная развязка, поблизости дома остановка городского транспорта, трамвая и в 8 минутах пешком станция метро Черниговская и Дарница.
Звоните, пишите! Просмотр в удобное для вас время вместе с экспертом компании 7 floor!
Номер объявления на сайте компании: SF-3-237-991-DR.
- Характеристика помещения: высота потолка, м: 2.7 • состояние квартиры: хорошее
- Отделка потолка: покраска
- Пол (покрытие): линолеум
- Внутренняя отделка: обои
- Отопление: централизованное
- Подогрев воды: централизованный • бойлер
- Помещения: совмещенный санузел
- Оборудование • мебель • удобства: камин • стиральная машина • газовая плита • духовой шкаф • микроволновая печь • холодильник • счетчик на воду • вытяжка • интернет
- Подъезд: кодовый замок • домофон
- Положение и окружение: тип двора: внутренний
- Особенности планировки: балкон/лоджия
- Объявление создано 17 ноя. ·
- ID 33698293 ·
- Просмотров 0
- · Сохранений в избранное 0
Информация о доме
ул. Андрея Малышко, 27
Дарниця ·
8 мин
Дом
Наружная отделка из керамической плитки 3 подъезда Наружное утепление отсутствуетДвор
Внутренний двор
Учебные заведения
|
15 мин
Державний національний торговельно-економічний університет
|
21 мин
ОК імені Івана Піддубного
|
23 мин
Університет туризму, економіки і права
|
|---|---|---|---|
Детский сад
|
4 мин
Дошкільний навчальний заклад № 591
|
4 мин
Дитячий садок Домінанта
|
7 мин
Дитсадок №503
|
ТЦ, рынок, магазины
|
3 мин
АТБ-Маркет
|
5 мин
Фора
|
6 мин
Миропільський
|
Школа
|
10 мин
Вечірня (змінна) школа № 18
|
14 мин
Школа №189
|
17 мин
Школа №258
|
Больница
|
3 мин
Омега-Київ
|
6 мин
Фармація
|
13 мин
Київська міська клінічна лікарня №2
|
Парковые зоны
|
6 мин
Парк Андрія Малишка
|
11 мин
Океанаріум
|
14 мин
Парк "Попудренко"
|
Транспортная развязка
|
5 мин
вулиця Андрія Малишка
|
5 мин
Магазин
|
6 мин
вул. Андрія Малишка
|
Наземный паркинг
|
13 мин
Паркінг "Дніпро"
|
20 мин
Паркінг
|
24 мин
Парковка на Лісовій
|
6.3 Общий рейтинг | 7.1 Зоны отдыха | 6.2 Транспорт | 5.8 Инфраструктура | 5.7 Безопасность | 6.8 Экология |
| Читать все 55 отзывов о районе Северно-Броварский Масив | Добавить отзыв о районе Северно-Броварский Масив | ||||
Пользуется спросом на DIM.RIA
Вас могут заинтересовать
Квартиры в ближайших городах