









































фото · 1 из 42
Продажа 6к квартиры 204 кв. м на ул. Саперное Поле 5 • ID 33909555
ЖК Бульвар фонтанов
Больше о новостройке
1 450 000 $ за объект · 62 770 500 грн · 7 108 $
за м²
Перевірена квартира
продавец предоставил техпаспорт
Проверено по техпаспорту
Дата последней проверки 27 янв.
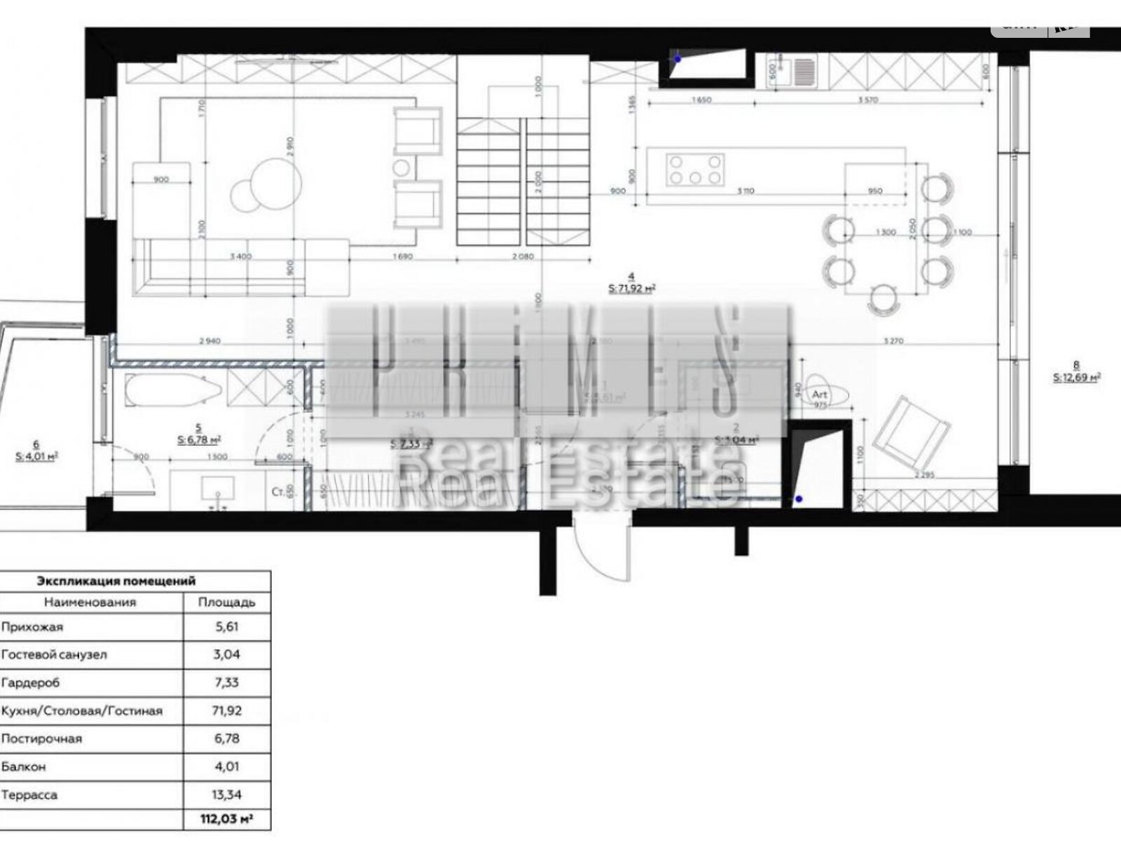
- Общая площадь 204 м² · жилая 115.1 м² · кухня 72 м²
- 6 комнат
- 10 этаж из 15
- 6 комнат · 10 этаж из 15
- Общая площадь 204 м² · жилая 115.1 м² · кухня 72 м²
- Стены монолитно-каркасные
- Предложение от посредника
- Комиссия за услуги 3 %
- Вторичная недвижимость
- Охраняемая территория
- Престижный район
- В центре
Описание от продавца
- ДИЗАЙНЕРСКИЙ ПЕНТХАУС от YODEZEEN ARCHITECTS
ЖК «Бульвар Фонтанов»
ул. Саперное поле, 5
Печерский район
Киев
Пожалуйста, предоставьте текст для перевода.
Общая площадь: 204 м²
Количество сжиганий: 3
Этажи: 1011
Изысканный двухэтажный пентхаус, реализованный по проекту YODEZEEN ARCHITECTS, воплощает современную архитектурную эстетику, функциональность и безупречный вкус.
Каждая деталь пространства продумана до мельчайших подробностей от текстуры мрамора до мягкости света.
Детали, определяющие уровень.
Приливно-вытяжная вентиляция обеспечивает постоянный приток свежего, очищенного воздуха.
Система «Умный дом» полное управление освещением, климатом, шторами и сценариями комфорта, в том числе дистанционно.
Индивидуально изготовленные шпоновые панели, мрамор, дизайнерский геометрический паркет.
Обновленные панорамные стеклопакеты с раздвижной системой выхода на террасу.
Полная комплектация техника Miele, мебель Minotti, Polifm, Gallotti & Radice, Maxalto, Gigetti.
Дом:
Монолитно-каркасная технология, год постройки 2019.
Высота потолка 3 метра.
Подземная парковка (1 место в стоимости), круглосуточная охрана, консьерж, оптоволоконный интернет.
Рядом школы, парки, рестораны, вся инфраструктура Печерска.
Этот пентхаус для тех, кто ценит архитектурную эстетику, тишину и комфорт наивысшего уровня.
Пространство, в котором дизайн имеет характер.
(Ожидаю текст для перевода)
Есть парковочное место (в цене включено).
Ждем просмотров, Primes!
- Особенности планировки: пентхаус
- Характеристика здания: тип дома (серия): новый фонд
- Характеристика помещения: высота потолка, м: 3 • состояние квартиры: дизайнерский ремонт • утепление: внешнее
- Отделка потолка: без обработки • побелка • штукатурка • подвесной потолок • натяжной потолок • пластиковая вагонка • деревянная вагонка • обои • МДФ • другое • покраска
- Пол (покрытие): без отделки • стяжка • керамическая плитка • натуральный камень • искусственный камень • ламинат • паркет • паркетная доска • линолеум • ковролин • дощатый пол • антипылевое покрытие • виниловое • монолит
- Внутренняя отделка: покраска • МДФ • пластиковая вагонка • деревянная вагонка • обои • черновая штукатурка • декоративная штукатурка • декоративный камень • керамическая плитка • кафель • дерево • блок-хаус • чистовая штукатурка
- Наружная отделка: обложено кирпичем
- Коммуникации: Телевидение: нет • интернет: нет • вентиляция / кондиционирование: вентиляция
- Вода: центральный водопровод • скважина
- Двери и окна: входная дверь: металлическая • количество камер стеклопакета: 3 • защита окон: нет • фасадных окон: 3
- Отопление: централизованное • автономная котельная • индивидуальное газовое • твердотопливный котел • двухконтурный котел • индивидуальное электрическое • воздушное • одноконтурный котел • без отопления
- Подогрев воды: централизованный • бойлер • колонка • двухконтурный котел • комбинированный • одноконтурный котел • нет
- Помещения: санузел: 3 • лоджия: нет • балкон(ы): 1 • 2 санузла
- Оборудование • мебель • удобства: домашний кинотеатр • телевизор • плазменный телевизор • обеденная зона • стиральная машина • сушилка для белья • посудомоечная машина • душевая кабина • ванна • джакузи • газовая плита • электрическая плита • духовой шкаф • система очистки питьевой воды • шкаф-гардероб • Встроенная кухня • диван • барная стойка • холодильник • счетчик на электричество • счетчик на газ • счетчик на воду • охранная сигнализация • пожарная сигнализация • кондиционер • электричество • интернет
- Когда нет света: есть интернет • есть мобильная связь • работает лифт • есть водоснабжение • работает отопление
- Подъезд: замок • кодовый замок • охранник • вахтер • консьерж • домофон • видеодомофон • видеонаблюдение
- Положение и окружение: тип двора: закрытого типа (вход, въезд ограничен) • охраняемый район
- Особенности планировки: подогрев полов
Объявление неактуально или информация неточна?
- Объявление создано 27 янв. ·
- ID 33909555 ·
- Просмотров 0
- · Сохранений в избранное 0
Расположение ЖК Бульвар фонтанов
ул. Саперное Поле, 3, 5а, 5
Лыбедская
·
10 мин
Дворец Украина
·
12 мин
Зверинецкая(Дружбы народов)
·
19 мин
Информация о ЖК
Дом
Подземный паркинг
Закрытая территория
Черновая внутренняя отделка
Монолитно-каркасный дом
8-24 этажа
Централизированное отопление
Стены из керамического красного кирпича
Договор купли-продажи
Высота потолков 3 м
Класс элитные
811 квартир
|
5.4 Общий рейтинг | 5.2 Зоны отдыха | 6 Транспорт | 6.2 Инфраструктура | 5.6 Безопасность | 4 Экология |
| Читать все 50 отзывов о районе Саперное Поле | Добавить отзыв о районе Саперное Поле | ||||
Пользуется спросом на DIM.RIA
Вас могут заинтересовать