Может вас заинтересовать











фото · 1 из 11
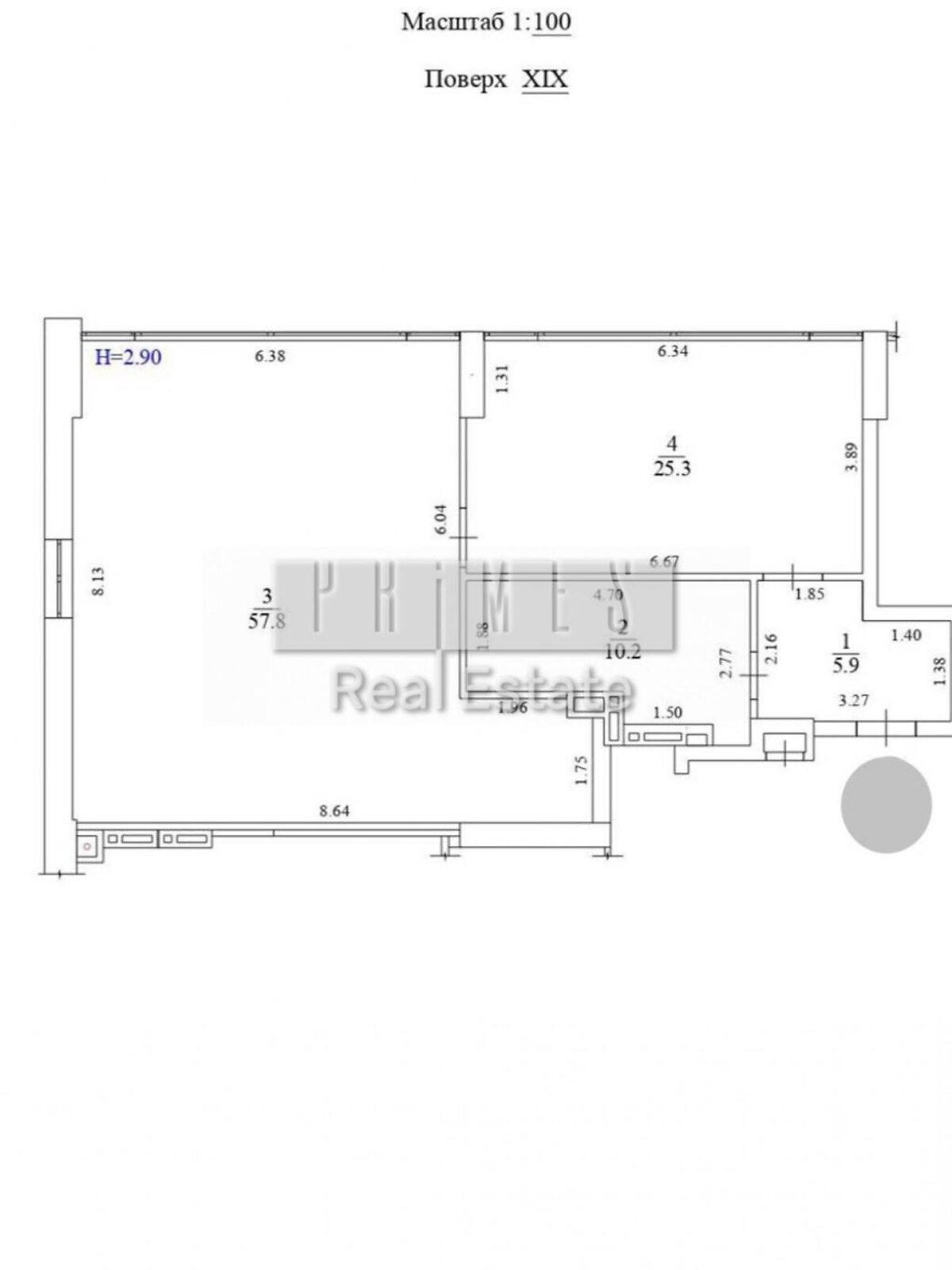
Продажа 3к квартиры 99 кв. м на туп. Крепостной 7Б • ID 33935663
ЖК Новопечерский квартал N5
252 500 $ за объект · 10 930 725 грн · 2 551 $
за м²
Без проверки
Продавец не подтвердил информацию об этом объекте (не заказывал проверку с представителем DIM.RIA, не отправлял видео или документы)
- 3 комнаты · 19 этаж из 19
- Общая площадь 99 м² · жилая 37 м² · кухня 16 м²
- Стены из кирпича
- Предложение от посредника
- Комиссия за услуги 3 %
- Вторичная недвижимость
- Красивый вид
- В центре
- Выгодная цена
Описание от продавца
- #23669 Предлагается на продажу 3-к видная просторная квартира общей площадью 99 м2 на 19 этаже ЖК Новопечерский Квартал 5, по улице
Квартира предлагается без ремонта и свободной планировки, что позволит оформить дизайн и воплотить Ваши дизайнерские пожелания.
На этом этаже будет обновлен дизайн коридоров по отдельному проекту. Есть возможность объединить с другой площадью.
Новопечерский квартал 5 - жилой комплекс, который имеет внутреннюю инфраструктуру, включающую детский сад, площадки для занятий спортом на свежем воздухе, велодорожки, парк с водоемом. Территория ЖК находится под круглосуточной охраной и видеонаблюдением, территория закрыта от гостей и авто. В наличии в продаже паркоместа и подсобные помещения площадью от 10 до 20 м2.
В пешей доступности метро Площадь Печерская, жилой массив Саперное поле, ЖК Бульвар Фонтанов и т.д.
Приглашаю на просмотр с экспертом PRIMES!
- Характеристика здания: тип дома (серия): индивидуальный проект
- Характеристика помещения: высота потолка, м: 3 • состояние квартиры: черновая штукатурка • утепление: внешнее
- Наружная отделка: декоративная штукатурка
- Когда нет света: есть интернет • работает лифт • есть водоснабжение
- Мебель: нет
- Положение и окружение: тип двора: закрытого типа (вход, въезд ограничен)
- Оборудование • мебель • удобства: электричество • интернет
- Объявление создано 4 фев. ·
- ID 33935663 ·
- Просмотров 0
5.4 Общий рейтинг | 5.2 Зоны отдыха | 6 Транспорт | 6.2 Инфраструктура | 5.6 Безопасность | 4 Экология |
| Читать все 50 отзывов о районе Саперное Поле | Добавить отзыв о районе Саперное Поле | ||||
Пользуется спросом на DIM.RIA
Вас могут заинтересовать
Квартиры в ближайших городах