















фото · 1 из 16

Смотреть все фото
Смотреть на карте
Продажа 2к квартиры 46 кв. м на ул. Андрея Верхогляда 18А • ID 33395270
ЖК Новопечерские Липки
Больше о новостройке
255 000 $ за объект · 10 727 850 грн · 5 543 $
за м²
Перевірена квартира
Проверено по видеозвонку
Отчет от 7 авг.
- Вторичная недвижимость
- 6 этаж из 11
- Предложение от посредника
Описание от продавца
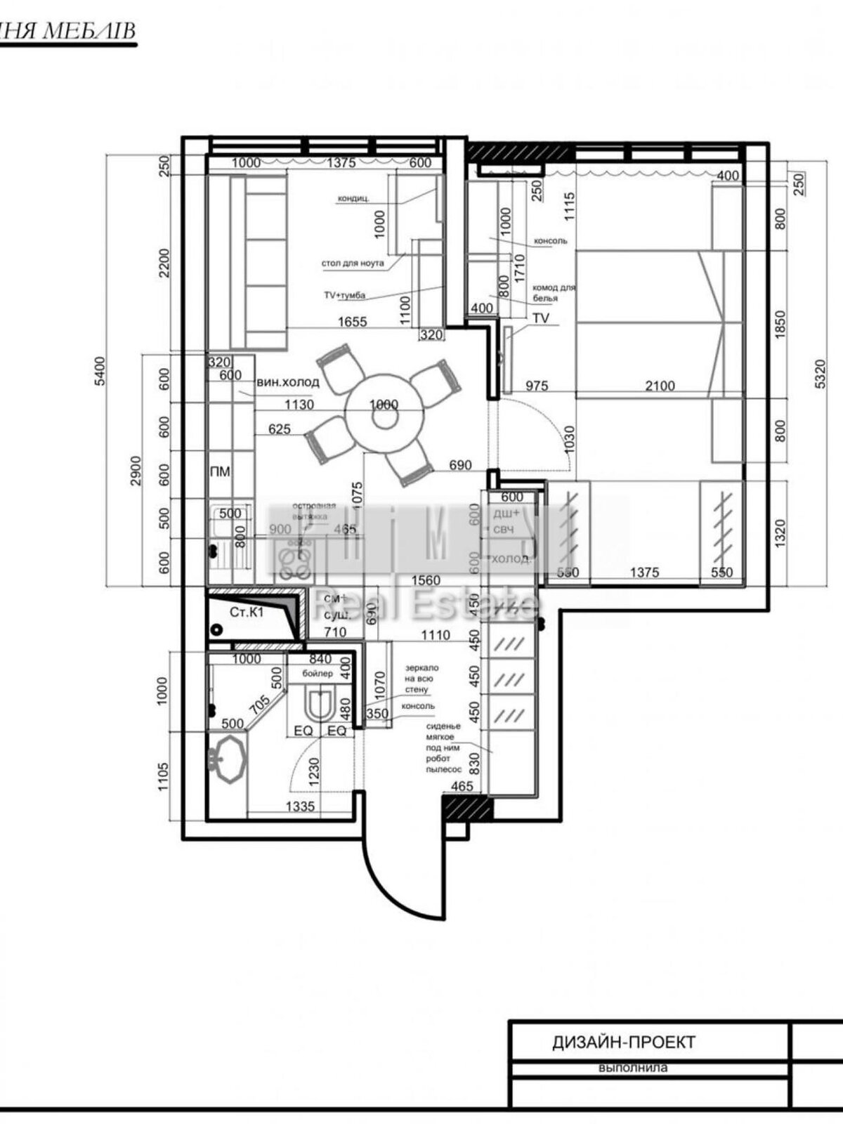
- Общая площадь 46 м² · жилая 14 м² · кухня 18 м²
- Стены монолитно-каркасные
- Комиссия за услуги 3 %
- Торг уместен
- Новый ремонт
- Жилье не использовалось с момента постройки
- #17369
Идеальная квартира с новым стильным ремонтом в роскошном ЖК бизнес-класса "Новопечерские Липки".
Квартира после безупречного дизайнерского ремонта.
Высота потолка в квартире 3 метра.
Функциональное планирование. Функциональная кухня гостиная, где есть много места для хранения, спальня также с вместительной гардеробной комнатой.
Просторный санузел.
Квартира полностью укомплектована всей необходимой бытовой техникой и мебелью.
На полу испанская плитка и паркетная доска ТВ Samsung 50 диагональ нового поколения со всеми функциями.
Техника Bosch, бойлер, стиральная и сушильная машина, теплый пол, индукционная плита, духовой шкаф,
Вокруг новостроек находятся объекты инфраструктуры: школы, детские сады, магазины, торговые центры, офисные здания.
Внутренняя инфраструктура комплекса предусматривает наличие химчистки и других заведений сферы услуг.
- Характеристика здания: тип дома (серия): другое
- Характеристика помещения: высота потолка, м: 3 • состояние квартиры: дизайнерский ремонт • утепление: внешнее и внутреннее
- Отделка потолка: другое
- Пол (покрытие): паркетная доска
- Наружная отделка: керамическая плитка
- Отопление: централизованное
- Подогрев воды: централизованный • бойлер
- Помещения: гостиная • совмещенный санузел
- Оборудование • мебель • удобства: телевизор • обеденная зона • душевая кабина • духовой шкаф • шкаф-гардероб • Встроенная кухня • холодильник • счетчик на электричество • счетчик на воду • электричество • интернет • фильтр для воды • двуспальная кровать
- Когда нет света: работает лифт
- Подъезд: бронированная дверь
- Положение и окружение: тип двора: закрытого типа (вход, въезд ограничен)
- Особенности планировки: подогрев полов • панорамные / витринные окна
- Уникальные преимущества: Кухня-студия
Объявление неактуально или информация неточна?
- Объявление создано 7 авг. ·
- ID 33395270 ·
- Просмотров 0
- · Сохранений в избранное 0
Расположение ЖК Новопечерские Липки
ул. Андрея Верхогляда(Драгомирова), 1-20А
Зверинецкая(Дружбы народов)
·
18 мин
Лыбедская
·
28 мин
Выдубичи
·
30 мин
Информация о ЖК
Дом
Подземный паркинг
Закрытая территория
Черновая внутренняя отделка
Кирпичный дом, монолитно-каркасный дом
6-30 этажей
Централизированное отопление
Стены из керамического красного кирпича
Утепленный минеральной ватой
Инвестиционный договор
Высота потолков 3 м
Класс бизнес
3878 квартир
|
6 Общий рейтинг | 5.7 Зоны отдыха | 6.9 Транспорт | 6.4 Инфраструктура | 6.2 Безопасность | 4.9 Экология |
| Читать все 1095 отзывов о районе Печерский | Добавить отзыв о районе Печерский | ||||
Пользуется спросом на DIM.RIA
Вас могут заинтересовать
Квартиры в ближайших городах