











фото · 1 из 12

Смотреть все фото
Смотреть на карте
Продажа 2к квартиры 55 кв. м на ул. Гетмана Павла Скоропадского 23 • ID 33290346
220 000 $ за объект · 9 255 400 грн · 4 000 $
за м²
Информация неточна?
Продавец не подтвердил данные об этой недвижимости. Расскажите, что не так, и мы проверим
Без проверки
Описание от продавца
Продавец не подтвердил информацию об этом объекте (не заказывал проверку с представителем DIM.RIA, не отправлял видео или документы)
- 2 комнаты · 2 этаж из 4
- Общая площадь 55 м² · жилая 39 м² · кухня 6 м²
- Стены из кирпича
- Предложение от посредника
- Вторичная недвижимость
- Закрепленное паркоместо
- Укрытие в доме
- В центре
- Лучше один раз увидеть, чем сто раз услышать. код объекта 213-152-055
Звоните и приходите на просмотр и получите удовольствие от просмотра чудесной квартиры в центре города.
В ваше внимание предлагается просторная уютная 2-комнатная квартира на продажу по адресу:
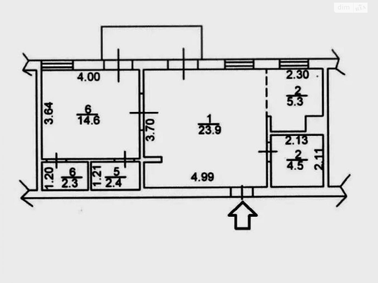
Центр, ул. Гетмана Павла Скоропадского, дом 23/1, которая расположена на 2 этаже 5-ти этажного дома. Сталинка. Кирпич. Высота потолка 3, 71 м.
Общая площадь квартиры 54, 7 м2.
Комнаты 23, 9 м2 и 14, 6 м2.
Кухня 5, 3 м2.
Квартира с дизайнерским ремонтом, оборудованная мебелью и всей необходимой техникой. Есть газ.
Очень светлая и просторная, хорошая шумоизоляция.
Прекрасная инфраструктура.
В пешей доступности супермаркеты, торговые центры, рестораны, большое количество магазинов, школы, детские сады, поликлиника и прочее.
Тихий и уютный двор, дружелюбные соседи, рядом места для отдыха и парковки.
Удобная транспортная развязка 10 минут до центра города, 5 минут пешком до метро Университет, Льва Толстого, Театральная, Палац Спорту, общественный транспорт.
Комиссию оплачивает Покупатель по факту подписания договора.
- Особенности планировки: кухня-студия
- Характеристика здания: тип дома (серия): сталинка
- Характеристика помещения: высота потолка, м: 3.7 • состояние квартиры: дизайнерский ремонт • утепление: внешнее и внутреннее
- Отделка потолка: покраска
- Пол (покрытие): керамическая плитка • паркет
- Внутренняя отделка: покраска
- Отопление: централизованное
- Подогрев воды: централизованный • бойлер
- Помещения: совмещенный санузел
- Оборудование • мебель • удобства: телевизор • обеденная зона • стиральная машина • посудомоечная машина • ванна • кофемашина • газовая плита • духовой шкаф • микроволновая печь • шкаф-гардероб • Встроенная кухня • диван • холодильник • счетчик на электричество • счетчик на газ • счетчик на воду • кондиционер • электричество • газ • вытяжка • интернет • письменный стол • двуспальная кровать
- Когда нет света: есть интернет • есть мобильная связь • есть водоснабжение • работает отопление • есть газ
- Подъезд: кодовый замок • домофон
- Положение и окружение: тип двора: внутренний
- Особенности планировки: панорамные / витринные окна • балкон/лоджия
- Уникальные преимущества: Кухня-студия
- Объявление создано 15 жов. ·
- ID 33290346 ·
- Просмотров 0
- · Сохранений в избранное 0
Информация о доме
ул. Гетмана Павла Скоропадского (Льва Толстого), 23
Дом
1 подъезд Наружное утепление отсутствуетДвор
Внутренний двор 5.6 Общий рейтинг | 6.1 Зоны отдыха | 5.6 Транспорт | 6 Инфраструктура | 5 Безопасность | 5.1 Экология |
| Читать все 80 отзывов о районе Паньковщина | Добавить отзыв о районе Паньковщина | ||||
Пользуется спросом на DIM.RIA
Вас могут заинтересовать
Квартиры в ближайших городах