





фото · 1 из 6
Продажа 1к квартиры 23.4 кв. м на ул. Якубенковская 12 • ID 33733628
ЖК Nagirniy House
Больше о новостройке
43 500 $ за объект · 1 888 770 грн · 1 859 $
за м²
Перевірена квартира
продавец предоставил техпаспорт
Проверено по техпаспорту
Дата последней проверки 28 ноя. 2025
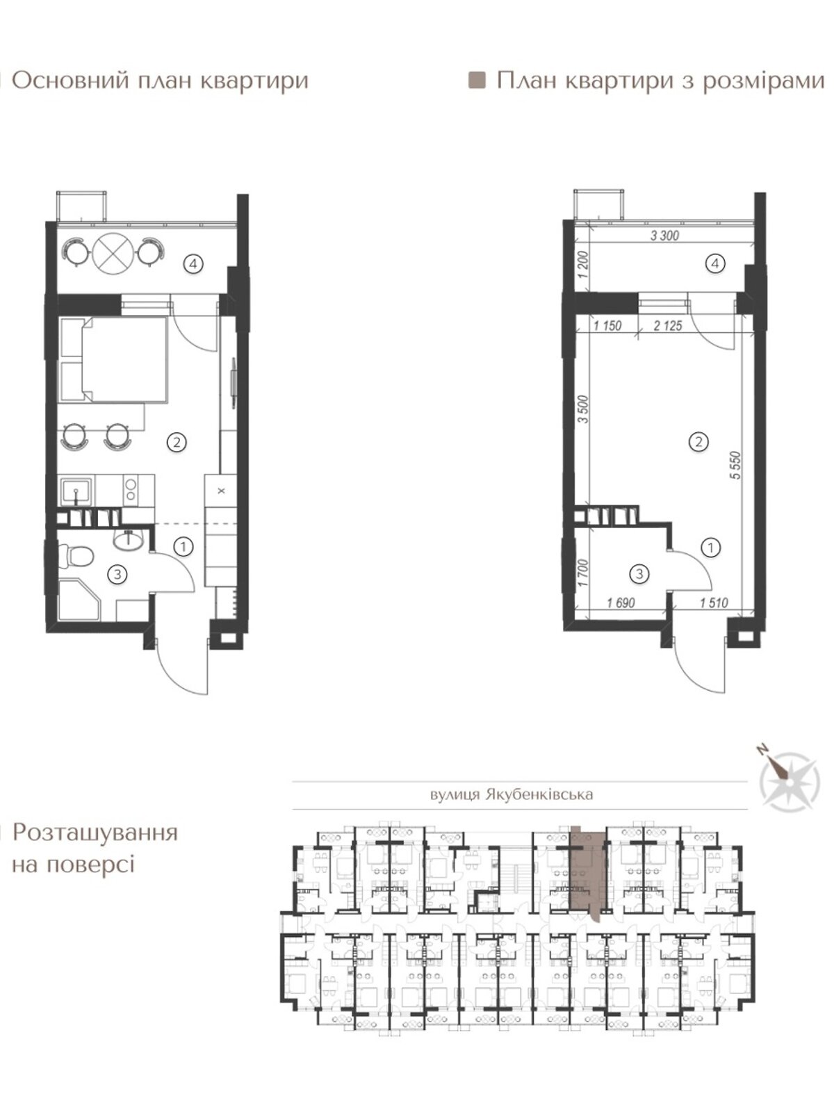
- Общая площадь 23.4 м² · жилая 12.5 м² · кухня 5 м²
- 2 этаж из 5
Описание от продавца
- 1 комната · 2 этаж из 5
- Общая площадь 23.4 м² · жилая 12.5 м² · кухня 5 м²
- Стены из кирпича
- Сдача в 2025
- Без комиссии
- Новостройка
- Укрытие в доме
- Топ инвестиция!
Смарт 23, 4 м² 43 500 $
Доходность 8, 7%
Умная квартира
2 этаж, площадь 23, 4 м²
Стоимость 43 500 $
Бизнес под ключ на полном пассиве.
Состояние: стяжка, разводка отопления, радиаторы готова под чистовую отделку.
Идеальная инвестиция:
Доходность 8, 7%
Есть собственная управляющая компания полностью занимается сдачей в аренду за 10%
Никаких хлопот для владельца
Сделаем ремонт под ключ.
Преимущества комплекса:
Современный клубный дом
Коворкинг, кинозал, укрытие
Зона барбекю, дизайнерские лобби
Автономное отопление, генератор
Местоположение: рядом Novus, Silpo, Promenada, Spt Life, парки.
До центра 45 км.
- Характеристика здания: тип дома (серия): новый фонд
- Характеристика помещения: высота потолка, м: 2.73 • состояние квартиры: требует ремонта / без ремонта / ремонт не закончен • утепление: внешнее
- Пол (покрытие): стяжка
- Отопление: автономная котельная
- Подогрев воды: бойлер
- Помещения: совмещенный санузел
- Оборудование • мебель • удобства: счетчик на электричество • счетчик на воду • электричество • интернет
- Когда нет света: есть интернет • работает лифт • есть водоснабжение • работает отопление
- Подъезд: консьерж • видеонаблюдение на этаже • видеонаблюдение на территории • противопожарная система
- Положение и окружение: тип двора: внутренний
- Вход в дом: Вход шириной более 90 см
Объявление неактуально или информация неточна?
- Объявление создано 28 ноя. 2025 ·
- ID 33733628 ·
- Просмотров 0
- · Сохранений в избранное 0
Информация о ЖК
Дом
Подземный паркинг
22 паркоместа
Закрытая территория
Отсутствует внутренняя отделка
Монолитно-каркасный дом
1-5 этажей
Автономная котельная
Стены из керамоблока
Утепленный пенополистиролом, минеральной ватой
Высота потолков 2.7 м
Класс бизнес
97 квартир
8.2 Общий рейтинг | 7.9 Зоны отдыха | 9.1 Транспорт | 8.7 Инфраструктура | 7.9 Безопасность | 7.4 Экология |
| Читать все 95 отзывов о районе Лукьяновка | Добавить отзыв о районе Лукьяновка | ||||
Пользуется спросом на DIM.RIA
Вас могут заинтересовать
Квартиры в ближайших городах