














фото · 1 из 15
Продажа 2к квартиры 45.3 кв. м на просп. Лесной 33 • ID 33933968
47 000 $ за объект · 2 029 930 грн · 1 044 $
за м²
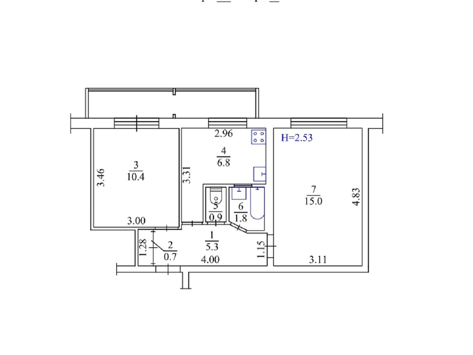
- Общая площадь 45.3 м² · жилая 25.4 м² · кухня 6.8 м²
- Стены из керамзитобетона
- Предложение от посредника
- Комиссия за услуги 3 %
- єВідновлення
- Вторичная недвижимость
- Торг уместен
- Красивый вид
- Спокойный район
Описание от продавца
- Деснянский район. Лесной массив.
Продажа 2 ком.кв., пр-т Лесной 33
Над 9/9 этажным домом + техэтаж
Площадь 45/26/6, 8 м. кв.
Состояние жилое, комнаты раздельные, стеклопакеты, балкон на комнату и кухню застеклен.
Светлая и теплая квартира. Мебель остается. Рассматриваем государственные программы.
Кооператив, ухоженный подъезд, домофон.
Рядом детский сад, школы, Сільпо, аптеки, стоянка, зона отдыха.
Отличная транспортная развязка. Торг на месте.
- Характеристика здания: тип дома (серия): чешка
- Характеристика помещения: планировка: раздельные комнаты • высота потолка, м: 2.6 • состояние квартиры: косметический ремонт
- Отделка потолка: побелка
- Пол (покрытие): паркетная доска • линолеум
- Внутренняя отделка: обои
- Наружная отделка: без отделки
- Отопление: централизованное
- Подогрев воды: централизованный
- Помещения: раздельный санузел
- Оборудование • мебель • удобства: обеденная зона • ванна • газовая плита • шкаф-гардероб • диван • холодильник • счетчик на электричество • счетчик на воду • электричество • газ • вытяжка • интернет • письменный стол • односпальная кровать
- Когда нет света: есть мобильная связь • есть водоснабжение • работает отопление • есть газ
- Подъезд: домофон • бронированная дверь
- Положение и окружение: тип двора: внутренний
- Особенности планировки: балкон/лоджия
- Лифт: пассажирский лифт
- Вход в дом: Вход шириной более 90 см
Объявление неактуально или информация неточна?
- Объявление создано 9 фев. ·
- ID 33933968 ·
- Просмотров 0
- · Сохранений в избранное 0
Информация о доме
просп. Лесной, 33
Лісова ·
35 мин
Дом
Наружная отделка отсутствует 12 подъездов Наружное утепление отсутствуетДвор
Внутренний дворДополнительные удобства
Детская площадка
Учебные заведения
|
26 мин
Київський міський медичний коледж
|
32 мин
Державний національний торговельно-економічний університет
|
39 мин
Університет туризму, економіки і права
|
|---|---|---|---|
Детский сад
|
2 мин
ЗДО №534
|
3 мин
ЗДО №176
|
5 мин
Дитячий садок "Лісові дзвіночки"
|
ТЦ, рынок, магазины
|
5 мин
Сільпо
|
6 мин
Коло
|
30 мин
ТЦ "Б-52"
|
Школа
|
4 мин
Школа №207
|
4 мин
Школа №213
|
13 мин
Школа №147
|
Больница
|
4 мин
Мій лікар
|
4 мин
Аптека №7
|
7 мин
Лікарня для жертв Чорнобилю
|
Парковые зоны
|
8 мин
Здоров’я
|
23 мин
Сквер на Шолом-Алейхема
|
26 мин
Берізка
|
Транспортная развязка
|
5 мин
Вулиця Кубанської України
|
5 мин
Церква
|
6 мин
Лікарня
|
Наземный паркинг
|
12 мин
Паркінг
|
35 мин
Паркінг "Дніпро"
|
39 мин
Парковка на Лісовій
|
7.3 Общий рейтинг | 7.5 Зоны отдыха | 7.7 Транспорт | 7.1 Инфраструктура | 6.3 Безопасность | 7.9 Экология |
| Читать все 135 отзывов о районе Лесной Массив | Добавить отзыв о районе Лесной Массив | ||||
Пользуется спросом на DIM.RIA
Вас могут заинтересовать
Квартиры в ближайших городах