










Перевірене фото · 1 из 11
Продажа 1к квартиры 47.81 кв. м на шоссе Харьковское 210 • ID 33931602
ЖК Olympiс Park
Больше о новостройке
49 516 $ за объект · 2 151 470 грн · 1 036 $
за м²
Перевірена новобудова
Проверено экспертом DIM.RIA
Отчет от 18 фев.
- 1 комната · 13 этаж из 28
- Общая площадь 47.81 м²
- Стены монолитно-каркасные
- Сдача в 2026
- Новостройка
Объявление неактуально или информация неточна?
- Собственная инфраструктура
- Удобная транспортная развязка
- Современные технологии и материалы
- Энергоэффективность
- Системы безопасности и видеонаблюдения
- Торговый комплекс
- Находитесь в поиске 1-комнатной квартиры от застройщика - обратите внимание на ЖК Olympiс Park.
Это современная новостройка в районе с развитой инфраструктурой - Киев, Харьковское, 210.
Ближайшие станции метро: Вырлица - 12 минут пешком, Бориспольская - 13 минут пешком, Красный хутор - 26 минут пешком.
ЖК Olympiс Park отличается удобным расположением, поскольку в непосредственной близости от него есть: учебные заведения, школа, больница, тц, рынок, магазины, парковые зоны, транспортная развязка, детский сад.
Сейчас в продаже 1-комнатная квартира с современной комфортной планировкой на 13 этаже 28-и этажного дома.
Заселится в ЖК Olympiс Park можно после заявленной даты сдачи - 4 квартал 2026 года.
На данный момент по этому проекту уже построено 2 секции.
Застройщик - Status Group.
- Характеристика помещения: высота потолка, м: 2.8
- Объявление создано 3 фев. ·
- ID 33931602 ·
- Просмотров 0
- · Сохранений в избранное 0
Квартиры этой планировки
Свободно 22 квартиры
4 этаж
43 015 $
·
1 036 $ за м²
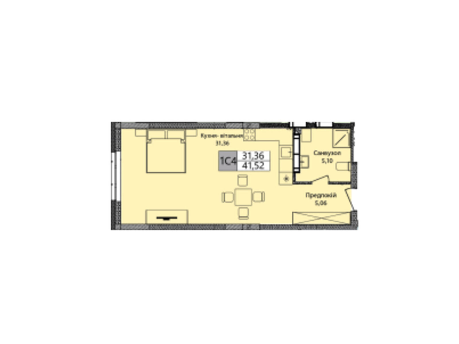
Площадь 41.52 м²
5 этаж
43 015 $
·
1 036 $ за м²
Площадь 41.52 м²
7 этаж
43 015 $
·
1 036 $ за м²
Площадь 41.52 м²
Условия покупки
2 февраля 2026 проверено информацию по условиях покупкиРассрочка 0% до 1 года, первый взнос от 50%
Уточняйте детали в отделе продажАкция
Скидка 10% на квартиры от 40 м при полной оплате.
Расположение ЖК Olympiс Park
шоссе Харьковское, 210
Вырлица
·
12 мин
Бориспольская
·
13 мин
Красный хутор
·
27 мин
Информация о ЖК
Дом
Двор без машин
Отсутствует внутренняя отделка
Монолитно-каркасный дом, монолитно-кирпичный дом
28 этажей
Индивидуальное отопление
Стены из газоблока
Утепленный минеральной ватой
Договор купли-продажи имущественного права
Высота потолков 2.8 м
Класс комфорт
1150 квартир
|
Пользуется спросом на DIM.RIA
Вас могут заинтересовать
Квартиры в ближайших городах