








фото · 1 из 9
Продажа 2к квартиры 56.7 кв. м на ул. Соборная 32 • ID 33923246
ЖК Kvartal Soborna
Больше о новостройке
63 000 $ за объект · 2 720 970 грн · 1 111 $
за м²
Перевірена квартира
Проверено по видеозвонку
Отчет от 30 янв.
- Новостройка
- 3 этаж из 5
- Предложение от посредника
- Без комиссии
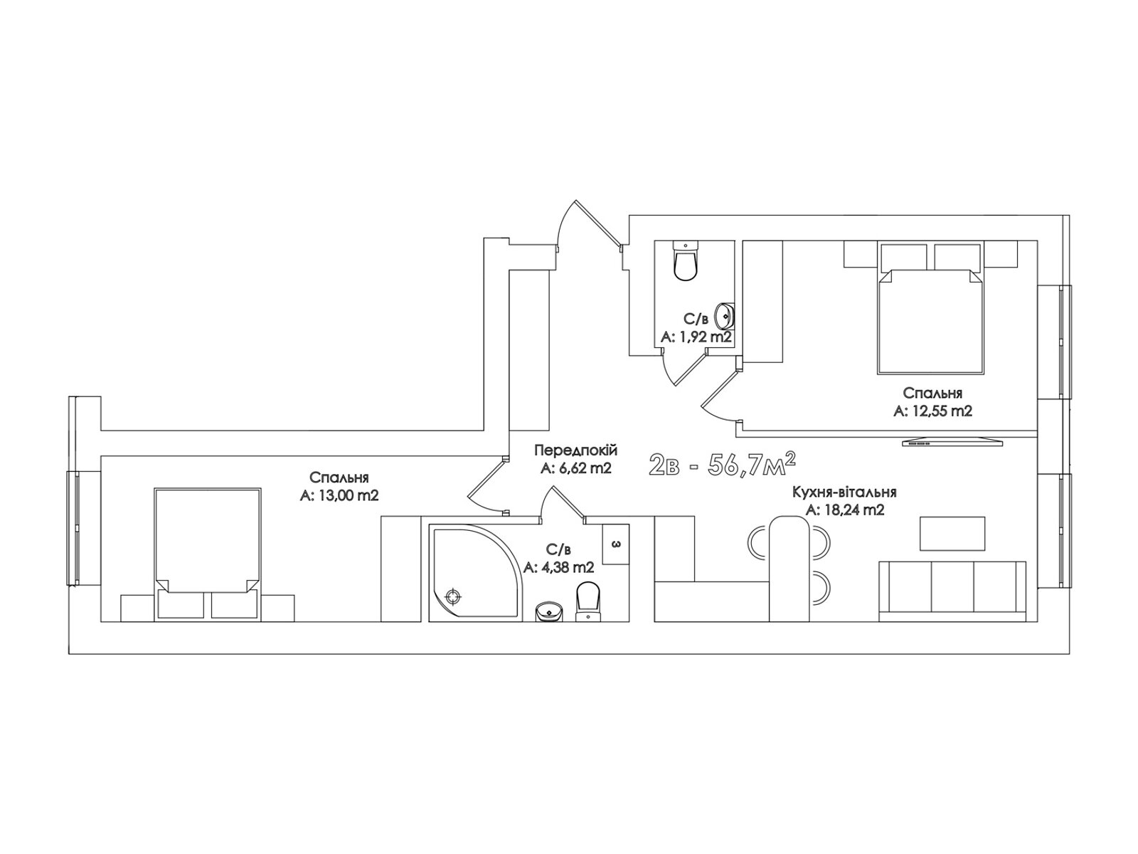
- Общая площадь 56.7 м² · жилая 25 м² · кухня 15 м²
- Стены из кирпича
- Построен в 2024
- єВідновлення
- Рядом с парком
- Тихий двор
- Жилье не использовалось с момента постройки
Описание от продавца
- Предлагается к просмотру чудесная 2-комнатная квартира без ремонта в Ирпене.
Расположение: Ирпень по ул.Соборная
Общая площадь - 57 м2
Кухня-гостиная - 18 м2
Поверх - 3/5
Отопление - индивидуальное газовое.
Индивидуальные счетчики на газ, на воду, на электричество
Жилой комплекс комфорт-класса, имеет собственную закрытую территорию.
В общем, вся развитая инфраструктура.
Удобный выезд на Киев.
- Вход в дому: Пандус
- Характеристика здания: тип дома (серия): новый фонд
- Характеристика помещения: высота потолка, м: 2.8 • состояние квартиры: без отделочных работ • утепление: внешнее
- Отделка потолка: без обработки
- Пол (покрытие): стяжка
- Отопление: индивидуальное газовое • двухконтурный котел
- Подогрев воды: двухконтурный котел
- Помещения: гостиная • раздельный санузел
- Оборудование • мебель • удобства: счетчик на электричество • счетчик на газ • счетчик на воду • электричество • газ • интернет
- Когда нет света: есть интернет • есть мобильная связь • есть водоснабжение • работает отопление • есть газ
- Подъезд: кодовый замок • домофон • бронированная дверь • видеонаблюдение на территории
- Мебель: нет
- Положение и окружение: тип двора: закрытого типа (вход, въезд ограничен)
- Уникальные преимущества: Кухня-студия
- Внутренняя отделка: без отделки
Объявление неактуально или информация неточна?
- Объявление создано 30 янв. ·
- ID 33923246 ·
- Просмотров 0
- · Сохранений в избранное 0
Информация о ЖК
Дом
Наземный паркинг
Закрытая территория
Отсутствует внутренняя отделка
Кирпичный дом
5 этажей
Индивидуальное газовое отопление
Стены из кирпича
Утепленный минеральной ватой
Договор купли-продажи
Высота потолков 2.75 м
Класс комфорт
75 квартир