






фото · 1 из 7
Продажа 1к квартиры 31.5 кв. м на ул. Соборная • ID 33919272
ЖК Kvartal Soborna
Больше о новостройке
37 000 $ за объект · 1 605 800 грн · 1 175 $
за м²
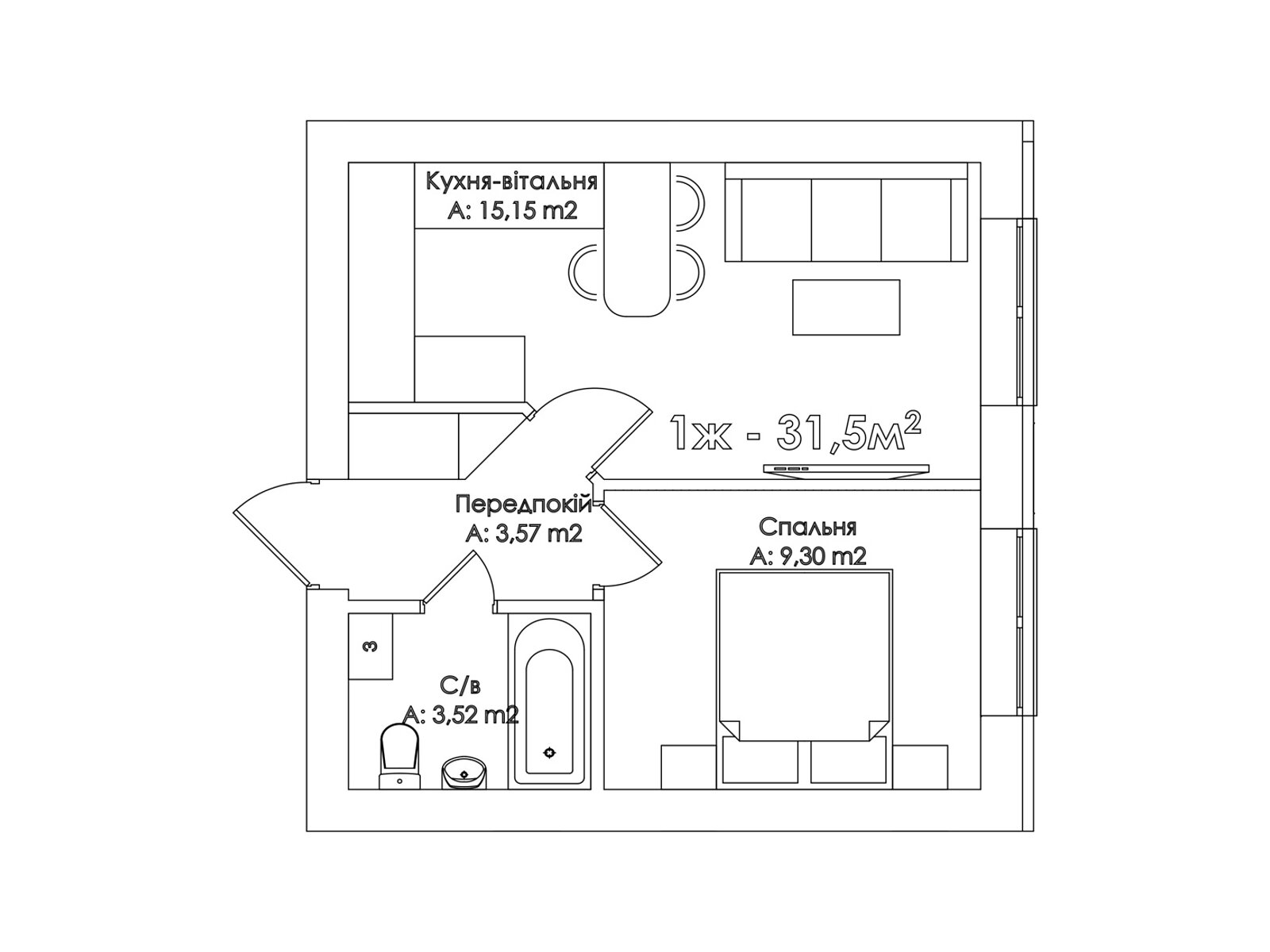
- Общая площадь 31.5 м² · жилая 9.3 м² · кухня 15 м²
- Стены из кирпича
- Сдача в 2025
- єВідновлення
Описание от продавца
- Квартира в ЦЕНТРЕ города Ирпень! Выгодная цена без комиссии для покупателя!
Новый, современный жилой комплекс построен из кирпича.
Дом зданий и подходит под разнообразные государственные программы!
В Ваше внимание 1-комнатная квартира современной и комфортной планировки. Просторная кухня-гостиная, уютная спальня, смежный санузел.
- Наполнение - счетчики, лазерная стяжка пола.
- Отопление - индивидуальное газовое от двухконтурного котла.
Для более детальной информации обращайтесь по телефону, договоримся о просмотре в удобное для Вас время!
- Вход в дому: Пандус
- Вход в дом: Вход без порогов • Вход шириной более 90 см
- Характеристика здания: тип дома (серия): новый фонд
- Характеристика помещения: высота потолка, м: 2.7 • состояние квартиры: без отделочных работ • утепление: внешнее
- Отделка потолка: без обработки
- Пол (покрытие): без отделки • стяжка
- Отопление: индивидуальное газовое • двухконтурный котел
- Подогрев воды: двухконтурный котел
- Помещения: санузел: совмещенный • гостиная • совмещенный санузел
- Оборудование • мебель • удобства: счетчик на электричество • счетчик на газ • счетчик на воду • электричество • газ • интернет
- Когда нет света: есть мобильная связь • есть газ
- Подъезд: кодовый замок • домофон • видеонаблюдение на территории • Пространство подъезда не уже 135 см
- Мебель: нет
- Положение и окружение: тип двора: закрытого типа (вход, въезд ограничен)
- Особенности планировки: панорамные / витринные окна • балкон/лоджия
- Внутренняя отделка: без отделки
Объявление неактуально или информация неточна?
- Объявление создано 30 січ. ·
- ID 33919272 ·
- Просмотров 0
- · Сохранений в избранное 0
Информация о ЖК
Дом
Наземный паркинг
Закрытая территория
Отсутствует внутренняя отделка
Кирпичный дом
5 этажей
Индивидуальное газовое отопление
Стены из кирпича
Утепленный минеральной ватой
Договор купли-продажи
Высота потолков 2.75 м
Класс комфорт
75 квартир