











фото · 1 из 12

Смотреть все фото
Смотреть на карте
Продажа 3к квартиры 78 кв. м на ул. Ольги Кобылянской 1В/26, кв. 82 • ID 33630008
ЖК Синергия Сити
Больше о новостройке
81 338 $ за объект · 3 432 000 грн · 44 000 грн
за м²
Информация неточна?
Продавец не подтвердил данные об этой недвижимости. Расскажите, что не так, и мы проверим
Без проверки
Описание от продавца
Продавец не подтвердил информацию об этом объекте (не заказывал проверку с представителем DIM.RIA, не отправлял видео или документы)
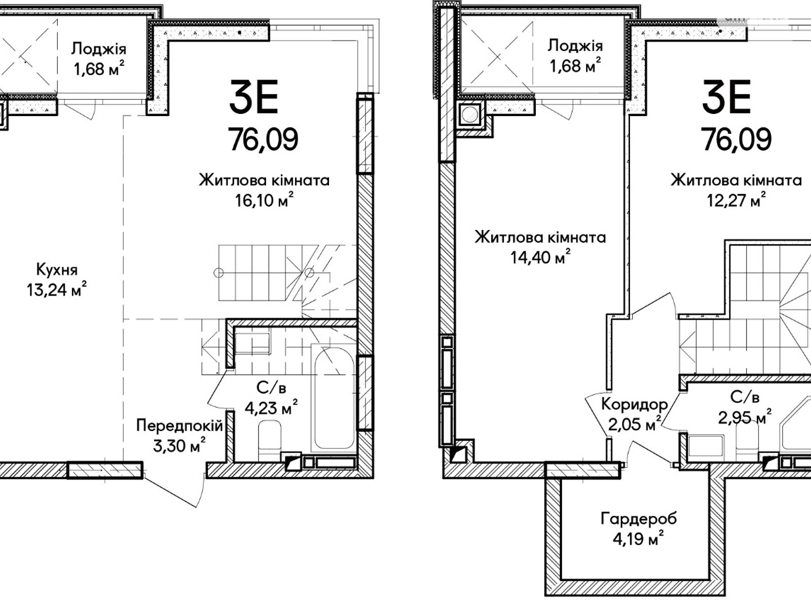
- 3 комнаты · 9 этаж из 10
- Общая площадь 78 м² · жилая 42.77 м² · кухня 20 м²
- Стены из газоблока
- Сдача в 2025
- Без комиссии
- єВідновлення
- Вторичная недвижимость
- єОселя
- Охраняемая территория
- Оперативный показ
- Жилье не использовалось с момента постройки
- Двухуровневая 3-комнатная квартира с индивидуальным отоплением.
Дом 26 / Этаж 10 / Квартира 82, площадью 78 м²
Просторная двухэтажная квартира с газовым индивидуальным отоплением комфорт в любое время года и экономия на коммунальных расходах.
Планирование продумано до мелочей:
уютная кухня-гостиная для семейных вечеров;
удобное зонирование для отдыха и работы;
гардероб и лоджия для хранения вещей.
Сделана штукатурка и установлен котел.
Дом в современном жилом комплексе Синергия Сити это комфорт, тепло и удобная инфраструктура рядом с Киевом.
Звоните для уточнения деталей.
- Вход в дом: Вход без порогов • Вход шириной более 90 см
- Характеристика помещения: высота потолка, м: 2.8 • состояние квартиры: требует ремонта / без ремонта / ремонт не закончен • утепление: внешнее
- Отделка потолка: штукатурка • другое
- Пол (покрытие): стяжка
- Наружная отделка: окрашено (покраска)
- Отопление: индивидуальное газовое • двухконтурный котел
- Подогрев воды: двухконтурный котел
- Помещения: гардероб • гостиная
- Оборудование • мебель • удобства: счетчик на электричество • счетчик на газ • счетчик на воду
- Подъезд: кодовый замок • охранник • домофон • видеодомофон • Дверь лифта более 90 см • Лифт со звуковым сопровождением
- Положение и окружение: тип двора: закрытого типа (вход, въезд ограничен)
- Внутренняя отделка: черновая штукатурка • чистовая штукатурка
- Лифт: пассажирский лифт
- Уникальные преимущества: Возможна рассрочка
- Объявление создано 20 жов. ·
- ID 33630008 ·
- Просмотров 0
- · Сохранений в избранное 0
Информация о ЖК
Дом
Наземный паркинг
Закрытая территория
Под чистовую внутреннюю отделку, чистовая внутренняя отделка
Новостройки c ремонтом
Монолитно-каркасный дом
7-10 этажей
Индивидуальное отопление
Стены из газоблока
Утепленный минеральной ватой
Договор купли-продажи
Высота потолков 2.8 м
Класс бизнес
|