

















































фото · 1 из 50

Смотреть все фото
Смотреть на карте
Продажа 2к квартиры 89.3 кв. м на ул. Ольги Кобылянской 1В/15 • ID 33485640
ЖК Синергия Сити
Больше о новостройке
101 135 $ за объект · 4 267 897 грн · 1 133 $
за м²
Перевірена квартира
Проверено по видеозвонку
Отчет от 5 вер.
- Новостройка
- 6 этаж из 9
- Без комиссии
Описание от продавца
- Общая площадь 89.3 м² · жилая 25.7 м² · кухня 24.4 м²
- Стены из газоблока
- Сдача в 2025
- єВідновлення
- єОселя
- Охраняемая территория
- Престижный район
- Красивый вид
- Ирпень, ЖК "Синергия Сити"
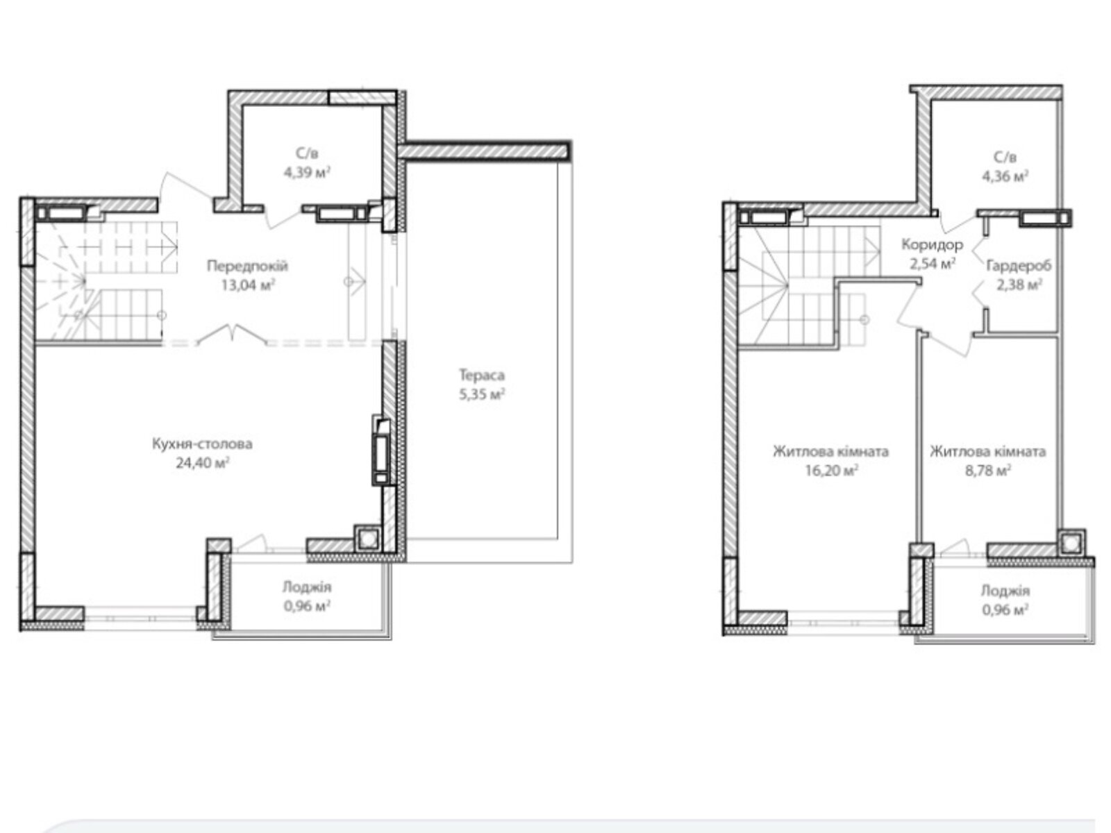
Двухуровневая квартира с террасой
Площадь 89, 3/25/24, 4 кв.м.
Поверх 6
Две комнаты, кухня-гостиная, два санузла, гардеробная, два балкона, терраса.
Индивидуальное газовое отоплениеЗакрытая территория ЖК с ландшафтным дизайном, зонами отдыха, игровыми
площадками.
Рядом фитнес-клуб, спортивные площадки, школа, супермаркеты, магазины, аптеки, кафе.
В пешей доступности набережная, аквапарк, рынок.
- Вход в дом: Вход без порогов • Вход шириной более 90 см
- Двор: Парковочное место для людей с инвалидностью
- Характеристика здания: тип дома (серия): новый фонд
- Характеристика помещения: высота потолка, м: 2.7 • состояние квартиры: требует ремонта / без ремонта / ремонт не закончен • утепление: внешнее
- Отделка потолка: без обработки
- Пол (покрытие): стяжка
- Внутренняя отделка: чистовая штукатурка
- Наружная отделка: окрашено (покраска)
- Отопление: индивидуальное газовое • двухконтурный котел
- Подогрев воды: двухконтурный котел
- Помещения: гардероб • гостиная • раздельный санузел • 2 санузла
- Оборудование • мебель • удобства: счетчик на электричество • счетчик на газ • счетчик на воду • электричество • газ • интернет
- Когда нет света: есть интернет • есть мобильная связь • работает лифт • есть водоснабжение • есть газ
- Подъезд: видеодомофон • бронированная дверь • видеонаблюдение на этаже • видеонаблюдение на территории • Пространство подъезда не уже 135 см • Лифт со звуковым сопровождением
- Мебель: нет
- Положение и окружение: тип двора: закрытого типа (вход, въезд ограничен)
- Лифт: грузовой лифт
- Особенности планировки: подогрев полов • панорамные / витринные окна • терраса • балкон/лоджия
- Уникальные преимущества: Кухня-студия • Многоуровневая • Возможна рассрочка
Объявление неактуально или информация неточна?
- Объявление создано 5 вер. ·
- ID 33485640 ·
- Просмотров 0
- · Сохранений в избранное 0
Информация о ЖК
Дом
Наземный паркинг
Закрытая территория
Под чистовую внутреннюю отделку, чистовая внутренняя отделка
Новостройки c ремонтом
Монолитно-каркасный дом
7-10 этажей
Индивидуальное отопление
Стены из газоблока
Утепленный минеральной ватой
Договор купли-продажи
Высота потолков 2.8 м
Класс бизнес
|