





Перевірене фото · 1 из 6
Продажа 1к квартиры 55.4 кв. м на дор. Кольцевая • ID 33903738
ЖК Парксайд
Больше о новостройке
47 367 $ за объект · 2 043 886 грн · 855 $
за м²
Перевірена новобудова
Проверено экспертом DIM.RIA
Отчет от 9 фев.
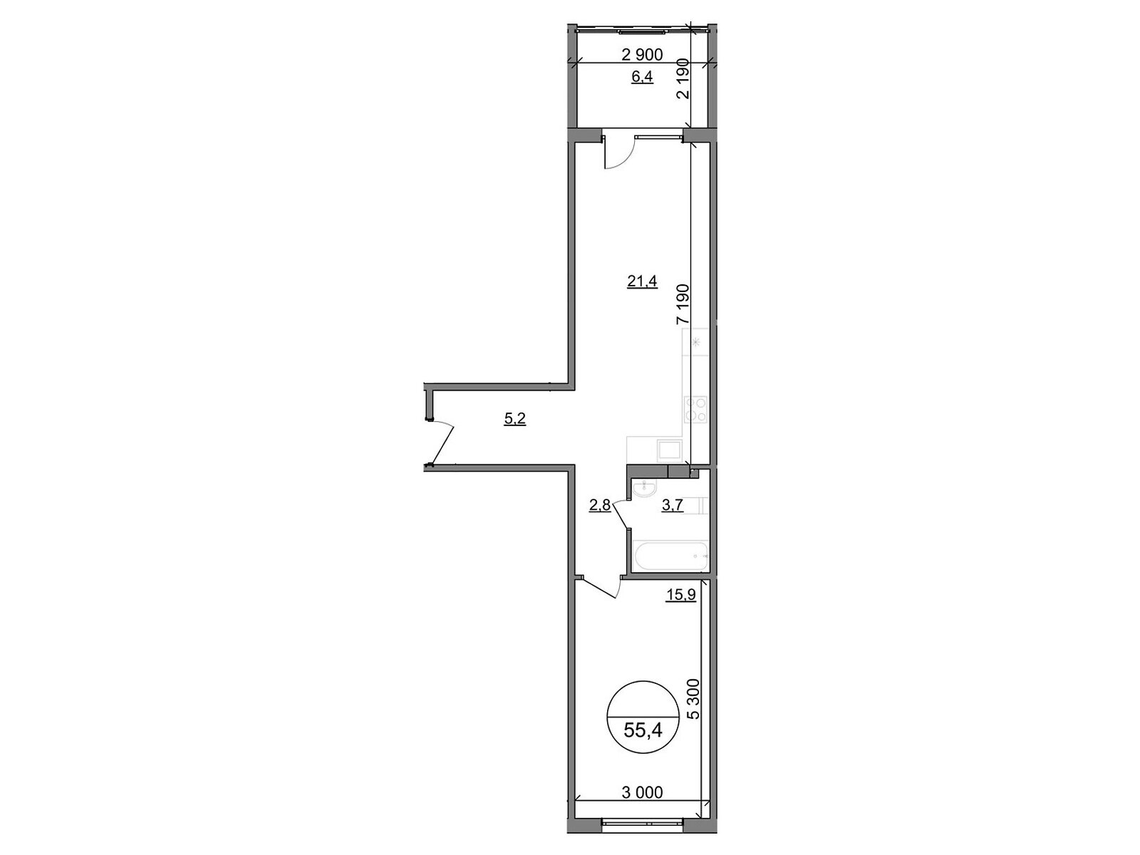
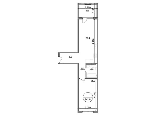
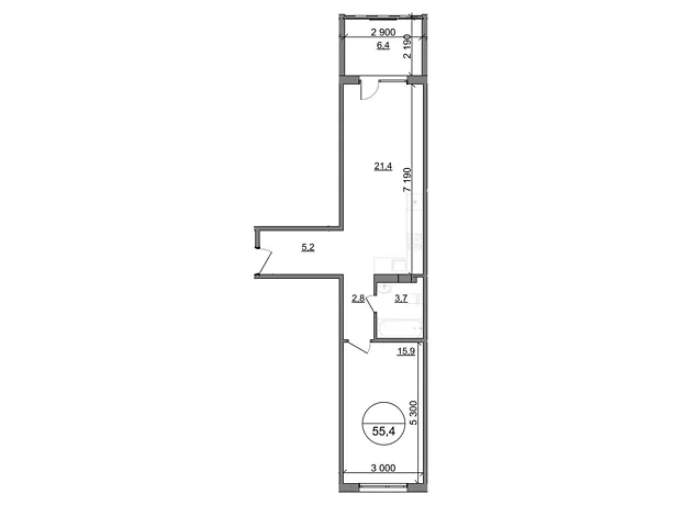
- 1 комната · 2 этаж из 4
- Общая площадь 55.4 м²
- Стены из монолита
- Предложение от застройщика
- ЄОселя
- єВідновлення
- Новостройка
Объявление неактуально или информация неточна?
- єОселя
- Квартиры с ремонтом Whitebox
- Наземные автостоянки
- 20 га скверов, озеро, водный парк
- 2 школы, 12 детсадов, 5 стадионов, 2 больницы
- 40 жилых домов с магазинчиками
- Львовская кольцевая дорога
- Лесопарк 450 га
- Торгово-развлекательный центр
- Ипотека до 5 лет
- Продажа 1-комнатной квартиры от застройщика без посредников - 1-комнатная квартира в ЖК Парксайд.
Современная планировка площадью - 55.4 м² создана специально для комфорта и уюта.
Квартира расположена на 2 этаже 4-х этажного дома. Адрес новостройки - Басовка, Кольцевая.
ЖК Парксайд отличается удобным расположением, поскольку в непосредственной близости от него есть: школа, больница, тц, рынок, магазины, парковые зоны, транспортная развязка, детский сад, наземный паркинг, многоуровневый паркинг.
Заселится в новое жилье можно после заявленной даты сдачи - 1 квартал 2029 года.
На данный момент по этому проекту уже построено 1 дом.
Застройщик - М7 Естейт.
- Характеристика помещения: высота потолка, м: 2.62
- Отопление: без отопления
- Объявление создано 23 янв. ·
- ID 33903738 ·
- Просмотров 0
- · Сохранений в избранное 0
Квартиры этой планировки
Свободно 9 квартир
2 этаж
47 367 $
·
855 $ за м²
Площадь 55.4 м²
2 этаж
47 367 $
·
855 $ за м²
Площадь 55.4 м²
2 этаж
43 489 $
·
785 $ за м²
Площадь 55.4 м²
Информация о ЖК
Дом
Подземный паркинг, наземный паркинг, многоуровневый паркинг
Новостройки c ремонтом
Монолитный дом
4 этажа
Автономное отопление: газовое
Стены из железобетона
Утепленный минеральной ватой, пенополистиролом
Договор купли-продажи имущественного права
Высота потолков 2.62 м
Класс комфорт
|