























  фото  ·  1 из 24
    
 
  
                        Смотреть все фото
                        
  
                        Смотреть на карте
                        
Продажа коммерческого помещения на ул. Текстильная, площадь 759 кв.м • ID 33672373
   490 000 $  за объект   ·  20 678 000 грн   ·  646 $
        за м²
 
                Перевірене комерційне приміщення
            
  Проверено по видеозвонку
 Отчет от 2 ноя.
 -  Вторичная недвижимость
 -  18 помещений
 -  1 этаж из 4
 -  Участок 12 соток
 -  Предложение от посредника
 -  Без комиссии
 -  С гаражом
 
Описание от продавца
 -  Здание / комплекс / павильон
 -  Общая площадь 759 м²
 
- Укрытие в доме
 - Торг уместен
 - Охраняемая территория
 
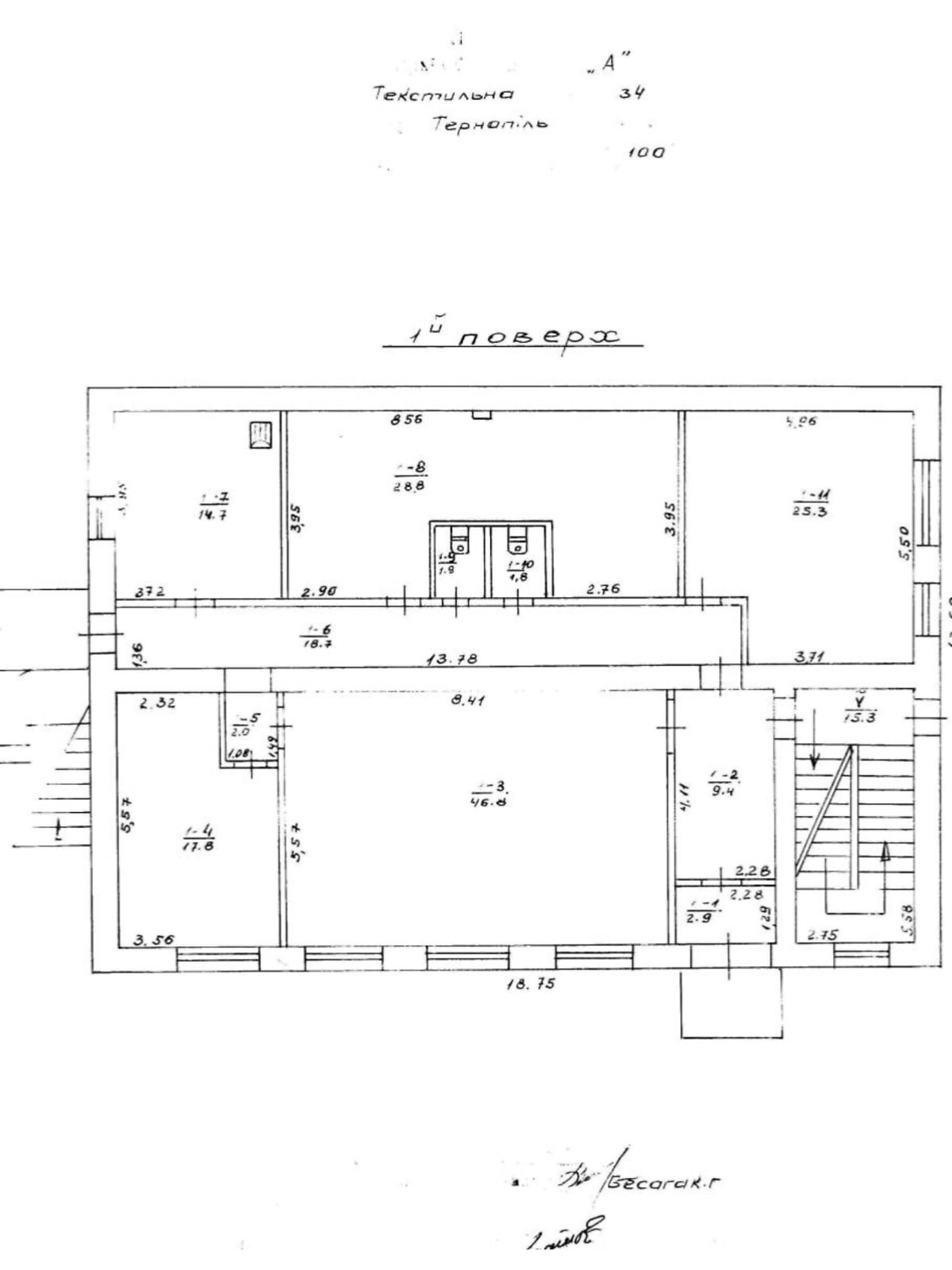
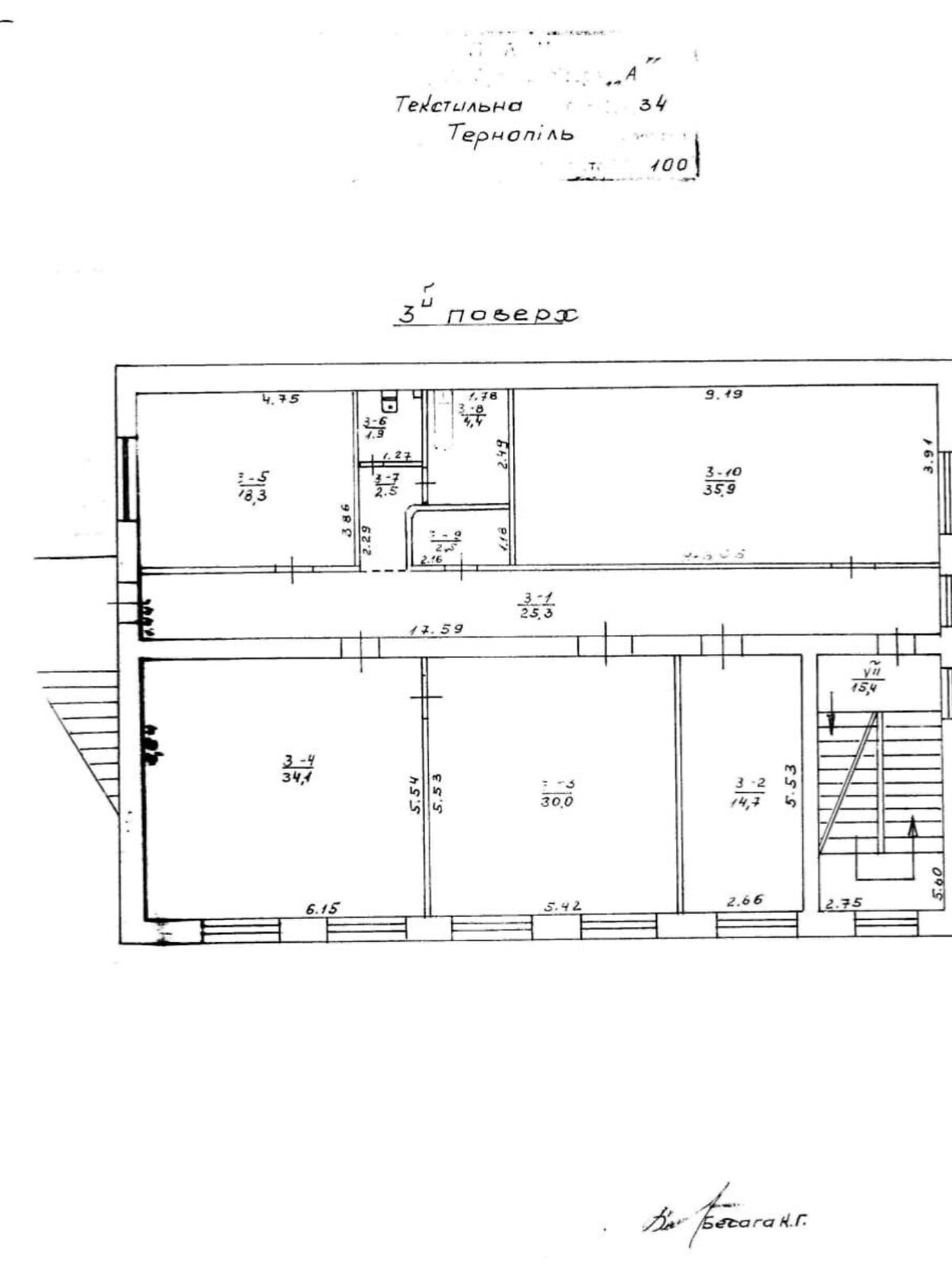
- Продается коммерческое помещение производственного типа по ул. Текстильная в г. Тернополь.
Общей площадью 759 м кв, 10 соток земли.
Используется как действующее швейное предприятие.
Здание кабинетного типа, 3 полноценных этажа + большой подвал.
Территория огорожена, имеет свою систему видеонаблюдения и сигнализацию.
На первом этаже расположен фирменный магазин, склад, кабинет, котельная.
На втором этаже швейный цех, раскройный цех и другие кабинеты.
Третий этаж используется как склады, фотостудия готовых изделий и прочее.
На всех этажах оборудованы санузлы.
В помещении сделан капитальный ремонт.
Заведено 3 фазы света, есть отдельная щитовая.
На воду установлен бойлер.
Помещение обогревается газом или котлом на дровах.
На территории, которая прилегает к зданию оборудовано:
сторожівка (в техпаспорте указана как отдельное полноценное помещение);
гараж на автоматических воротах;
навес под которым хранятся дрова;
яма для ремонта авто;
большая беседка для отдыха.
ЗДАНИЕ СДАНО В ЭКСПЛУАТАЦИЮ И ИМЕЕТ ВСЕ НЕОБХОДИМЫЕ ТЕХНИЧЕСКИЕ ДОКУМЕНТЫ.
Подъезд к зданию грунтовый 100 м, поворот с ул. Текстильная.
Есть видеообзор всех этажей и территории. 
-  Вход в дом: Вход без порогов
 -  Двор: Автоматические ворота
 -  Характеристика здания: класс объекта: B • состояние: нормальное • для хранения вещей • отдельное здание
 -  Характеристика помещения: высота потолка, м: 3.2 • утепление: внешнее
 -  Отопление: индивидуальное газовое
 -  Подогрев воды: бойлер
 -  Помещения: комната для отдыха • встроенные жилые помещения • офисные помещения • котельная / бойлерная • кабинет
 -  Оборудование • мебель • удобства: видеонаблюдение • электричество • газ
 -  Когда нет света: есть газ
 -  Подъезд: кодовый замок • вахтер • домофон • видеодомофон • сигнализация • защитные роллеты на окнах • решетки на окнах • видеонаблюдение на территории • противопожарная система • видеонаблюдение в помещении
 -  На территории есть: стоянка для автомобилей: с навесом • забор
 
            Объявление неактуально или информация неточна?
        
  - Объявление создано 2 ноя. ·
 - ID 33672373 ·
 - Просмотров 0
 - · Сохранений в избранное 0
 
Пользуется спросом на DIM.RIA
 Вас могут заинтересовать
 Недвижимость в Тернополе по назначению