







фото · 1 из 8

Смотреть все фото
Смотреть на карте
Продажа коммерческого помещения на ул. Бродская 1В, площадь 80.9 кв.м • ID 33378211
ЖК Одесская Чайка
Больше о новостройке
35 000 $ за объект · 1 475 250 грн · 433 $
за м²
Перевірене комерційне приміщення
продавец предоставил техпаспорт
Проверено по техпаспорту
Дата последней проверки 6 авг.
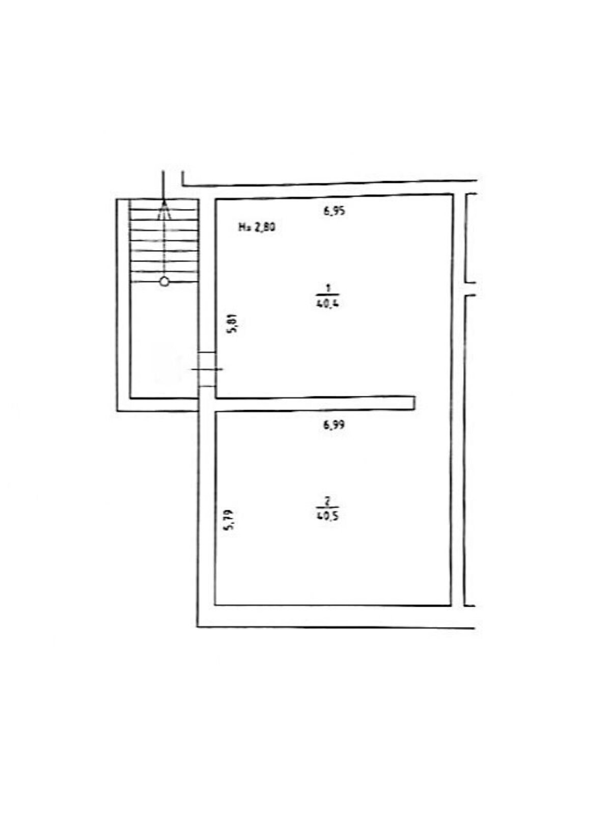
- Общая площадь 80.9 м²
- 2 помещения
- Цокольный этаж из 10
Описание от продавца
- Нежилое помещение в жилом доме
- 2 помещения
- Цокольный этаж из 10
- Общая площадь 80.9 м²
- Предложение от посредника
- Комиссия за услуги 5 %
- Вторичная недвижимость
- Укрытие в доме
- Спокойный район
- Выгодная цена
- Плиева / Грушевского, продам нежилое помещение, расположенное в цокольном этаже нового 10-тиэтажного дома ЖК «Одесская Чайка», общая площадь 81 кв.м, фасадный вход и окно, разделено на два помещения по 40 кв.м, фасад на ЖК «Уютный», высота потолков 2, 9 метра, заведено трехфазное электричество 380 вольт и мощность 15 кВт, очень перспективное помещение без отделочных работ под любой вид деятельности в новом молодом густонаселенном микрорайоне на Слободке! Состояние внутри вы можете увидеть в прилагаемом видео.
- Характеристика здания: состояние: без отделочных работ • фасадное помещение • отдельное помещение
- Характеристика помещения: высота потолка, м: 2.9 • утепление: внешнее
- Отопление: автономная котельная
- Подогрев воды: бойлер
- Когда нет света: есть интернет • есть мобильная связь • есть водоснабжение
- Подъезд: бронированная дверь • решетки на окнах
- На территории есть: стоянка для автомобилей: открытая
- Оборудование • мебель • удобства: электричество
Объявление неактуально или информация неточна?
- Объявление создано 6 авг. ·
- ID 33378211 ·
- Просмотров 0
- · Сохранений в избранное 0
Информация о ЖК
Дом
Автостоянка
Кирпичный дом
10 этажей
Индивидуальное отопление
Высота потолков 2.8 м
Класс эконом
90 квартир
Пользуется спросом на DIM.RIA
Вас могут заинтересовать
Недвижимость в Одессе по назначению