











фото · 1 из 12

Смотреть все фото
Смотреть на карте
Продажа коммерческого помещения на просп. Шевченко, площадь 220.7 кв.м • ID 33620874
60 000 $ за объект · 2 517 000 грн · 273 $
за м²
Перевірене комерційне приміщення
продавец предоставил техпаспорт
Проверено по техпаспорту
Дата последней проверки 20 окт.
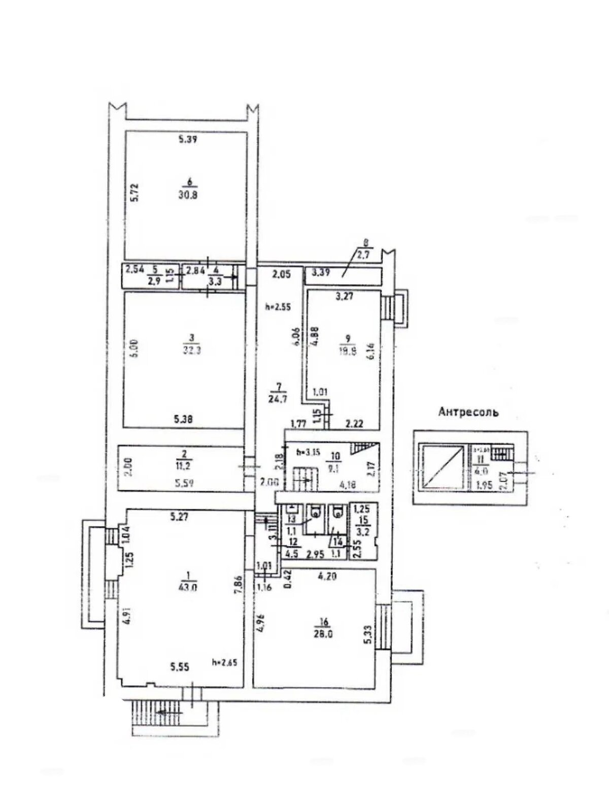
- Общая площадь 220.7 м² · полезная 152.9 м²
- 5 помещений
- Цокольный этаж из 5
Описание от продавца
- Нежилое помещение в жилом доме
- 5 помещений
- Цокольный этаж из 5
- Общая площадь 220.7 м² · полезная 152.9 м²
- Предложение от посредника
- Комиссия за услуги 5 %
- Вторичная недвижимость
- Укрытие в доме
- Престижный район
- Выгодная цена
- Продажа коммерческого помещения на проспекте Шевченко, Приморский район.
Площадь 220 м².
Расположено в цокольном этаже 5-этажного дома, второй ряд домов.
Планировка: 5 отдельных залов, помещение двустороннее, с окнами есть естественное освещение.
Коммуникации: полноценная вытяжка и приточно-вытяжная вентиляция, электроснабжение 11 кВт с возможностью увеличения мощности.
Фонд: нежилой.
Есть возможность организации летней площадки.
Частично остается оборудование.
Подходит для:
кафе, пекарни, кондитерской;
цеха по производству готовой еды или полуфабрикатов;
доставки еды или кухни на вынос.
Удобная локация, активный трафик, перспективный район для бизнеса.
Звоните для получения подробной информации и организации просмотра.
- Характеристика здания: состояние: удовлетворительное • часть здания
- Характеристика помещения: высота потолка, м: 2.65 • утепление: без утепления
- Коммуникации: вентиляция / кондиционирование: вентиляция
- Подогрев воды: бойлер
- Отопление: без отопления
- Помещения: комната для отдыха • кабинет
- Оборудование • мебель • удобства: холодильное оборудование • электричество • газ
- Когда нет света: есть водоснабжение • работает отопление • есть газ
- Подъезд: решетки на окнах
- На территории есть: стоянка для автомобилей: не оборудована
Объявление неактуально или информация неточна?
- Объявление создано 20 окт. ·
- ID 33620874 ·
- Просмотров 0
- · Сохранений в избранное 0
Пользуется спросом на DIM.RIA
Вас могут заинтересовать
Недвижимость в Одессе по назначению