




















фото · 1 из 21

Смотреть все фото
Смотреть на карте
Продажа коммерческого помещения на ул. Вороного 9, площадь 1083.2 кв.м • ID 33637930
3 500 000 $ за объект · 147 700 000 грн · 3 231 $
за м²
Перевірене комерційне приміщення
продавец предоставил техпаспорт
Проверено по техпаспорту
Дата последней проверки 23 окт.
- Общая площадь 1083.2 м² · полезная 793.5 м²
- 21 помещение
- 1 этаж из 4
- Участок 100 м²
Описание от продавца
- Здание / комплекс / павильон
- 21 помещение
- 1 этаж из 4
- Общая площадь 1083.2 м² · полезная 793.5 м²
- Участок 100 м²
- Предложение от посредника
- Комиссия за услуги 5 %
- Вторичная недвижимость
- Престижный район
- В центре
- Оперативный показ
- Продаж австрійської будівлі в центрі Львова, вул. Вороного, Галицький район, Львів.
Пропонується унікальний обєкт - ціла австрійська будівля у самому серці Львова, за адресою вул. Вороного.
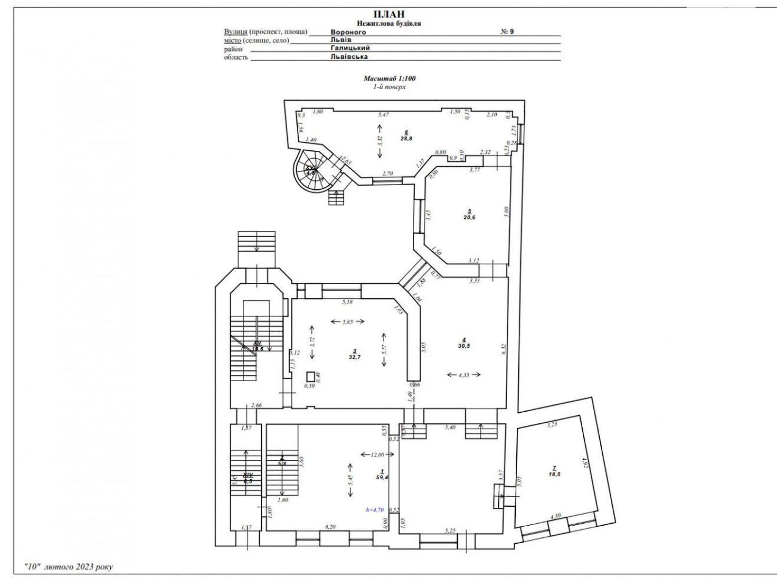
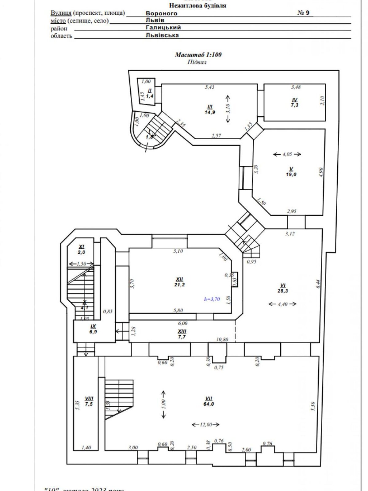
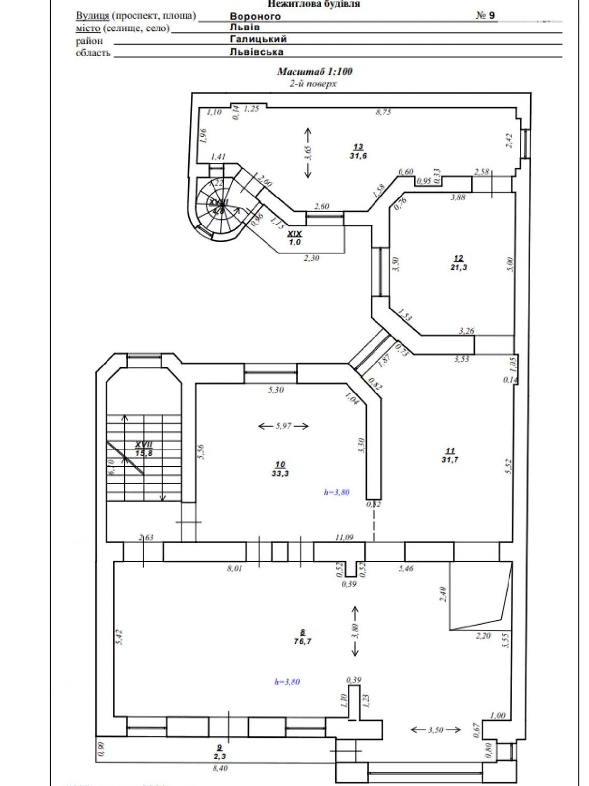
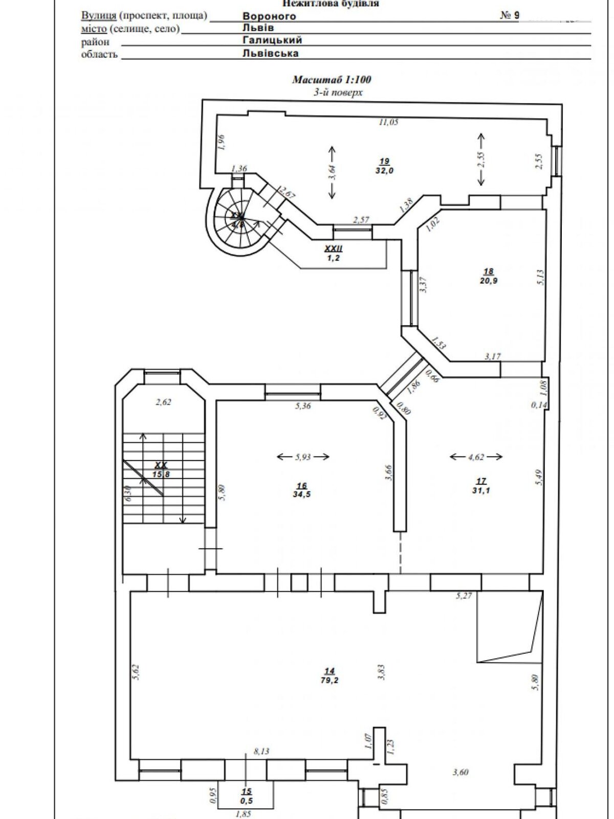
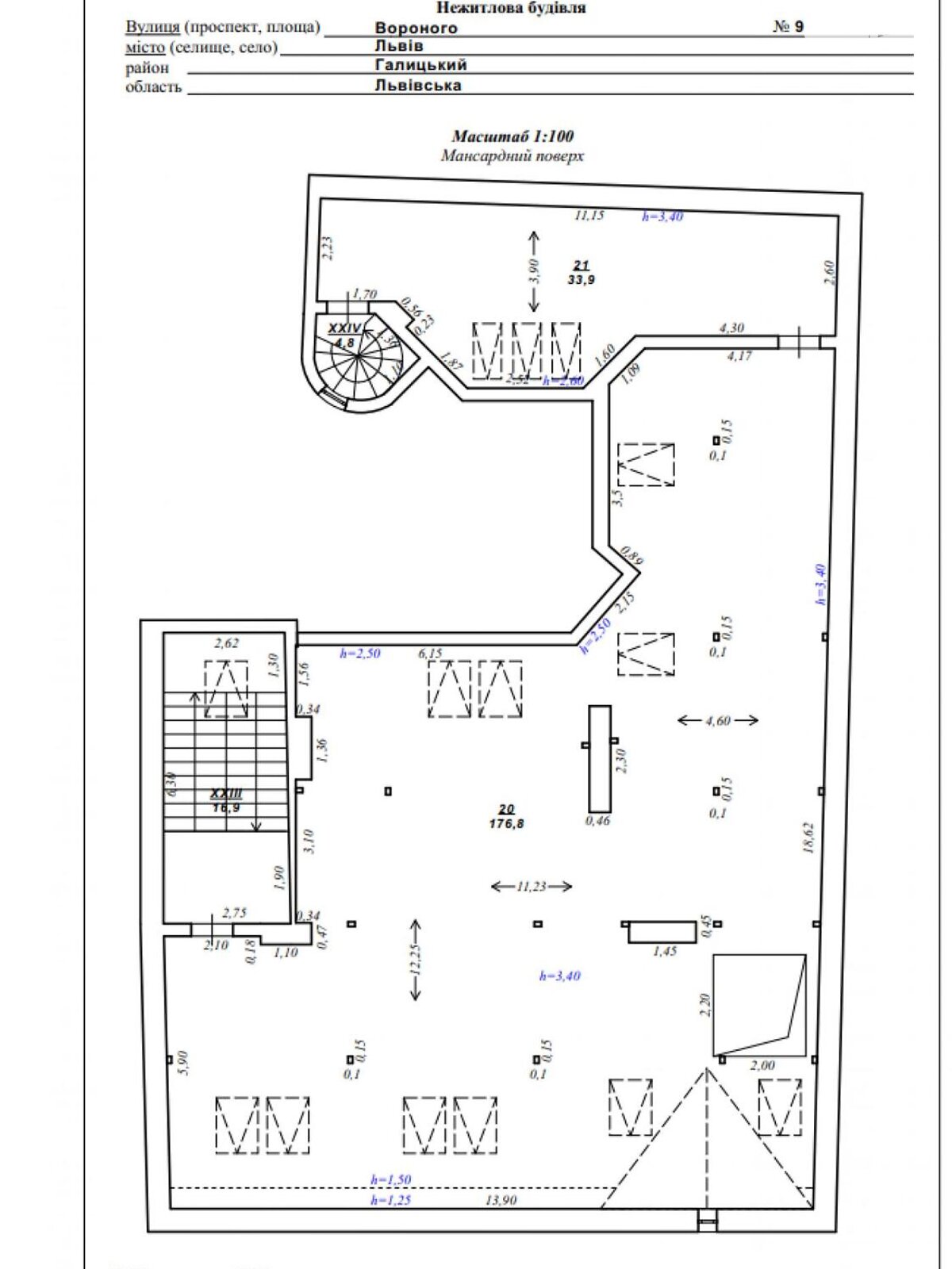
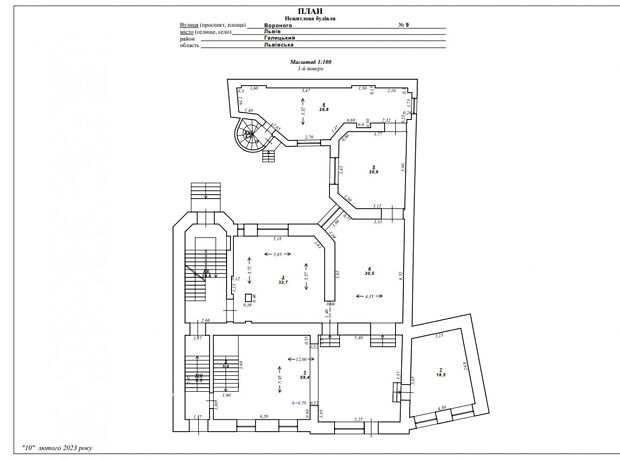
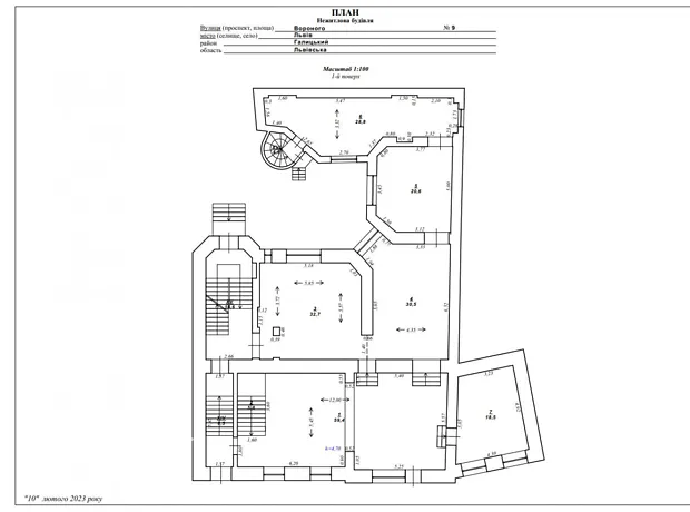
Загальна площа становить 1083, 2 кв.м, будівля має 3 поверхи, мансардний та підвальний поверхи.
Характеристики по поверхах:
Підвальний поверх - 186, 1 кв.м
1-й поверх - 226, 2 кв.м
2-й поверх - 218, 5 кв.м
3-й поверх - 220, 0 кв.м
Мансардний поверх - 232, 4 кв.м
Загальна площа - 1083, 2 кв.м
Стан будівлі:
Виконана реконструкція
Зроблено залізобетонне перекриття на всіх поверхах
Частково поштукатурені стіни
Частково замінені вікна
Перекритий дах
Основні переваги:
Австрійська архітектура цінність для інвесторів і представницьких бізнес-проєктів.
Ціла будівля у приватній власності (не частина, а весь обєкт), що дозволяє реалізовувати будь-які масштабні проекти без сусідів і співвласників.
Розташування в історичному центрі Львова поруч із головними туристичними, діловими та культурними обєктами міста.
Великі площі на кожному поверсі та зручне планування для будь-якого типу бізнесу.
Підвальний рівень з високим потенціалом під ресторан, винний льох, спортзал чи склад.
Мансарда як додатковий простір для сучасного офісу чи житлових апартаментів.
Варіанти використання:
бізнес-центр, офісна будівля;
готель, апарт-готель чи хостел;
приватна клініка або медичний центр;
освітній заклад, креативний простір, галерея;
престижний житловий будинок у центрі Львова.
Локація: Галицький район, вул. Вороного історична частина Львова з активним пішохідним і автомобільним трафіком, престижним оточенням та повною інфраструктурою.
Пропозиція від агентства нерухомості KURYLIV. Real Estate Agency.
Для додаткової інформації та перегляду звертайтеся за телефоном О973847О55 (Ігор Курилів) або пишіть у Viber / Telegram / WhatsApp.
- Вход в дом: Кнопка вызова или звонок
- Двор: Парковочное место для людей с инвалидностью
- Характеристика здания: класс объекта: А+ • состояние: без отделочных работ • фасадное помещение
- Характеристика помещения: высота потолка, м: 3.8 • утепление: без утепления
- Отопление: индивидуальное газовое
- Подогрев воды: двухконтурный котел
- Помещения: спорт-зал
- Когда нет света: есть водоснабжение • есть газ
- На территории есть: стоянка для автомобилей: открытая
- Лифт: пассажирский лифт • грузовой лифт
- Оборудование • мебель • удобства: электричество • газ
Объявление неактуально или информация неточна?
- Объявление создано 23 окт. ·
- ID 33637930 ·
- Просмотров 0
- · Сохранений в избранное 0
Пользуется спросом на DIM.RIA
Вас могут заинтересовать
Недвижимость в Львове по назначению