

























фото · 1 из 26

Смотреть все фото
Смотреть на карте
Продажа коммерческого помещения на ул. Лукьяновская 23, площадь 1060.1 кв.м • ID 33583357
1 900 000 $ за объект · 80 180 000 грн · 1 792 $
за м²
Перевірене комерційне приміщення
продавец предоставил техпаспорт
Проверено по техпаспорту
Дата последней проверки 6 жов.
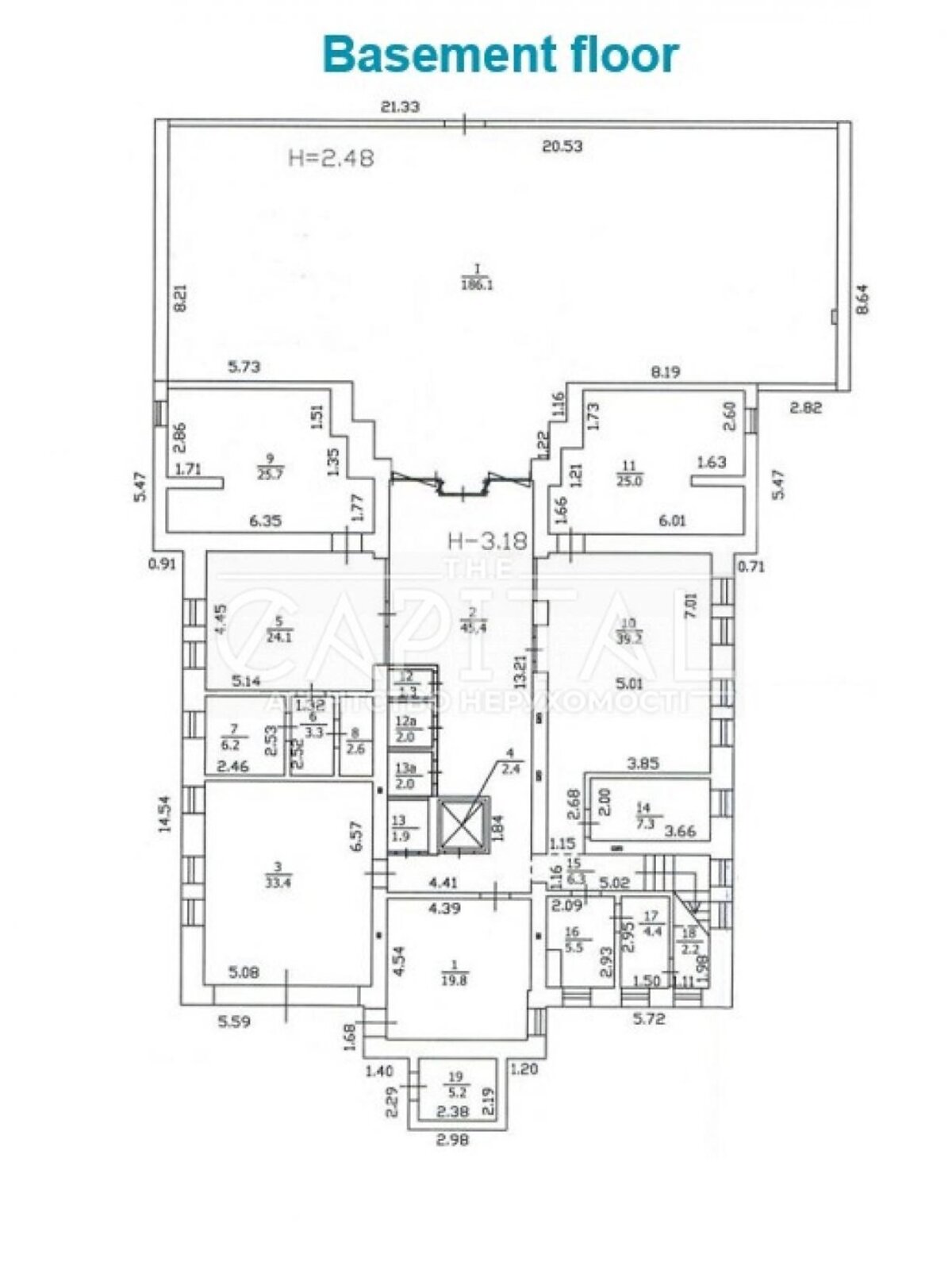
- Общая площадь 1060.1 м² · полезная 101.4 м²
- 10 помещений
- Цокольный этаж из 3
- Участок 8 соток
Описание от продавца
- Здание / комплекс / павильон
- 10 помещений
- Цокольный этаж из 3
- Общая площадь 1060.1 м² · полезная 101.4 м²
- Участок 8 соток
- Предложение от посредника
- Комиссия за услуги 5 %
- Вторичная недвижимость
- Оперативный показ
- Продається будівля!
Пропонуємо на продаж приміщення загальною площею 1 060 м², розташоване на вул. Лук'янівська, в престижному районі Києва, всього в 800 метрах від станції метро Контрактова площа. Це ідеальне місце для розміщення офісу, торгового простору, клініки або інших комерційних об'єктів.
Основні характеристики:
- Загальна площа: 1 060 м²
- Поверховість: 3 поверхи підвал (з ремонтом)
- Висота стель: 2, 95 м
- Паркування: 6-8 місць на території 2 місця в гаражі
- Система вентиляції: Центральна
- Ліфт: Пасажирський
- Опалення: Власна газова система
-Ділянка 8 соток
Переваги:
- Зручне розташування в центрі міста з відмінною транспортною доступністю
- Поруч з метро, що забезпечує зручний доступ для клієнтів і співробітників
- Просторі приміщення, які можна адаптувати під різноманітні комерційні цілі
- Окремий вхід, що забезпечує автономність вашого бізнесу
Це унікальна можливість придбати приміщення в одному з найбільш динамічних і розвинених районів Києва! Залишайте запит на додаткову інформацію або для організації огляду.
A 1 7 3 3 1
- Характеристика здания: состояние: дизайнерский ремонт • отдельное здание
- Характеристика помещения: высота потолка, м: 2.95 • утепление: внешнее
- Отопление: автономная котельная
- Подогрев воды: комбинированный
- Помещения: хол
- Когда нет света: есть мобильная связь • есть газ
- Подъезд: видеонаблюдение на территории
- На территории есть: стоянка для автомобилей: с навесом • забор
- Оборудование • мебель • удобства: электричество • газ
Объявление неактуально или информация неточна?
- Объявление создано 6 жов. ·
- ID 33583357 ·
- Просмотров 0
- · Сохранений в избранное 0
Пользуется спросом на DIM.RIA
Вас могут заинтересовать
Недвижимость в Киеве по назначению